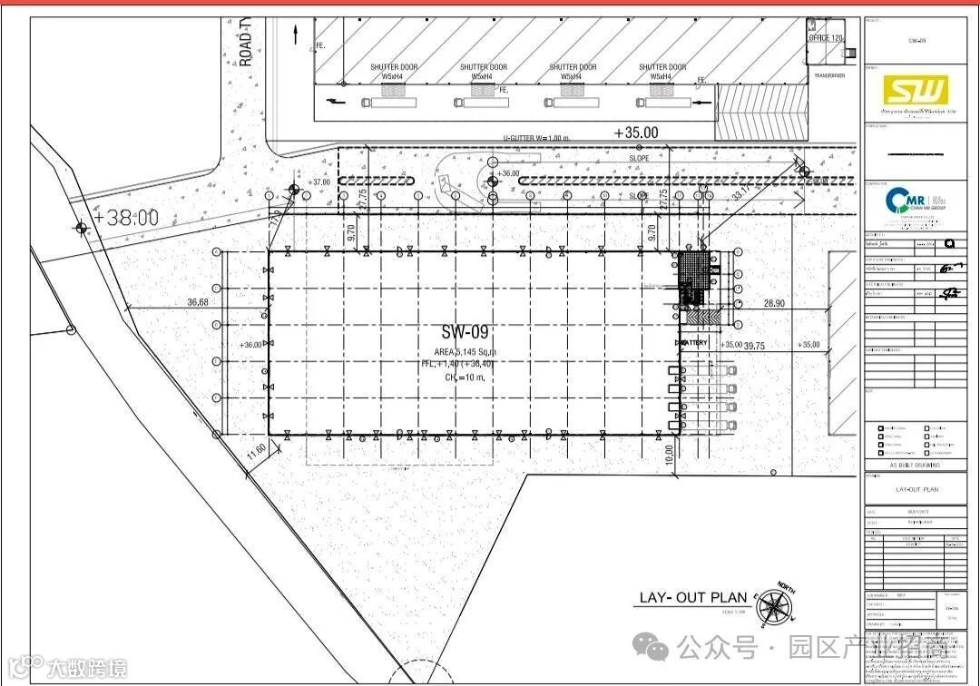
罗勇府 | Huay Pong区 仓库出租 AO-2024-10-18
总面积5,470平米
包含:
仓库面积5,390平米
办公室80平米
高度10米,地面能承重5吨
电力315KVA1套,自来水可使用
月租:120泰铢/平米,押四付一,三年合同





泰国·中资企业海外选址服务中心,
400-0123-021,
13391219793,

东南亚厂房土地信息
更多厂房土地 请点击【园区产业招商】
更多厂房土地 请点击【园区产业招商】
【声明】内容系转载自其它平台或媒体文章,本平台不对所包含内容的准确性、可靠性或完整性提供任何明示或暗示的保证,仅供读者参考。若侵犯著作权,请主动联系本平台并提供相关书面证据,本平台将更正来源及作者或依据著作权人意见在24小时内删除该文章,并不承担其他任何责任。

