

在独栋厂房风靡的当下,企业对生产、办公场所提出更高的期许,对空间个性化的需求越来越丰富,这就对厂房的建筑形态、功能配置提出了更高的要求。
中南高科智汇谷·增城,作为中南高科广东区域首个“睿科”系新一代产业园区,项目以“需求至上”与“创新引领”两大核心研发理念,在独栋厂房户型全面升级,推出创新户型——四拼独栋,自带复合性、独立性、私密性,让个性化成为可能,为企业提供更多想象与创造空间。

| 中南高科智汇谷实景图
在设计之初,中南高科便从关注企业与产业对空间的功能需求这一角度着手,于传统独栋户型之上,在空间感、人货分流以及功能性空间这三个方面实现突破。

| 3F独栋效果图
首先,空间感的大幅提升。
三层小独栋总建筑面积约2000m²,首层层高7.2m,3T承重,且框架结构、格局方正、易于布局;二层层高6.5m,800Kg承重,赠送露台,释放了大量可供自由支配的空间。三层层高4.2m,可用研发、办公等,合理的层高设置可将生产、研发空间与行政管理空间有效分离,全面兼顾生产、研发、办公三大核心需求。

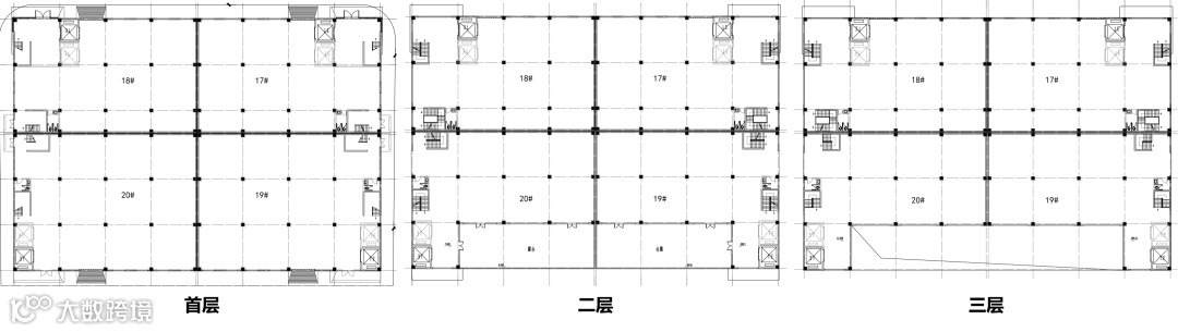
| 四拼独栋户型图
其次,强化人货分流。
双入口设计,正立面设置出入口,后方设置货运出入口,设置独立门厅和电梯直达每层,合理排布电梯井、消防通道、人流及物流通道,配备无障碍运货通道、卸货平台以及大容量货运电梯等配置,实现人货分流互不干扰。
最后,功能性空间的极致挖掘。
园区将每一寸空间都运用到了极致。例如,在二楼预留出露台空间,企业可在此搭建专属会客厅,也可修建露天花园,为员工提供舒适的休息场所。
有别于传统独立独栋,产品设计上,四拼独栋厂房采用“田"字型科学排布,楼栋之间相互独立互不打扰,又互相连接,以无碍尺度重新定义办公。
同时,各独栋企业可享有LOGO冠名权,在彰显实力的同时也起到了宣传企业的作用。一企一栋的布局做到了真正的独门独户、私密办公,彰显企业实力。入驻企业可以根据自己的需要进行空间优化,定制装修风格,享受“量身定制”的尊贵感。

| 项目效果图
中南高科·智汇谷,广州市重点建设项目,总占地面积约168亩,总建筑面积约35.2万㎡,是目前中新科技园内规模最大的产业园区。项目以“芯、显、车”三大产业为基础,重点招引智能终端、5G通信、信创、新型显示等为主导的高新技术、专精特新等产业链龙头企业,打造粤港澳大湾区高端电子信息产业集聚地。
交通上,园区北临二横路,东接乌石路,西连纵四路,南紧邻临河景观道;同时,距离坑贝站约600米,增城西站约3.5公里,通过园内+园外路网,为园区企业运输提供便利。

设计上,采用3.0生态型园区建设标准,以“一带一轴三组团”设计规划,串联起各个功能模块,通过规划结构层、复合环形层、理性基础层三个层次的景观,将绿带、滨水、活动广场穿插其中,将其打造成为具生态、文化、活力为一体的开放共享、多元复合的产业生活园区。

| 示意图
配套方面,园区综合楼涵盖商业、食堂、停车等配套。园区多元产品设计可以满足企业研发、生产、办公等一体化需求,方便员工足不出园就能享受舒适的高品质园区生活。
“建筑是有生命的,它虽然是凝固的,可在它上面蕴含着人文思想。” 正如建筑大师贝聿铭所言,中南高科智汇谷赋予建筑以生长活力,将全生命周期理念融入园区的每一个细节,以不断进化的空间、价值和服务,与企业一同成长。

| 中南高科智汇谷·增城鸟瞰图
●【占地面积】约168亩
●【建筑面积】约45.6万㎡
●【产业定位】新一代电子信息技术、智能制造产业
●【项目产品】3-5层独栋厂房建面约2000-5000m²、11-13层高层厂房建面约802-1900m²
●【招商电话】400-0123-021,13391219793
●【项目地址】广州市·国家级增城经济开发区·中新科技园内(坑贝地铁口600米)


泰国厂房出租 永久产权土地出售
越南厂房出租 工业土地出售
重点推荐园区厂房
“嘉昆太”核心区 太仓城厢南郊厂房出售 1100平起
昆山高标准厂房出租 花园式 免费午餐 价格优惠
中南高科 全国80城标准厂房出售招商
光正 全国各地高新区 厂房定制招商 5-10亩起土地定制
上海长宁区 生物医药 医疗器械专业园区厂房出租招商
力合科创产业园 厂房出租出售 全国大量园区
嘉兴平湖市明湖科创中心 租金补贴
天能·湖州新能源科创城| 配有产业引导基金
兆达未来广场|合肥天鹅湖CBD 大小面积均可出租
更多厂房土地 请点击【园区产业招商】


