在独栋厂房风靡的当下,企业对生产、办公场所提出更高的期许,对空间个性化的需求越来越丰富,这就对厂房的建筑形态、功能配置提出了更高的要求。
中南高科·成都温江智造云谷,作为中南高科西南区域首个“睿科”系新一代产业园区,项目以“需求至上”与“创新引领”两大核心研发理念,在独栋厂房户型全面升级,推出创新户型——四拼独栋,自带复合性、独立性、私密性,让个性化成为可能,为企业提供更多想象与创造空间。

| 中南高科·成都温江智造云谷实景图
在设计之初,中南高科便从关注企业与产业对空间的功能需求这一角度着手,于传统独栋户型之上,在空间感、人货分流以及功能性空间这三个方面实现突破。

| 项目全景效果图
首先,空间感的大幅提升。
三层独栋总建筑面积约6700m²,单套小面积为1560㎡,首层层高8.1m,3T承重,且框架结构、格局方正、易于布局;二层层高4.5m,800Kg承重,可用于生产。三层层高4.5m,800Kg承重,可用于生产、研发、办公等,合理的层高设置可将生产、研发空间与行政管理空间有效分离,全面兼顾生产、研发、办公三大核心需求。

|分层管理+功能分区
其次,强化人货分流。
双入口设计,正立面设置出入口,后方设置货运出入口,设置独立门厅和电梯直达每层,合理排布电梯井、消防通道、人流及物流通道,配备无障碍运货通道、卸货平台以及大容量货运电梯等配置,实现人货分流互不干扰。
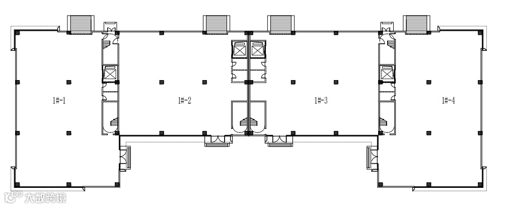
丨园区1#楼户型图
有别于传统独立独栋,产品设计上,四拼独栋厂房采用“一"字型、“回”字形、“H”型科学排布,通风和采光效果俱佳,且楼栋之间相互独立互不打扰,又互相连接,以无碍尺度重新定义办公。
同时,各独栋企业可享有LOGO冠名权,在彰显实力的同时也起到了宣传企业的作用。一企一栋的布局做到了真正的独门独户、私密办公,彰显企业实力。入驻企业可以根据自己的需要进行空间优化,定制装修风格,享受“量身定制”的尊贵感。

| 项目实景图
中南高科·成都温江智造云谷,成都市重点建设项目,总占地面积约82亩,总建筑面积约9.6万㎡,是目前成都医学城内标杆产业园区。项目重点招引智能制造、电子信息相关产业,同时辅以温江区三医产业发展基础的高新技术、专精特新等产业链龙头企业,打造成都温江区高端产业集聚地。
项目位于温江区金马街道李家牌坊,整体位置十分优越。项目到温江站10分钟车程,到成都西站30分钟车程,距离双流国际机场30分钟车程,园区出入有康益路、海旺路、骑士大道、温泉大道、新华大道、成温邛快速路等交通要道,非常方便。

设计上,采用3.0生态型园区建设标准,以“一带一轴多组团”设计规划,串联起各个功能模块,通过规划结构层、复合环形层、理性基础层三个层次的景观,将绿带、滨水、活动广场穿插其中,将其打造成为具生态、文化、活力为一体的开放共享、多元复合的产业生活园区。

| 示意图
配套方面,园区综合楼涵盖总部办公、物业中心、食堂、快递站、超市、停车等配套。园区多元产品设计可以满足企业研发、生产、办公等一体化需求,方便员工足不出园就能享受舒适的高品质园区生活。

“建筑是有生命的,它虽然是凝固的,可在它上面蕴含着人文思想。” 正如建筑大师贝聿铭所言,中南高科·成都温江智造云谷赋予建筑以生长活力,将全生命周期理念融入园区的每一个细节,以不断进化的空间、价值和服务,与企业一同成长。

| 中南高科·成都温江智造云谷鸟瞰图
选址高科4大理由
①高科技绿色生态产业公园社区,产品立面工业化设计与开放的生态社区相融合,满足不同生产场景及社交环境。
②高科一体化管理:园区统一规划、统一设计、统一报建、统一物管,集中统一规划分期分批开发建设。
③双证齐全可办按揭20年大产权国土证,具备标准产权证,可办理按揭,贷给企业稳定发展平台,同时具备投资价值,抵御通胀。
④多元户型:每栋预留独立货梯空间;框架结构生产层(首层)8. 1米挑高,标准层4.5米挑高,顶层4.5米挑高,生产层单位承重3吨,标准层承重0.65-0.8吨,独立疏散安全保障。

中南高科全国各地产业园,标准厂房出售招商
咨询 400-0123-021 或 13391219793
更多项目可点击下图查看
中南高科产业园 标准厂房招商中 欢迎接洽葛总

中南高科 全国80城标准厂房出售招商
“嘉昆太”核心区 太仓城厢南郊厂房出售 1100平起
昆山高标准厂房出租 花园式 免费午餐 价格优惠
泰国厂房出租 永久产权土地出售
越南厂房出租 工业土地出售
上海长宁区 生物医药 医疗器械专业园区厂房出租招商
力合科创产业园 厂房出租出售 全国大量园区
嘉兴平湖市明湖科创中心 租金补贴
天能·湖州新能源科创城| 配有产业引导基金
更多厂房土地 请点击【园区产业招商】





