产业发展日新月异的今天,什么样的园区才能更好地演绎时代命题,才能更好地适合制造业发展?
作为中南高科重点打造第三代产业园项目,中南高科智造园·珠海在坚持“功能至上、高效为王、灵活千面、陪伴服务”的设计运营理念下,结合城市产业基础及产业升级转型的需求,推出了企业“定制”厂房的服务模式,给出了一份让企业“满意”的答卷。

| 中南高科智造园·珠海效果图
中南高科智造园·珠海,依托中南高科10+年,近200座园区运营经验,根据不同企业的个性化需求,通过高效定制、品质服务、量身设计三大方面,提供定制化一站式服务方案,满足多种规模企业生产、办公、研发等多重需求,打造出“更懂制造业产业园区”。

菜单化定制+高效反馈机制,可轻松实现当天出方案,7天完成个性化定制!帮助企业快建设、快交付、快投产!可定制的园区智能化应用系统,覆盖安防、环保能源、安全等方面,为企业生产生活提质增效!
品质与服务两手并重,从设计阶段就倾听企业需求,提出专业设计规划,精工团队与300+施工细则的“超强组合,确保打造高品质厂房,咨询、设计、工程、产服全流程专业团队搭建,金融、行政报批、法律、人才等多维服务体系,提供360°全方位“管家式”服务!
量身设计+精工细造的定制化方案,可以最大程度缩减入园时间与成本。降低后续改造费用和风险,专属服务团队全程跟进,节省了企业专职人员设置,付款方式也更加灵活为企业省心省力,省时省钱!
中南高科智造园·珠海3-4层定制独栋厂房,面积约2100-8400㎡、独户货梯,其大面积自由空间,可以让企业自由发挥打造,无论是在横向平面空间,还是在纵向垂直空间都可以进行结构调整和布局调整,放大企业实际可使用空间面积,创造专属于企业生产特色的合理空间。

| 中南高科智造园·珠海效果图
首层层高约7.2m,承重约2T;二层至三层层高约4.5m,承重约0.5T,顶层层高约3.9m,承重约0.4T,且可根据企业的设备尺寸、承重需求进行参数升级,可以帮助企业快速投入生产经营中,减少企业后期厂房施工改造成本,真正为企业实现降本增效。

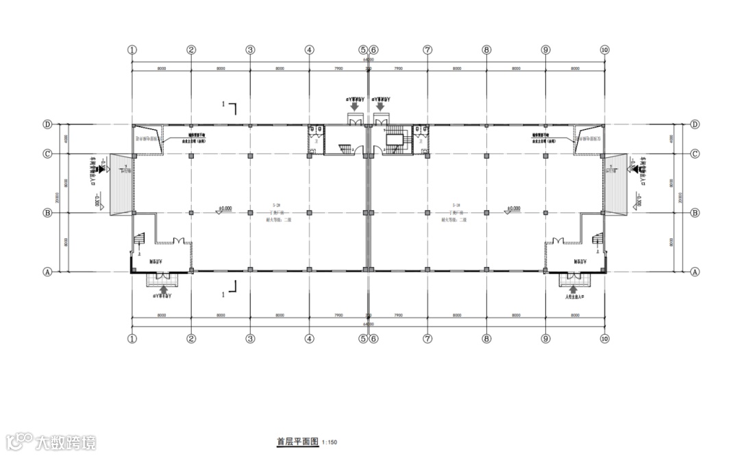
| 独栋首层平面图
此外,每层预留吊口,可容纳大型机械生产型企业,还能依照企业不同的生产工艺流程及需求定制柱距、牛腿、电梯荷载等,货梯,楼梯间,卫生间等位置可灵活调节,来更好地帮助企业稳定发展。

| 7#独栋实景图
在厂房定制化同时,项目依托中南高科“2+4+6+N”服务体系,为入驻企业提供“定制化”产业服务,通过政务、金融、运营、人才招聘培训及园区配套、文化活动、物业管理等产业服务,不断深入各个产业链接平台,为企业提供高效率、高品质、陪伴式服务,与企业共成长。

中南高科·智造园,作为中南高科产品线中最为高端的科技创新型园区,项目位于珠海市第三个省级开发区斗门智能装备制造产业园内,片区内已累计引进百奥电气、东升源、力强仪表、正川科技、精实测控、永臻等36个制造项目。
借助“链主”项目,通过上下游产业链招商模式,项目重点招引新一代电子信息技术(5G、人工智能、新型显示科技)及智能装备制造(智能成套装备、机器人、工业互联网)等为主导产业。

| 斗门智能制造经济开发区企业分布图(来源:斗门融媒)
当前,在市、区各级政府的高度重视和关注下,项目建设跑出发展加速度!园区独栋7#已结构封顶、外立面工程即将完工、室内水电工程施工,高层8#桩基工程已完工、基础土方开控施工中!欢迎各位企业家前来项目实地考察!

| 高层8#开工
好的园区让企业发展更长久。未来,中南高科智造园·珠海将切实从企业需求出发,为制造业企业提供的远不止是美观且实用的工业厂房,更是让制造业企业安居乐业,专注发展的一方沃土,打造“更懂制造业的产业园区”,为制造业企业成长提供有力支撑,让入园企业的发展更领先!

| 中南高科智造园·珠海鸟瞰图
●【占地面积】约83亩
●【建筑面积】约17万㎡
●【产业定位】新一代电子信息技术、智能装备制造产业
●【项目产品】3-4层独栋厂房、9层高层厂房
●【项目地址】珠海市斗门区斗门智能制造产业园内
中南高科全国各地产业园,标准厂房出售招商
咨询 400-0123-021 或 13391219793
更多项目可点击下图查看
中南高科产业园 标准厂房招商中 欢迎接洽葛总



