泰国北柳府 |【保税区】Zone 4—Bangpakong Km. 53 厂房出租 1800平起租
UO-2025-01-14
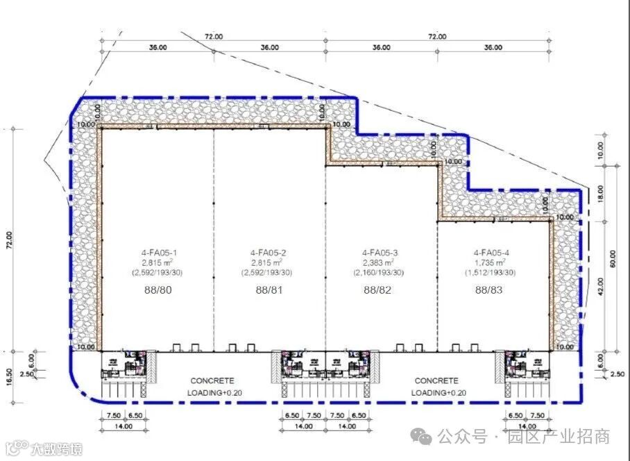
在空有4座 [88/80 – 88/83]
出租:170泰铢/平米
押金五个月,预付一个月
(施工正在进行中,将于2025年8月-9月完工)
88/80
总面积 = 2,815平米
工厂仓库面积 = 2,592平米
尺寸(宽 x 长)= 36 X 72
办公区(1FL./84 + 2FL./109)= 193平米
坡道 = 30
装卸平台 = 2
卷帘门 = 3
停车场 = 5
88/81
总面积 = 2,815平米
工厂仓库面积 = 2,592平米
尺寸(宽 x 长)= 36 X 72
办公区(1FL./84 + 2FL./109)= 193平米
88/82
总面积 = 2,383平米
工厂仓库面积 = 2,160平米
尺寸(宽 x 长)= 36 X 60
办公区(1FL./84 + 2FL./109)= 193平米
88/83
总面积 = 1,735平米
工厂仓库面积 = 1,512平米
尺寸(宽 x 长)= 36 X 42
办公区(1FL./84 + 2FL./109)= 193平米
88/80-83
总四座面积 = 9,748 平米
工厂仓库面积 = 8,856平米
办公面积 (1FL./84 + 2FL./109) = 772平米







400-0123-021,
13391219793,

中资企业出海 请点击【园区产业招商】
【声明】内容系转载自其它平台或媒体文章,本平台不对所包含内容的准确性、可靠性或完整性提供任何明示或暗示的保证,仅供读者参考。若侵犯著作权,请主动联系本平台并提供相关书面证据,本平台将更正来源及作者或依据著作权人意见在24小时内删除该文章,并不承担其他任何责任。

