上海嘉定(南翔)国际精准医学创新中心及产业化基地
【地址】:上海市嘉定区南翔镇浏翔公路与蕰北路交叉口东南侧
【招商对象】:生物医药、医疗器械、人工智能等领域
【轨交】:地铁11号线陈翔公路站,15分钟虹桥枢纽
【车行】:嘉闵高架、沪翔高速、沈海高速、沪嘉高速
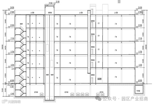
【面积】:总用地面积为22亩(14483.5㎡);总建筑面积为37712 ㎡,容积率为2.0
【政府政策】:市区两级政策叠加,大张江政策,嘉定区产业引导基金,科技政策、产业政策等
【租金价格】:弹性免租期
【其他配套】:周边居住便利,园区自带咖啡厅、食堂、便利店。




招商引资 考察 接洽 133 9121 9793
中资企业出海 泰国 | 越南 | 印尼 | 柬埔寨 | 马来西亚 | 墨西哥 | 美国

