【合肥良厚新材料产业园】
项目位于合肥市蜀山区运河新城板块,合肥蜀山经济技术开发区 于2021年6月经国务院批准升级为国家级经济技术开发区,蜀山经济开发区环境产业“一谷两心”加速形成。 2020年3月份,运河新城与东部新中心、大科学装置集中区、空港示范区、骆岗中央公园并列合肥五大重点发展片区,并纳入滨湖科学城创新引领核空间战略发展中,与滨湖、高新同步发展,占位顶层发展战略。
“十四五”期间,运河新城将依托“科大硅谷”“中国环境谷” 双谷联动的全域科创格局,深入谋划并启动产业导入。突出生态环保、信息技术、大健康、高端服务业等产业方向,加快片区项目建设,重点引进环保技术研发、环保装备制造、环境治理、环保工程及环保服务等环境产业上下游企业,打造环境科技型企业聚集区,将运河新城建设成长三角一体化发展产城融合示范区和合肥重点片区建设新样板。
1、项目区位
项目位于蜀山区金水湾路与小蜀山西路交口东北角,距离合肥市人民政府20km,合肥高铁南站30km,30分钟车程,合肥政务新区20km,合肥滨湖新区30km,周边有轨道交通2、4号线,仅3km距离,距离合肥绕城高速仅10分钟车程。且周边以产业园、工业厂房为主,地块南边和东边有安徽医科大学临床医学院和合肥百花中学等优质的教育资源,地块北侧拥有优秀景观资源小蜀山,东侧临地铁2号线南岗车辆段。
2、项目概况
项目占地70亩,总建筑面积7万方,并配套人才公寓及生活基础设施,主要招引新材料、新能源汽车及零部件、新型储能,先进光伏、高端装备等先进制造业。目前项目在建设中,预计2024年底部分厂房完工。
3、项目产品
产品全部出租,可分租整租;丙二类消防等级
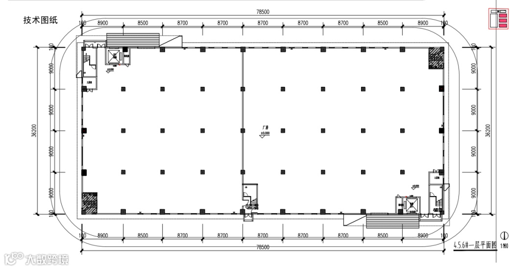
单层轻钢:3# 总面积11174㎡,层高17米,可分租。
4层框架:4#、5#、6#
单层面积:1260㎡+1575㎡,层高:9/5/4.5/4.2米;电梯6台(1000KG)
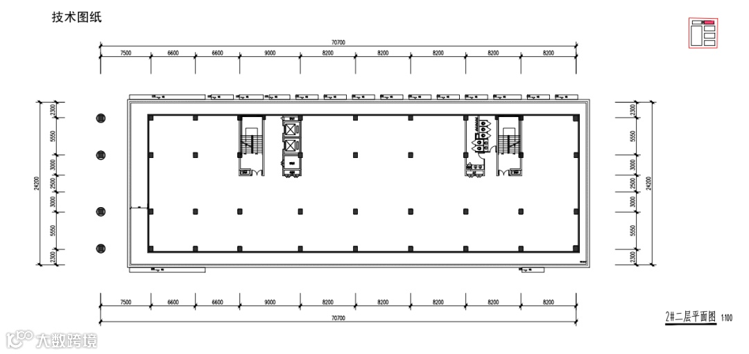
6层框架:1#(宿舍)、2#(研发办公楼)
单层面积:1711㎡,层高:5/4.2/3.5/3.5/3.5/3.5米;4台电梯(1000KG)
部分立面材质展示:
合肥厂房出租出售 400-0123-021
欢迎关注、点赞、转发






