亮亮·万马(广德)智造产业园
广德经济开发区核心位置,单层和双层厂房
【规模】占地面积160亩,建筑面积11万方
【产权】工业50年
【定位】装备制造,汽车零部件,五金模具,
电子电路
【绿化】15%
【容积】1.8
【户型】单层、两层、两层半
【层高】单层12米
两层一楼8.1米、标准层4.2米
【面积】1200~5000平米/可自由组合
【消防】丁类预留丙类
亮亮·万马(广德)智造产业园位于安徽省宣城市广德经济开发区,占地约160亩,总建筑面积11万㎡,总投资达10亿元。园区依托广德市先进制造业产业集群基础,计划重点导入装备制造、电子信息、汽车零部件、新材料等产业,着力打造长三角智能制造示范园区。
项目交付后,预计将吸引50多家产业链上下游企业入驻,致力于打造集研发设计、生产制造、产品展示、生活配套功能于一体的产业园区。
效果图
区位优势
广德市位于苏浙皖三省八县(市)交界处,东临杭嘉湖,北倚苏锡常,周边有上海,杭州,南京,合肥4个省会城市和16个大中发达城市,是安徽省唯一与苏浙两个省份接壤的县级市,是东进西出的桥头堡,南北经济的结合点,是华东沿海经济挺进安徽等中西部地区的第一站,交通便捷,运输发达,素有“三省通衢”之美誉。
【公路】
紧邻318国道、太极大道(双向三车道)
【高铁】
距广德南站高铁站9.2公里
【高速】
距广德东高速入口约0.8公里
距广德高速入口约9.6公里
G50沪渝高速、合杭高速交汇,四通八达
【空运】
上海虹桥,浦东,杭州萧山,南京禄口,合肥新桥,芜湖-宣城,一小时左右路程
【海关】
安徽皖东南保税物流中心已封关运行(距项目地2.5公里)
【物流】
德邦物流,安能物流等知名物流
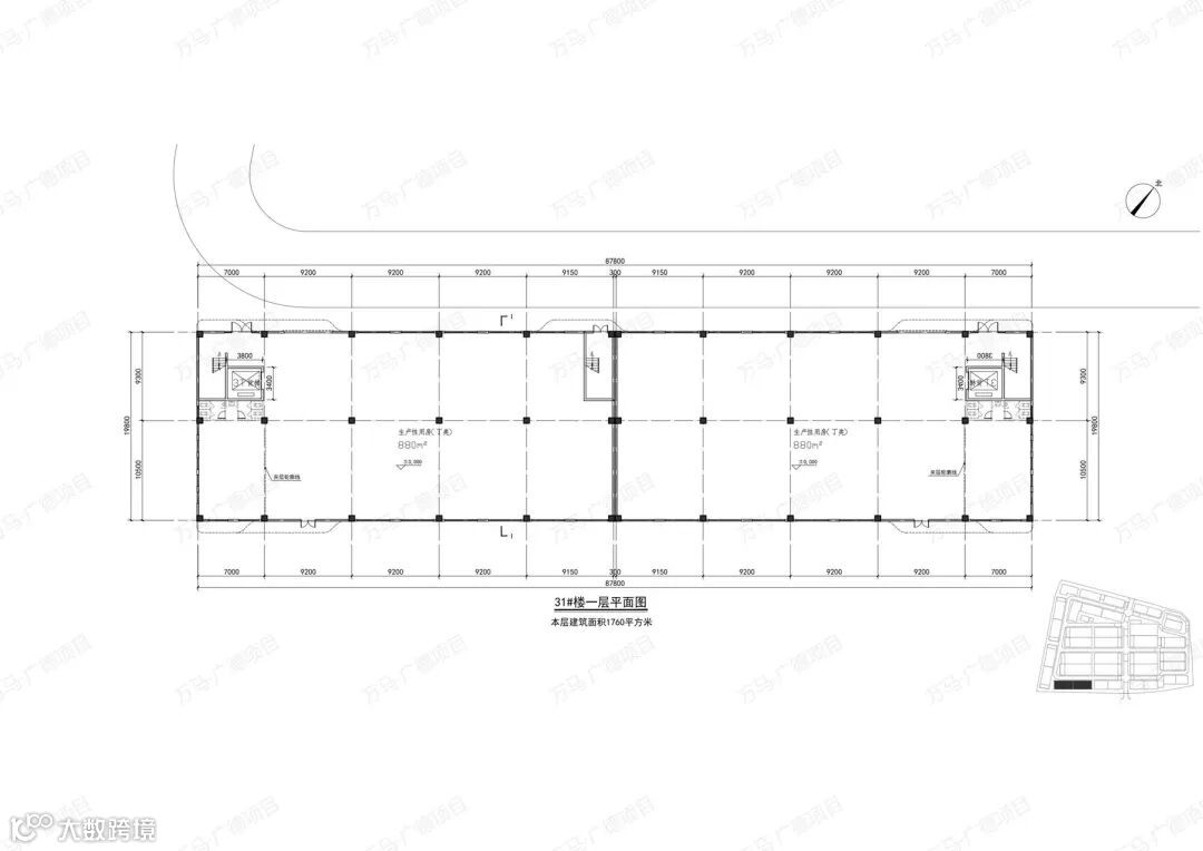
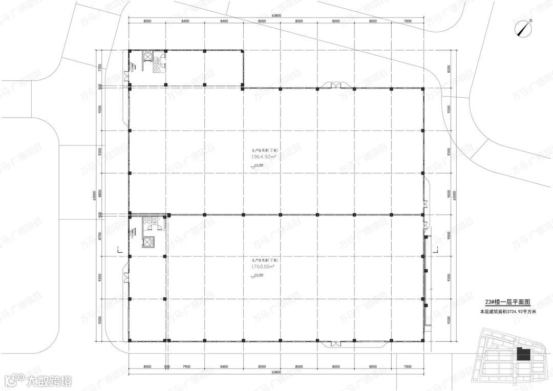
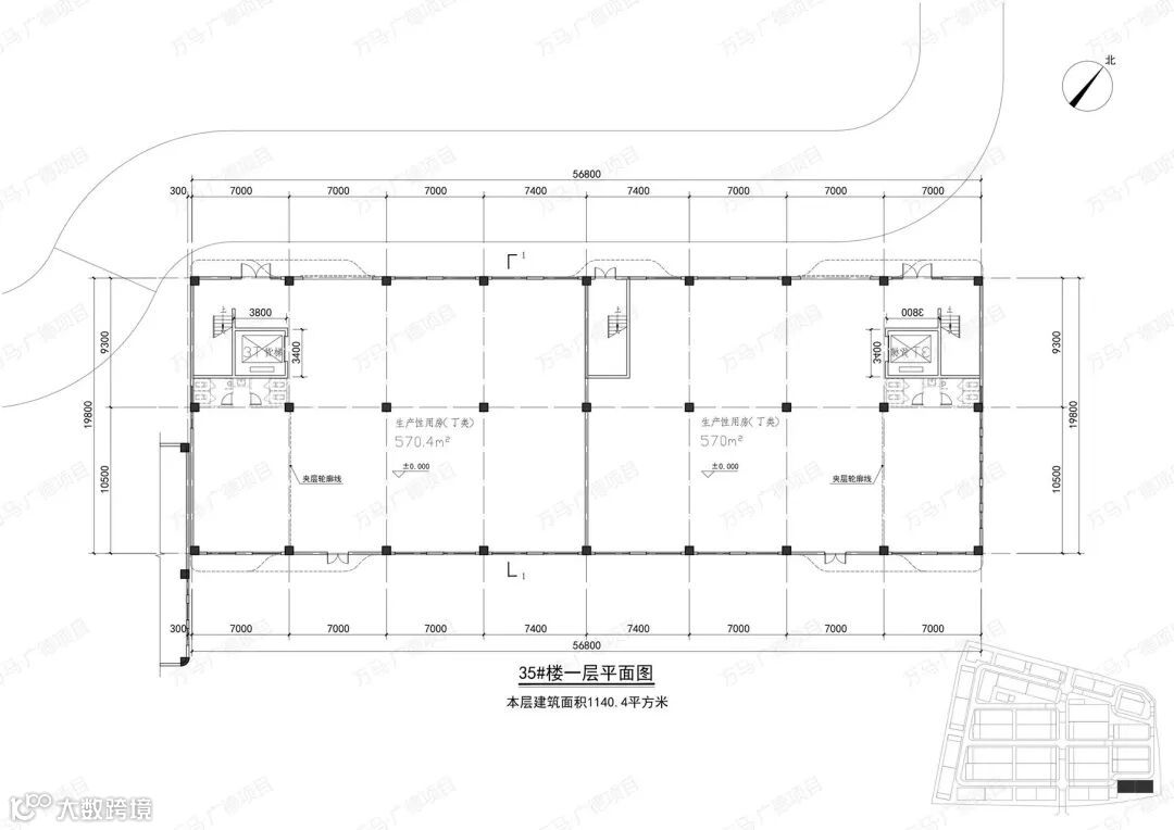
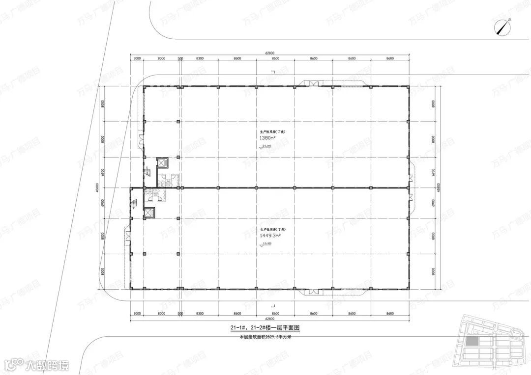
【户型展示】
总平面图
单层户型
两层户型
现场展示
招商中心:安徽省宣城市广德经济开发区太极大道以南、振业路以东
广德厂房出售招商 400-0123-021
欢迎关注、点赞、转发






