
国科(南通)智港火热招商中
空港旁15分钟 上海北核芯产业园
项目地址:南通市海门区余东镇工业园C区铭轩路与通希路交叉口东南侧国科(南通)智港产业园
招商中心:铭轩路与通希路交叉口东南侧国科(南通)智港产业园12号楼1楼

【项目介绍】
空港配套
八龙过江,江南江北无缝衔接

区位优势:项目位于海门重点工业园区余东镇工业c区,上海南通国际机场东部工业集聚片核芯,招工无忧。3分钟达镇中心,15分钟达高速口、国际机场和北沿江高铁海门站,30分钟达海门市区与进出口贸易通州湾港口,90分钟通达上海、张家港、常熟、昆山等
产业方向:智能制造、新一代信息技术、新材料、高端家纺、纺织机械……
【产品信息】
2层稀缺厂房2.5层赠送超大露台花园4层高标厂房
产品形态:独栋、双拼品质框架厂房
产品规划:1000-8000㎡生产、研发、办公
产权性质:50年可分割独立产权
项目配电:70KVA/k㎡
物业:自有物业公司管理
【户型介绍】
户型:2层(双拼)、2.5层(双拼)、4层(独栋、双拼)
面积:1000㎡-8000㎡
2层/2.5层层高:1F 7.8m、2F 4.5m 、3F 3.9m
4层层高:1F 8.01m、2F 8.01m、3F 3.75m、4F 3.5m
2层/2.5层承重:2F=500kg/㎡、3F=350kg/㎡
4层承重:2F=800kg/㎡、3F=500kg/㎡、4F=500kg/㎡
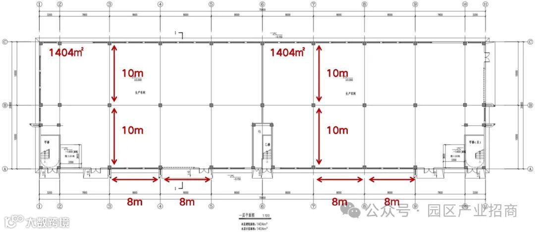
2层代表户型

2.5层代表户型

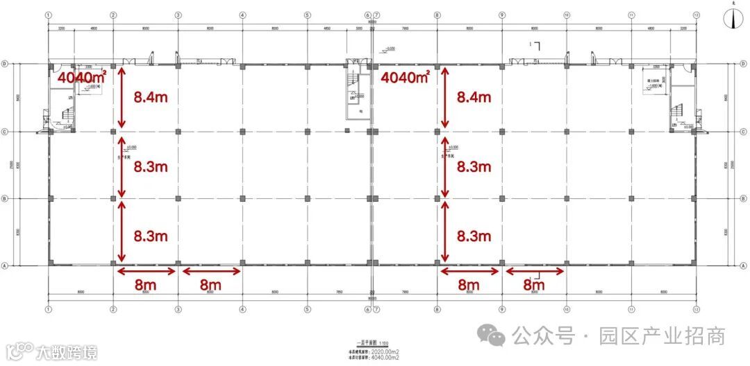
4层代表户型

【项目配套】
⚙交通配套:海陆空铁齐全。15分钟直达4F级上海南通国际机场、北沿江高铁海门北站,30分钟过海太通道抵达台常熟、太仓,一小时通达苏锡常及上海周边城市。
⚙生活配套:3分钟生活圈,镇政府、商场、学校、医院、电影院、银行、公园、物流、加油站一应俱全。
⚙产业配套:15分钟内超170家五金配件、标准件生产厂家,3家电镀、金属表面处理厂以及海门大型电镀园区(南通绿岛项目“中新电镀园”)。
⚙物流配套:30分钟内,近140家物流公司,可发往全国各地;30万吨级的深水航道通州湾港口,8000万的吞吐量,货运通达全球。
免责条款
本资料所示图片及文字仅供参考,绝不构成任何表述、承诺或保证,一切以政府批准文件和双方签订的合同为准,最终解释权归开发商所有。









中南高科 全国80城标准厂房出售招商
“嘉昆太”核心区 太仓城厢南郊厂房出售 1100平起
昆山高标准厂房出租 花园式 免费午餐 价格优惠
泰国厂房出租 永久产权土地出售
越南厂房出租 工业土地出售
上海长宁区 生物医药 医疗器械专业园区厂房出租招商
力合科创产业园 厂房出租出售 全国大量园区
嘉兴平湖市明湖科创中心 租金补贴
天能·湖州新能源科创城| 配有产业引导基金
更多厂房土地 请点击【园区产业招商】




