ZOINA HI-TECH
中南高科·涿州方方电子信息产业园秉承助力产业发展与转型,为中国制造业注入新活力的初衷,深耕环京,落子涿州高新区,毗邻北京,交通便捷,营造良好营商环境,为企业发展创造便利条件。
ZOINA HI-TECH
毗邻北京 产业高地
中南高科涿州方方电子产业园位于涿州市高新区腾飞大街与督亢路西南角,项目占地面积40亩,规划建筑面积4.2万平方米,总投资额超2亿元,计划引进高端装备制造业、新一代信息技术、新材料、生物医药等行业,以产业经济带动区域发展。
ZOINA HI-TECH
良好区位 交通便捷
高新区内已引入中国钢研航空航天产业园、中船重工武器研发中心、五矿稀土研究院、中冶设备院装备检测认证中心、中创总部北斗产业基地等12家央企和11家上市企业。
项目距离北京50公里
项目距离雄安60公里
项目距离京港澳高速涿州北出口2公里
项目距离京雄高速出口13公里
项目距离首都大兴机场30公里
项目距离京广高铁涿州东站5公里
项目距离京九铁路程涿州站7公里
项目距离大兴机场航站楼2公里
项目距离待建的北京公交838总站1公里
距离华北最大的中通物流集散中心2公里
项目距离央视总台录播总部6公里
ZOINA HI-TECH
品牌开发 产品丰富
【项目名称】中南高科·涿州方方电子芯片产业园
【项目位置】涿州高新技术开发区内腾飞大街和督亢路交口(中船重工对面)
【占地面积】总占地308亩,一期40亩,滚动开发建设
【产品形态】3层/3.5层/4层(按栋销售)
【面积区间】独栋产品1200-4000平米/分层产品600平米
【产权年限】50年工业产权
【产品层高】7.8米+4.2米+3.9米
【承重】首层承重3吨/㎡,二层承重450公斤/㎡【年限】大产权50年,有土地证,可注册环评
【运营】以基础服务、增值服务、产业投资为核心的三位一体的八大运营服务体系
【交通配套】京昆高速、京港澳高速、环首都高速、京雄高速、京广高铁、大兴机场
【物业服务】中南自身物业公司
【付款方式】可按揭、分期、全款,按揭首付最低30%。
【产业环境】涿州高新区学校,浪潮总部、阿里数据中心,歌华有线、中船重工,五矿集团
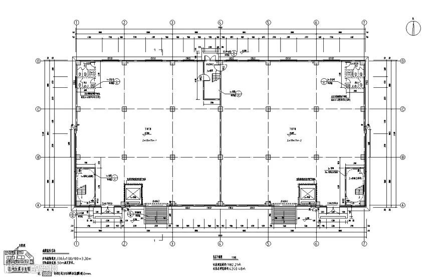
【四拼户型】
3层 1200平
单层400平
层高7.8米+4.2米+3.9米
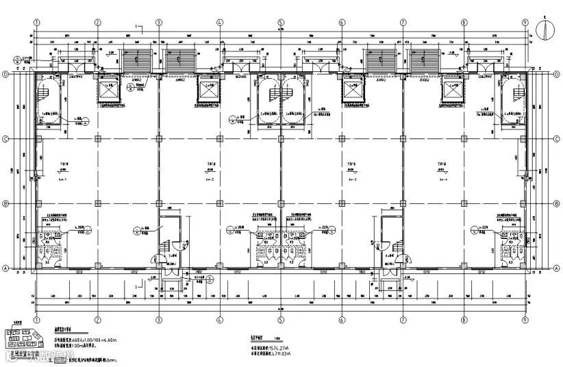
【三拼户型】
3.5层 1400平米
单层400平米
层高7.8米+4.2米+4.2米+3.9米
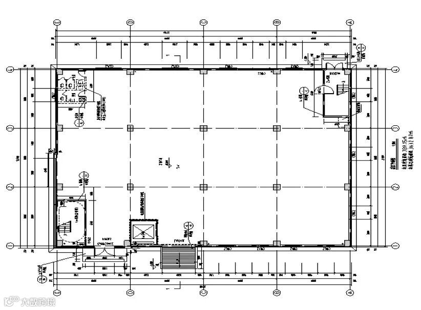
【双拼户型 3.5层 2100/4200平米】
单层600/1200平米
层高7.8米+4.2米+4.2米+3.9米
—————————————————————
4.5层2700/5400平米
单层600/1200平米
层高6米+4.2米+4.2米+3.9米+3.9米
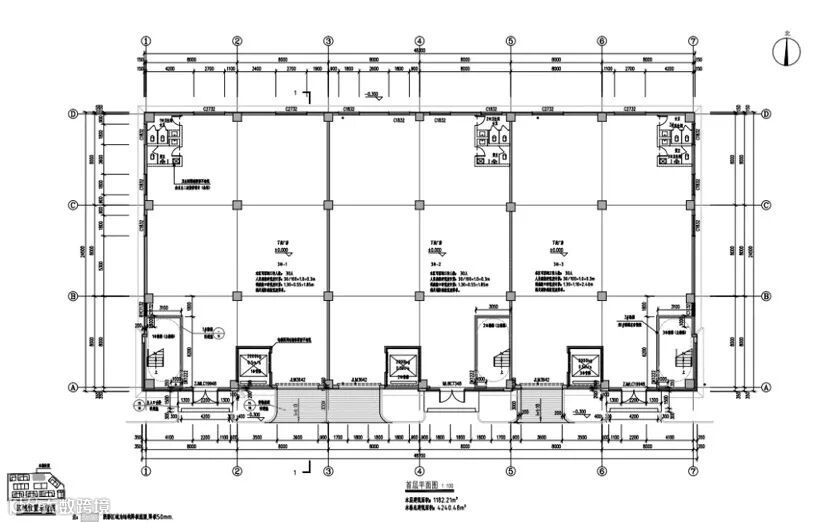
【独栋/分层户型】
4.5层 3600平米 单层800平
层高6米+4.2米+4.2米+3.9米+3.9米
中南高科·全国200+产业园招商中
考察及商务洽谈 请联系上海总部招商中心葛总



