厂房出租15,568平方米。罗勇市 IEAT工业区,深紫色。
租金每平方米:230泰铢/月
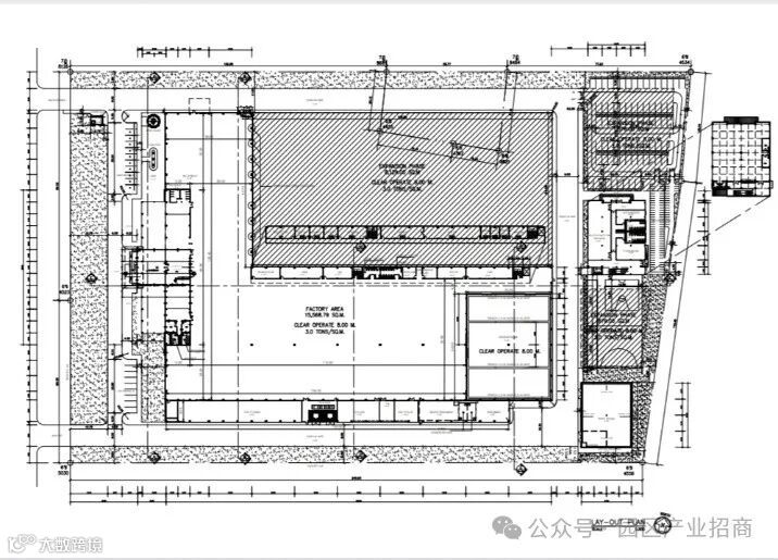
总建筑面积:15,568平方米。
工厂及办公面积:13,449.79平方米。
建筑高度:8米,长×宽:165×80米
自助餐厅:1,517 平方米。
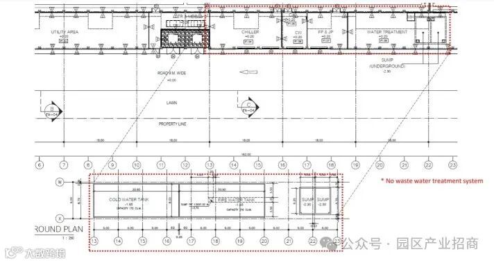
垃圾存放处:582平方米。
警卫室:20平方米。
租赁期限
最短租赁合同:3年,3押1付。
地面荷载3吨/平方米。
灭火器/应急灯
喷水灭火系统
电力变压器 2 台,规格 2,500 KVA
阿美塔市罗勇工业区
距比亚迪电动火车工厂10公里。
距林查班港 37 公里。





中资企业海外选址服务中心,
400-0123-021,
13391219793,

中资企业出海 请点击【园区产业招商】
【声明】内容系转载自其它平台或媒体文章,本平台不对所包含内容的准确性、可靠性或完整性提供任何明示或暗示的保证,仅供读者参考。若侵犯著作权,请主动联系本平台并提供相关书面证据,本平台将更正来源及作者或依据著作权人意见在24小时内删除该文章,并不承担其他任何责任。

