
中南高科·涪城智能电子产业园
总规划用地约760亩,建设面积40余万平米,分三期开发,总投资约25亿元,投产后可容纳200家企业,实现年税收1.6亿元,解决6000人就业。项目产品以多层标准厂房为主,计划招引产业以智能电子、5G产业链、装备制造为主。

项目1#地块鸟瞰图
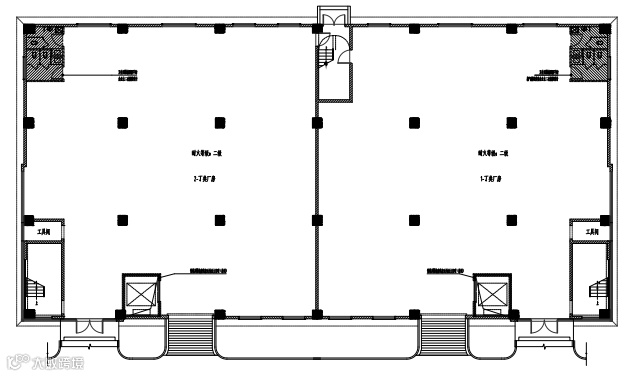
— — 1#地块基本概况 — —
【总用地面积】:152亩
【总建筑面积】:11.5万㎡
【容积率】:1.0
【产品】:2-2.5层标准厂房
【楼栋】:共33栋,其中2层4栋,2.5层29栋
【层高】:首层8.1/7.8m,标准层4.2m,顶层3.9m
【承重】:底层承重3000kg/平米,标准层 450kg/平米, 顶层350kg/平米
【配电】:50KVA/1000㎡
【机动车道】:8-10米
【柱网尺寸】:8米
【电梯荷载】:预留2吨货梯井
【消防等级】:丁类
【产权】:50年
【机动车位】:420个
【非机动车位】:690个
【园区配套】:一套2F企业服务楼1178 ㎡,包括 1F 物管用房、监控中心、厨房、公卫、超市、快递站以及 2F 餐厅,服务整个园区。
【园区景观】:一轴两心多组团景观带,东西主景观轴+南北视觉通廊打造园区特色景观体系,形成主要景观轴线。引导建筑序列,构成完整延续的厂区。

园区中心景观图

框架产品外立面图

项目沿街视角图
— — 户型鉴赏 — —
单体建筑二层、两层半丁类厂房,厂房多为双拼户型,少量独户型和三拼户型。
首层层高8.1/7.8m,主力面积范围1200-2500㎡,可自由组合;
单栋面积有1200㎡、1500㎡、2000㎡、2400㎡;
组合面积有2500㎡、3200㎡、3500㎡、4000㎡、4200㎡、4800㎡;
布局方正,高承重,8m超大柱距,可满足不同类型企业生产、研发、办公等多种需求,也可为企业量身定制厂房。
A户型 ▏ 首层600㎡,共2.5F,总面积约1500㎡

B户型 ▏ 首层800㎡,共2.5F,总面积约2000㎡

C户型 ▏首层600㎡,共2F,总面积约1200㎡

— —招商中心样板房展示— —

园区主入口实景图


中庭景观带实景图


招商中心实景图

样板间实景图
— — 核心价值 — —
1.【品牌实力】
中南集团—中国企业500强第70位
中国民营企业500强第10位
中南控股集团成立于1988年,其下有上市公司中南建设(SZ000961)。目前已形成了“4+1”业务布局——中南置地、中南建筑、中南高科、中南实业投资和中南教育。2020年总资产超3300亿元,员工逾10万人,管理人员近2万人。


中南高科
产业园覆盖城市数量排名第一
中国指数研究院颁发荣誉:中国产业园区运营商综合实力TOP10
克尔瑞(中国)颁发荣誉:2021 年全国产城发展商综合实力第 2 名
中南高科成立于 2015 年,以新兴产业园区发展为基础,以产业资源导入与产业发展服务为核心竞争力,全力赋能优秀企业与企业家,致力于打造集产业研究策划、园区开发、产业资源导入及产业园综合运营服务于一体的服务中国制造业的平台。

以打造“服务中国制造业的超级平台”为愿景,中南高科专注于制造业产业园区开发与运营这一赛道,聚焦核心区域,有机拓展全国布局。根据仲量联行 2020 年统计数据显示,在制造业产业园开发及运营商中,中南高科已获取项目覆盖城市数量排名第一,总建筑面积排名全国第二。


2.【城市规划】临港经济发展区
园区位置所属绵阳临港经济发展区,总体规划面积54平方公里,是绵阳产业南进的重要载体和最大的先进制造业发展基地。其中范家片区,拟修建35万平米电子标准厂房,道路、电力、污水处理等配套设施日臻完善。
临港经济发展区建设周期为5年,目前园区已具备大规模开发建设的总体框架,形成了良性循环的软硬投资环境。

3.【交通】双交通环绕
项目位于绵阳市涪城区石塘镇范家村凤凰东路旁,项目周边绵阳二环路、御中南路、绵州大道、三江大道等交通要道构架起多维立体交通体系,缩减运输成本。
机场:距绵阳南郊机场仅5分钟车程,绵阳机场开通有直达北京、上海、广州、深圳等近42个城市的59条航线。距成都双流国际机场仅1.5小时车程,同时绵阳高铁也可直达双流机场。
高速:项目紧邻多条高速,距离成万高速入口10公里,距离项目较近的有绵西高速、成渝环线高速、成万高速;
高铁:紧邻宝成铁路、成绵乐铁路、成西铁路、成兰铁路,距离绵阳站10分钟车程,距离皂角铺站(货运)15分钟车程。

4.【产业配套】产业基础扎实 营商环境优质
涪城正构建以新型显示、汽车电子、5G三大重点产业集群为支撑的先进制造产业体系。
龙头企业:长虹集团、京东方、惠科光电、富临精工、龙华薄膜、康宁、九州光电子华拓光通信、永贵科技等相关企业约20户。
5.【生活配套】教育、医疗、商贸
教育:项目周边有石塘镇小学,同时整个绵阳拥有各级各类学校1476所,其中西南科技大学等高等院校14所,中等职业学校35所,绵阳中学、南山中学双双入选“全国百强中学”,东辰中学被评为全国民办教育标杆。
医疗:现有绵阳市中心医院、绵阳市第三人民医院等三级医院18所,医养结合机构17家,健康养老限上企业79家,医疗资源总量和服务能力居中西部地级市第1位。
商贸:项目距离经开万达广场有2公里,目前绵阳现有万达广场、凯德广场等城市综合体30余个,沃尔玛、百盛等大型超市40余个,富乐山酒店、绵州酒店等4星级以上酒店10家,大型批发市场10余个,基本形成布局完善、体系健全的商业格局。
— — 产业服务 — —
产服集团构建“2+4+6+N产业服务体系”,致力于打造全产业链的服务生态圈。以2个产业服务平台为载体,以4大园区运营服务为基础,以6大企业创新服务为特色,联动N个特色服务平台,近300项服务内容,为企业提供标准化和定制化服务,助力企业发展。


— — 中德制造业研修院 — —
中德制造业研修院由头部财经新媒体吴晓波频道、中南高科联合工业自动化科学家褚健等制造业领军人物共同创办,汇聚了100+权威政府代表、国内外头部专家学者、中国制造业500强标杆企业和企业家领袖。
我们以“成就中国制造新领袖”为使命,致力于打造中国制造业知识赋能的首选平台,推动中国制造业的进步与成长。
项目地址:四川省绵阳市涪城临港经济区凤凰路1号

1、本资料为要约邀请,旨在提供相关信息,不作为要约或承诺。2、交通规划设置、市政配套设置不排除因政府规划、政策规定及出卖人未能控制的原因而发生变化。3、买卖双方的权利与义务以双方签订的《买卖合同》及附件等协议约定为准。本资料发布时间:2023年2月。
绵阳研发厂房招商中心 13391219793
绵阳研发厂房招商中心 13391219793
中南高科·全国200+产业园招商中
考察及商务洽谈 请联系上海总部招商中心葛总

中资企业出海 泰国 | 越南 | 印尼 | 柬埔寨 | 马来西亚 | 墨西哥 | 美国


