国盛产投.宝山药谷(现房,可租可售,可分层,灵活组合)
国企产权 104地块,研发总部、多层高标生产厂房,超高得房率(可满足企业环评中试要求)

【地 址】宝山区潘泾路2699号
【总面积】一期100亩地14.6万平方米
【标准租金】1.6元/平米/天
【标准售价】1.5万元/平米
【配置】蒸汽、双回路保障供电、甲类配建库
【税收返还】一事一议

【配套】
园区配套:星巴克,超市,公寓,餐厅,会议中心,孵化器平台,共享实验室,共享办公区等。
生活配套:罗店古镇,高尔夫球场,宝山寺,美兰湖小镇,美兰湖会展中心,宝龙广场,中集美兰湖金地广场,大润发超市,
医疗配套:罗店医院,复旦大学附属华山医院(北院),上海美兰湖妇产科医院
教育配套:上海世外教育集团附属美兰湖学校,上海外国语大学附属宝山双语学校等
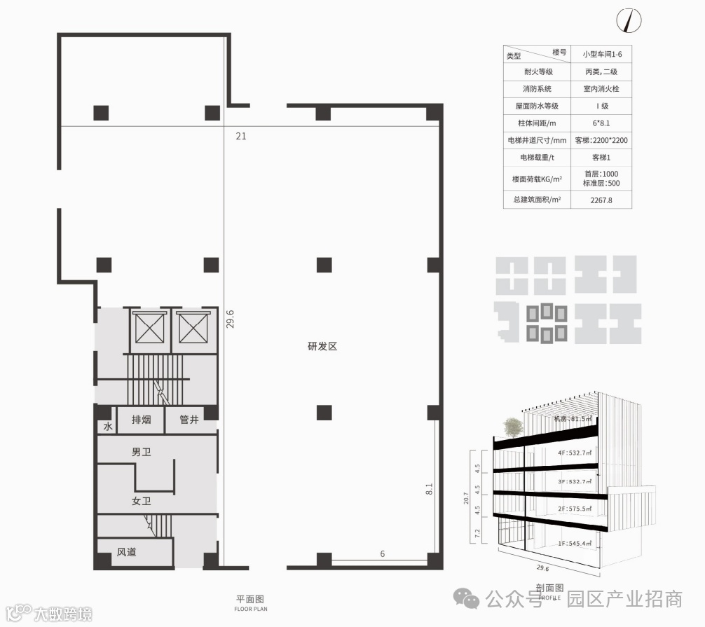
推荐户型一:小型研办楼(6#7#8#)
【面积】整栋2257.8平 (一层面积545.4平,二层575.5平,三层-四层532.7平)
【层高】首层层高7.2米,二-四层4.5米
【承 重】首层1000KG/平米,二-四层500KG/平方米
【电 梯】客梯1吨
【配 电】130W/平米(可增容);

推荐户型二:中型研产厂房(9#11#12#15#16#)
【面积】整栋3969平 (单层面积952平)
【层高】首层层高6.5米,二-四层5.5米
【承 重】首层2000KG/平米,二-四层800KG/平方米
【电 梯】客梯1吨、货梯2吨,客货分离,独立进出;
【配 电】130W/平米(可增容);

推荐户型三:大型研产厂房(2#)
【面积】整栋19835.9平 (单层面积4879.6平)
【层高】首层层高6米,二层7米,三层6米,四层4.5米
【承 重】首层2000KG/平米,二-四层1000KG/平方米
【电 梯】客梯1吨、货梯2吨,客货分离,独立进出;
【配 电】130W/平米(可增容);
推荐户型四:综合研办楼(T1#)
【面积】整栋10963.8平 (单层面积1092.2平)
【层高】首层层高5.5米,二-九层4.8米
【承 重】一-四层,九层500KG/平米,五-八层650KG/平方米
【电 梯】客梯1吨;
【配 电】130W/平米(可增容);

周边区位概况:









考察接洽 133 9121 9793
中资企业出海 泰国 | 越南 | 印尼 | 柬埔寨 | 马来西亚 | 墨西哥 | 美国

