【地址】上海闵行区颛桥镇元江路中春路
【交通】距离地铁5号线北桥站1.5公里
虹桥机场20公里,车程约25分钟到达,通达长三角
嘉闵高架元江路口500米,毗邻申嘉湖高速,交通便利
【总面积】45000㎡
【独栋面积】2846㎡/3792㎡/6219㎡
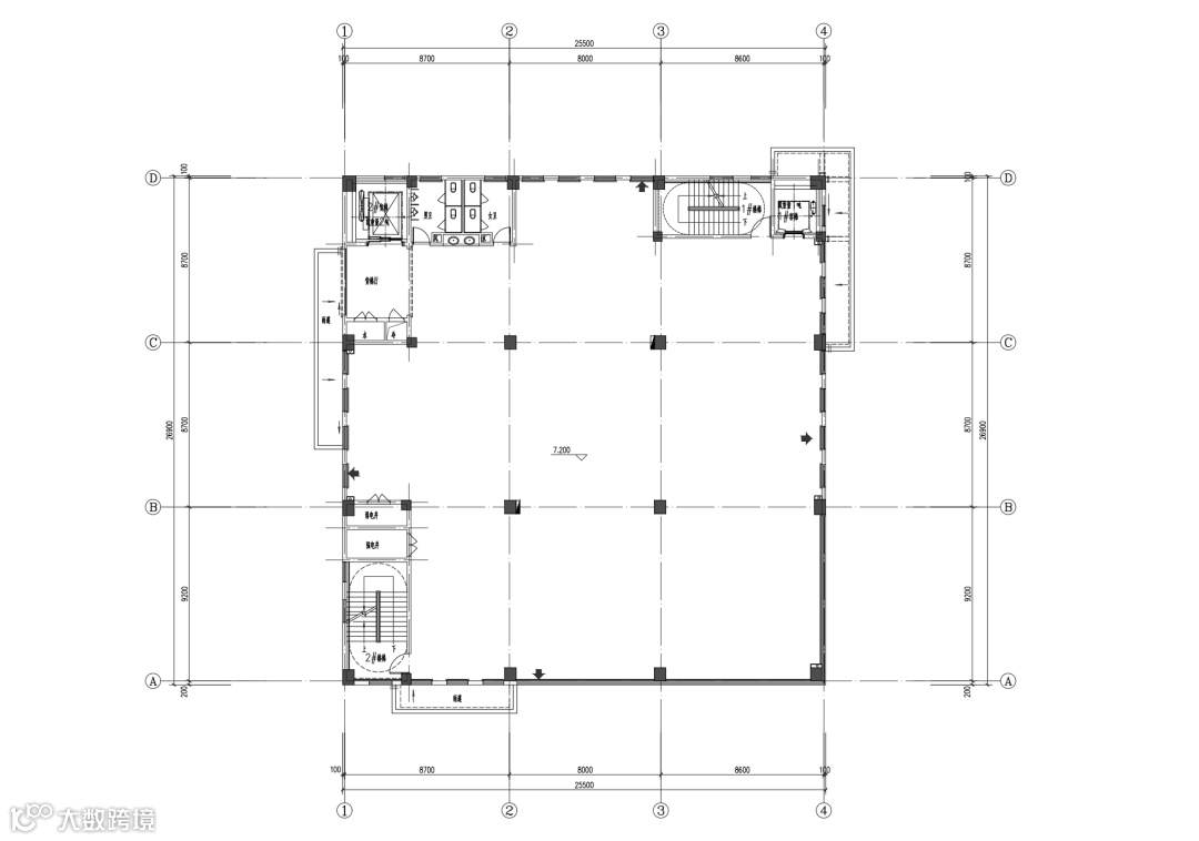
【单层面积】708㎡/946㎡/1238㎡(最小分割面积600㎡)
【层高】7.2m/5.5m(首层),5m/4.5m/4.2m(标准层)
【荷载】首层2T,标准层500KG
【电梯】客梯1T,货梯2T
消防耐火:丙二类
电力:100w/平方
【物业费】物业费5元/平方/月



2号楼:单层面积708㎡

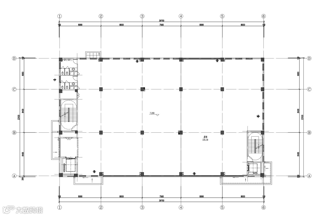
3、4号楼:单层面积946㎡

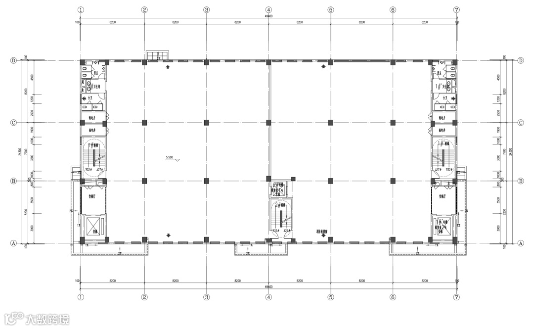
4、5号楼:单层面积1238㎡

中资企业出海 泰国|越南|印尼|柬埔寨|马来西亚|墨西哥|美国


