泰国北榄府 |【ZONE1】Bangna-Trad Km.23 厂房仓库出租 5700平方 只需185泰铢/平/天
UO-2025-02-09
出租:每平米185泰铢/月,押三付一,三年合同起上
(不含土地税费与建筑物保险)
1、总工厂仓库面积 = 1,688平米
生产区域 = 1,688平米
尺寸(宽 x 长)= 21.28 x 79.32
升降平台 = 2
卷帘门 = 3
2、总工厂仓库面积 = 1,688平米
生产区域 = 1,688平米
尺寸(宽 x 长)= 21.28 x 79.32
升降平台 = 4
卷帘门 = 4
3、总工厂仓库面积 = 2,319平米
生产区域 = 2,226平米
尺寸(宽 x 长)= 28.06 x 79.32
办公室区域 = 70
坡道 = 23
升降平台 = 5
卷帘门 = 5
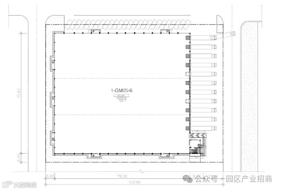
4、总工厂仓库面积 = 5,695平米(**不分开租**)
生产区域 = 5,695平米
尺寸(宽 x 长)= 70.62 x 79.32
办公室区域 = 70
坡道 = 23
升降平台 = 11
卷帘门 = 12
生产区域规格
地面 = 磨光地面,承重 5 吨/平方米
墙壁 = 加强混凝土,柱距 5 米
照明设施 = LED / T 8
电力供应 = 400 安培(为5,695平米的仓库)
电池充电区 = 提供带电源插座的电池充电区
屋顶 = 金属板
净空高度 = 12 米
门 = 卷帘门


中资企业出海 泰国|越南|印尼|柬埔寨|马来西亚|墨西哥|美国


