中南高科.闽港产业园 项目介绍
【总面积】163亩
【产品】现房厂房招商
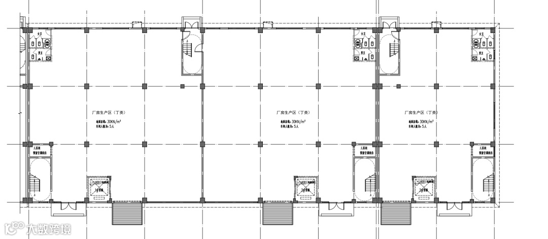
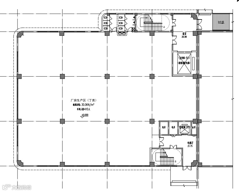
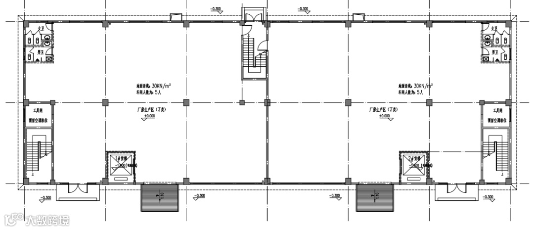
三层独栋1200/1500/1800/3000平
五层标准化平层,一层一户,780平
【产权】50年产权
【层高】标准首层8.1/6米,标准层4.2米,顶层3.9米,定制产品可灵活组合
【消防】丁类,预留丙类条件
【配电】50KVA/1000平米
【承重】标准3吨/1楼,0.45吨/2楼,0.35吨/3楼,定制化可视企业需求增减
【政策】享有税收优惠政策;外资、四高、科创型企业重点扶持,针对医疗生物大健康行业一事一议政策
【容积率】1.65
【交付时间】一期现房,二期可定制12-18个月交付
【定位】:新能源、汽车配件、生物科技、医疗器械、大健康产业等
【交通】京港澳高速双鹤湖收费站2公里,新郑站1公里,地铁17号线1.5公里,商登高速公路5公里,新郑机场14公里,高铁南站15公里,双鹤湖中央公园2.5公里
【地址】郑州市航空港区华夏大道与工业十路
【产业基础】中原医学科学城、柯力传感器、手机产业园、光力科技、速达机械、华锐光电、比亚迪新能源、北京科锐、卓峰制药、鸿运华宁等
中南高科产业集团成立于2014年,是国内领先的以服务先进制造业为核心的产业园区开发及运营商。
产业布局长三角、珠三角、环渤海及中原城市群,已布局全国80余城超200园区,累计招引企业数量已突破10000+,其中优质企业占比高达38%以上,包括不少500强公司、知名外企、国家高新技术认证企业、行业隐形冠军、工信部认证的专精特新企业等。
中南高科·全国200+产业园招商中
考察及商务洽谈 请联系上海总部招商中心葛总

中资企业出海 泰国 | 越南 | 印尼 | 柬埔寨 | 马来西亚 | 墨西哥 | 美国



