中南高科.郑州航空港智慧电子产业园项目
【总面积】110亩 建面12万平米
【面积】分层1000方,独栋2000-4000方
15亩小地块私人定制
【产权】50年产权
【楼层】3层、3.5层、4层/栋 、4层/分层
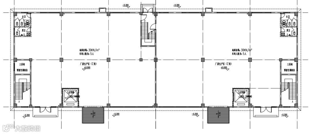
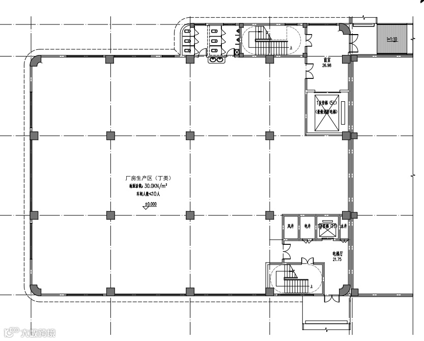
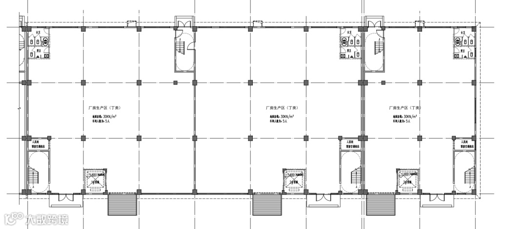
【消防】丁类,预留丙类条件
【配电】50KVA/1000平米
【层高】首层8.1/6米,标准层4.2米,顶层3.9米
【承重】3吨/1楼,0.45吨/2楼,顶楼0.35吨
【容积率】1.64
【政策】外资、四高、科创型企业重点扶持
【交付时间】一批次23年已交付,二批次25年11月交付
【定位】智能装备制造、新能源、医疗器械、科技研发、机器人、大数据、新材料、航空及会展服务等
【交通】G4高速口2公里,新郑国际机场(5公里)、郑州东站(30公里)、新国际会展中心(14公里)、地铁17号线900米、高速公路5公里、管委会2公里
【亮点】空港核心区、港区政府政策扶持、生产生活氛围浓厚、紧临机场高铁高速地铁国道等交通极其便利;园博园、梅河公园、苑陵故城公园三公园临近,自然风景优美
【地址】:郑州市航空港区梅河路如荼路
中南高科布局全国70城200个园区,成熟园区示意图如下:
中南高科产业集团成立于2014年,是国内领先的以服务先进制造业为核心的产业园区开发及运营商。产业布局长三角、珠三角、环渤海及中原城市群,已布局全国80余城超200园区,累计招引企业数量已突破10000+,其中优质企业占比高达38%以上,包括不少500强公司、知名外企、国家高新技术认证企业、行业隐形冠军、工信部认证的专精特新企业等。
中南高科·全国200+产业园招商中
考察及商务洽谈 请联系上海总部招商中心葛总

中资企业出海 泰国 | 越南 | 印尼 | 柬埔寨 | 马来西亚 | 墨西哥 | 美国



