目前正在紧罗密鼓的筹备中

01

02
03
04
05
-
分层产品(4层)-单层面积1100㎡
-
分层产品(4层)-单层面积1500㎡
-
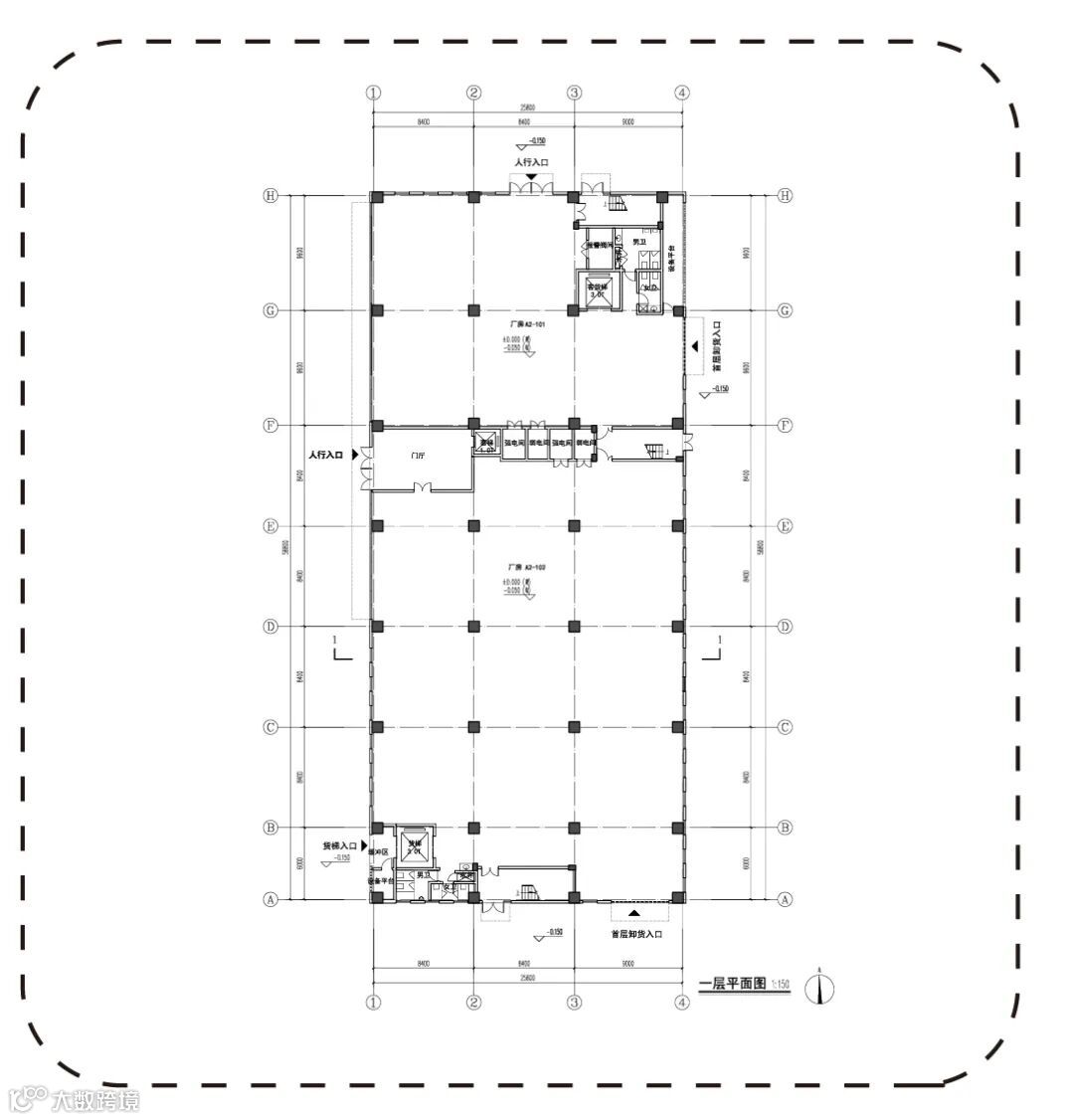
分层产品(8层)-单层面积1300㎡ (#B1)
-
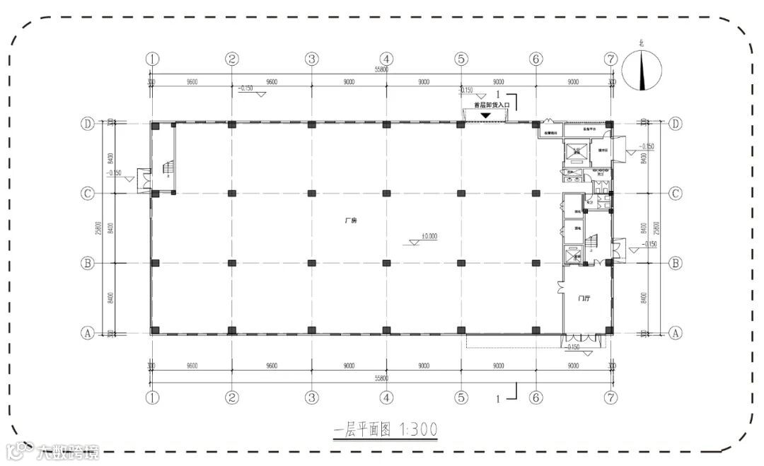
分栋产品(双拼)-面积2000+4000㎡ (#A2/B3)
-
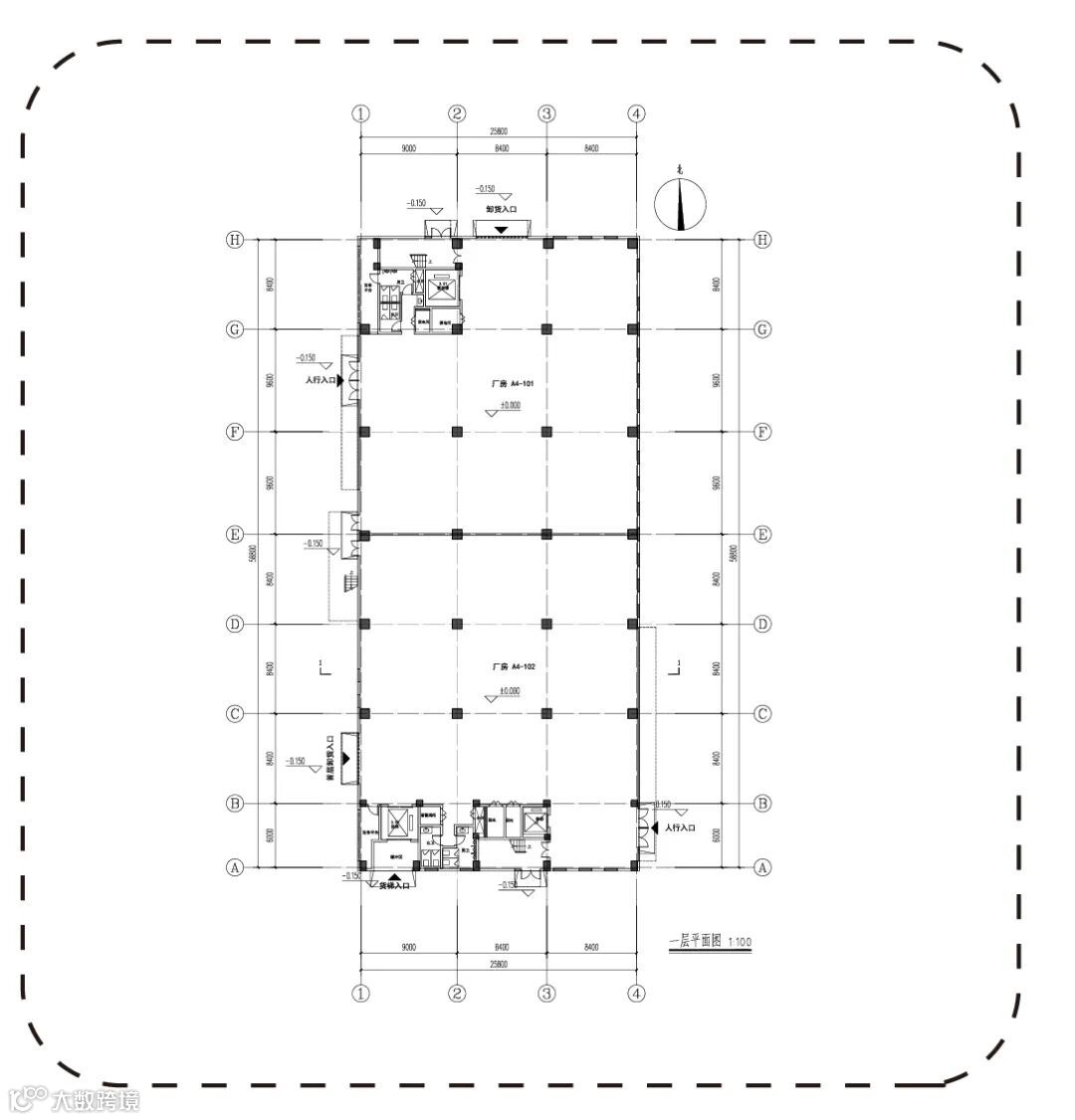
分栋产品(双拼)-面积3000+3000㎡ (#A4)
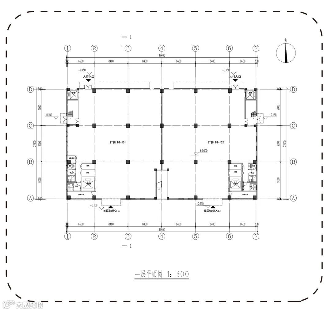
分栋产品(双拼)-面积2500+2500㎡
(#B2)
海美国际(吴江)高端装备智能产业园将做好产业与周边地区企业与上下游产业链之间的衔接、一流的服务构建智能化、绿色化、低碳化、集约化的现代产业体系,致力于打造成为吴江最具影响力和创新力的智造社区。
中资企业出海 泰国|越南|印尼|柬埔寨|马来西亚|墨西哥|美国

