上海奉贤 东方美谷•智能制造产业园 临港出口•生产•办公•研发 厂房出售
土地性质: 104板块
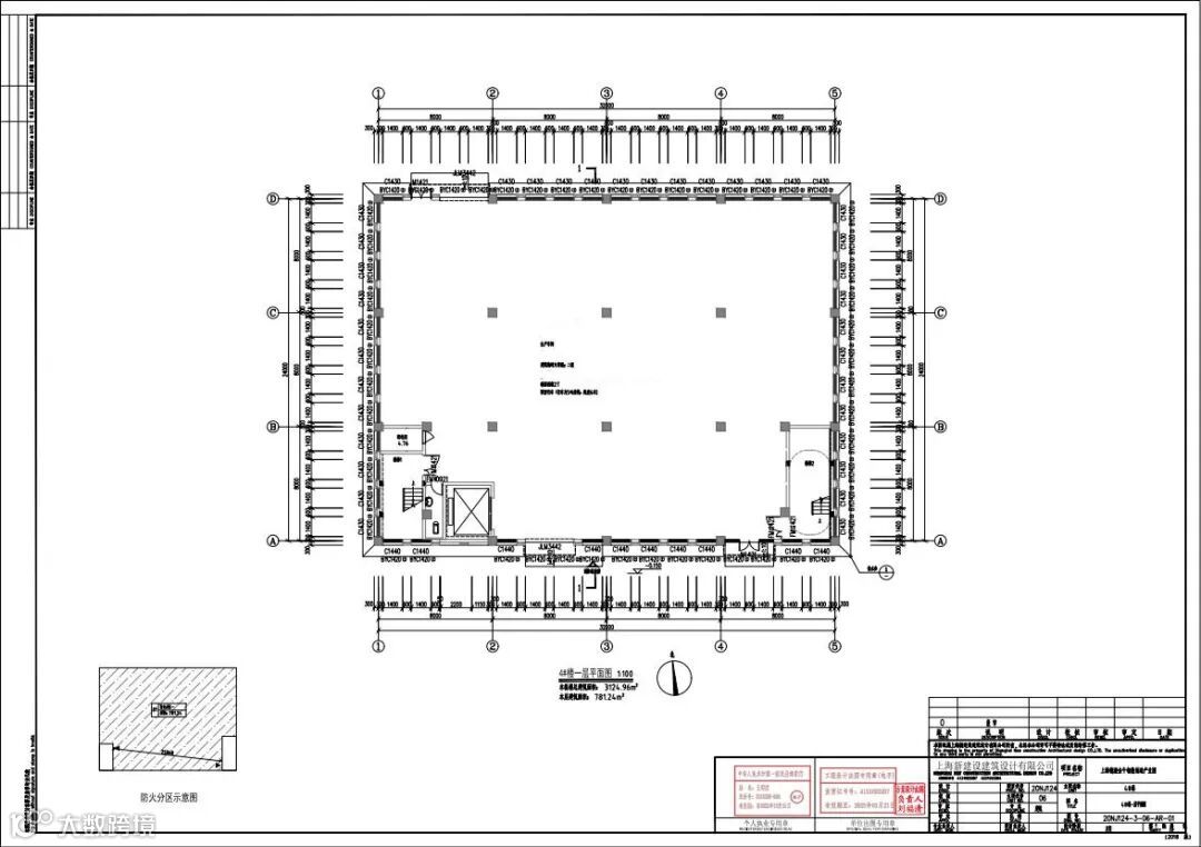
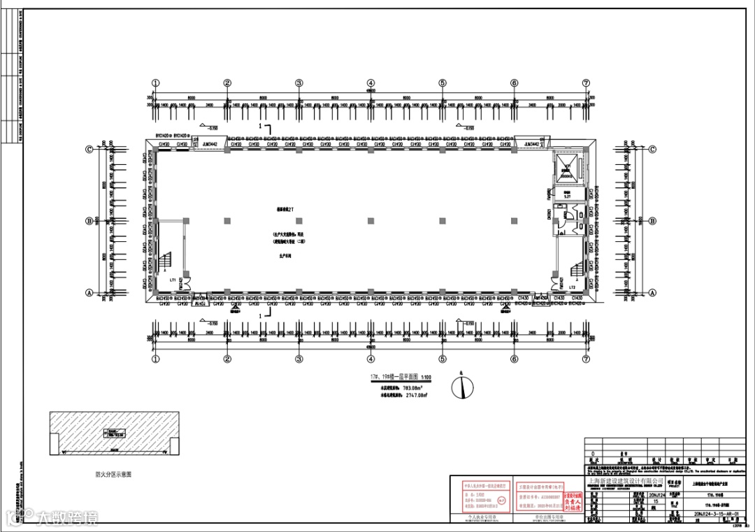
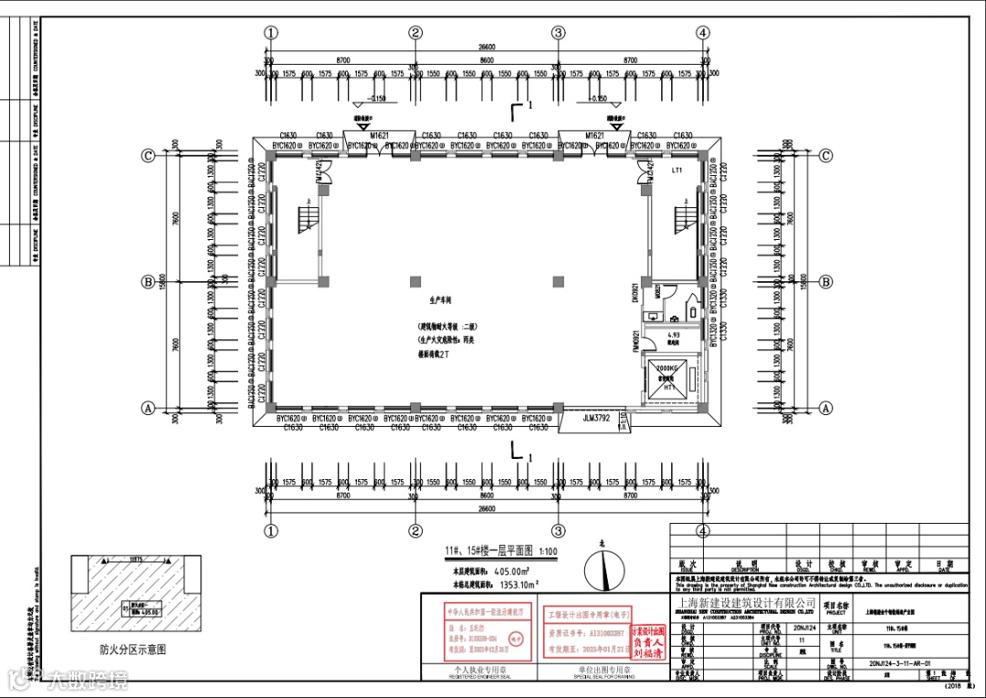
户型简介:独栋1353平(3.5层)、独栋2747平(3.5层)、独栋2460(4层)、独栋3124平(4层)
承重:1层2T、2层500kg/平、3层500kg/平、4层250kg/平
面积:1353平 层高:7.8米/4.5米/3.9米
面积:2747平 层高:7.8米/4.5米/3.9米
面积:3124平 层高:7.8米/4.5米/3.9米
区位:
隶属于奉城经济园区,地处临港新片区中心,毗邻浦东新厂镇
奉城主城区项目,步行可达商业街,衣食住行学习看病一应俱全。
高速直达:S3只有1.5公里,30分钟直达张江,上海绕城高速入口3公里。
CBD商圈:步行10分钟医院、学校、银行等
园区:
产权:50年(2005年-2055年)
产业定位:本项目以汽车零部件,电子信息,光伏新能源等非(上海)淘汰类、非高污染的新型制造业为主
项目体量:9.3万方/25栋
交付时间:2023年底
均价:9500元
消防:丙类
配电:70KVA/1000平
物业服务:自有专业物业管理,园区配有餐厅、超市、人才公寓等公共服务。
政策支持:享受临港、美谷、奉贤 三重政策(固投、车间、人才落户、免税等)
优质企业,政府优惠政策,可一事一议。
研发办公厂房 招商咨询
133 9121 9793
欢迎关注、点赞、转发

欢迎关注、点赞、转发





