上海闵行研发办公楼出租 莘庄商务区秀文路七莘路口研发办公楼出租 闵行区政务服务中心对面 80平起租
·项目名称:正峰广场(商业部分)
·地址:莘庄商务区秀文路七莘路口
上海正峰广场位于上海市闵行莘庄商务区,总建筑面积约9万平方米,由3栋高品质办公楼和5栋独栋办公楼组成。本项目紧邻嘉闵高架,到达虹桥枢纽约仅需20分钟车程,距离地铁12号线七莘路站点约800米,距离地铁嘉闵线站点(在建)约400米,交通便捷。
·公交:125路b线、闵行21路、闵行22路a线、189路、虹桥枢纽4路、南江线。
·地铁:(七莘路)12号线
·竣工时间:2023年8月底
·项目楼宇照片
项目效果图(鸟瞰图)
项目实景图
滨河独栋实景图
·1号楼1楼商业平面图
商铺面积:(使用面积)
A:约95平方米
B:约265平方米
C-1:约85平方米(已定)
C-2:约102平方米(已租)
D: 约275平方米
(商业平面图仅为意向划分,可根据实际情况另外划分)
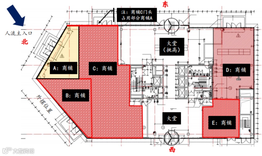
·2号楼1楼商业平面图
商铺面积:(使用面积)
A:约100平方米
B:约120平方米(已定)
C:约330平方米(已定)
D:约180平方米(已租)
E:约 92平方米(已租)
·3号楼1楼商业平面图
商铺面积:(使用面积)(可接受餐饮)
A:约155平方米(已租)
B:约175平方米
·下沉式广场商业入口图
入口效果图
(以实际交付效果为准)
(以实际交付效果为准)
·LG1层商业平面图
商铺面积:(使用面积)(可接受重餐饮)
A:约335平方米
B:约1000平方米
C:约180平方米
D:约300平方米
E:约300平方米
F:约330平方米
(商业平面图仅为意向划分,可根据实际情况另外划分)

·商业意向业态
1楼: 咖啡馆、茶室、轻餐、便利店、展厅、银行网点、特色餐饮、图文影印等
LG1层:食堂、特色餐饮、健身房、瑜伽、SPA等
·商业租金
1楼商铺:租金单价8-12元/天/平方米(按使用面积)
LG1商铺:租金单价4-5元/天/平方米(按使用面积)
物业费:30元/月/平方米(按建筑面积)
交付条件:毛坯交付(含空调)
研发办公厂房土地咨询
400-0123-021
欢迎关注、点赞、转发
欢迎关注、点赞、转发






