广州 广新·黄埔新质产业园
建面约2520-6880㎡标杆企业独栋
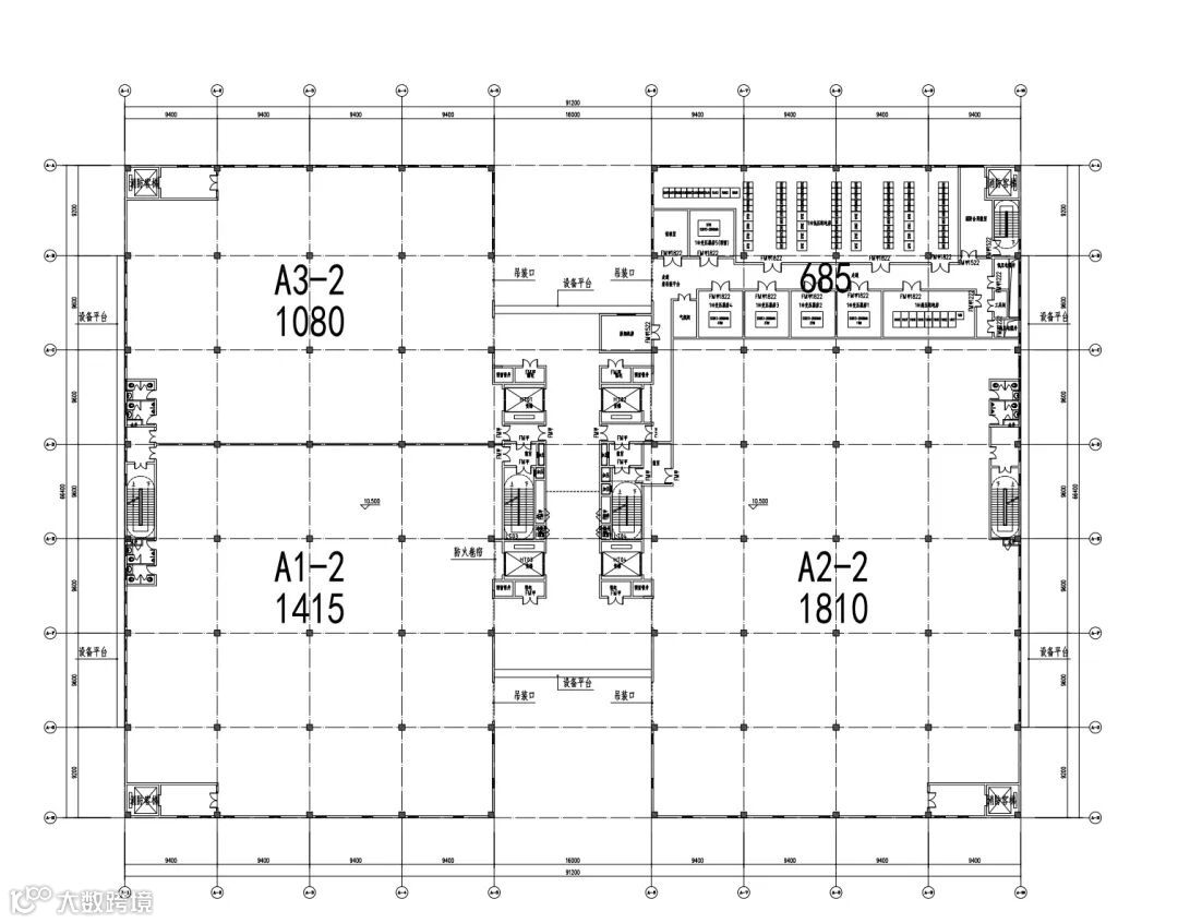
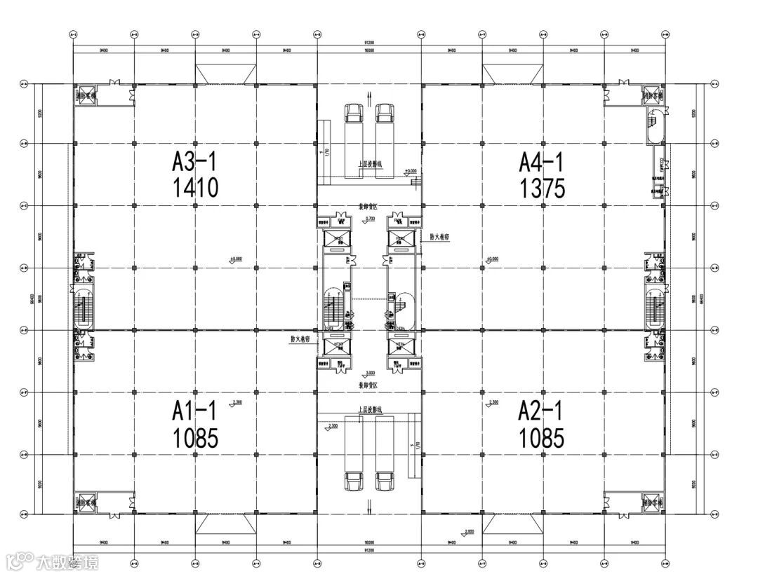
建面约925-1810㎡高层厂房
项目地址:广州市黄埔区南岗街道笔村大路
高品质 高配置 高端园区
【项目位置】黄埔区云埔街道,南岗万达旁
【占地面积】约3.2万㎡
【建筑面积】建筑面积约8万㎡
【产品】4层花园式企业独栋 8层高标红本厂房
搭配吊装及装卸平台 工业上楼新标杆
【产业定位】结合黄埔区优势产业电子信息(尤其是新型显示)及汽车制造业产业方向两大产业,以新一代信息技术、汽车零部件制造、高端智能制造等核心产业,打造科技生态园区。
世界500强广新控股
广新控股集团 世界500强第414位
国企实力护航 黄埔区产业转型升级的名片
打造大湾区产业发展的新高地
黄埔区——广州发展的新极点
● 2024年GDP达4339亿元,GDP总量排名全市第二;
● 黄埔区作为广州市经济重镇,电子信息产业大类和汽车制造业在GDP中的比重高达58%。工业制造业基础雄厚。
构建“一带、双廊,三城-岛”城镇空间格局。
一带提升:建设珠江高质量发展带东十公里“黄金岸线”,着力推进广州中心城区与东部中心联动发展。
双廊筑脊:建设黄埔区科技创新走廊与产业创新走廊筑强广州活力创新轴的北部脊梁。
三城一岛:推动知识城、科学城、海丝城、生物岛战略互动、空间互联、产业互补,实现高质量要素资源快速流动。
加速形成现代产业体系核心集聚地,打造挺起城市发展的产业脊梁
黄金地段
立体交通环绕 1小时畅达大湾区
项目地理位置优越,通往高速路口、地铁站、高铁站、机场交通便利:
高速公路:5KM内达沿江高速、京港澳高速,50分钟内畅达白云机场、广州南站、东莞、惠州等周边城市;
城际铁路:有轨电车2号线(建设中)2026年开通,1小时畅达穗佛莞各地;
地铁:距离13号线南岗站仅1.6KM,50分钟达天河
高端定制
生产办公一体 护航企业全生命周期
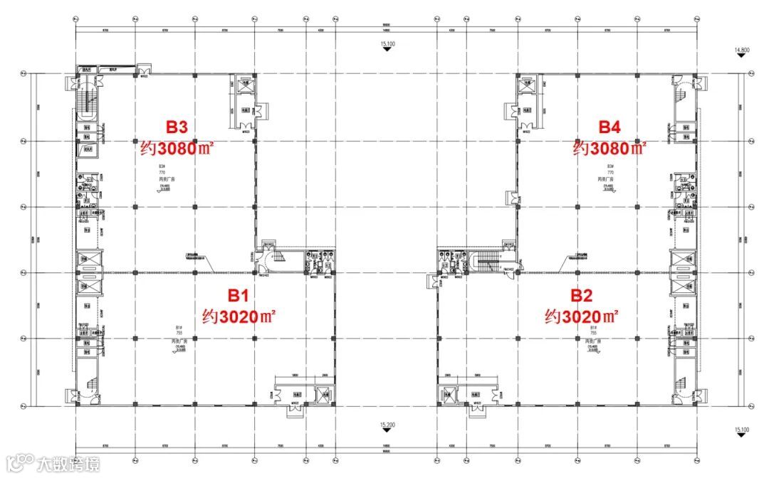
标杆企业独栋①
【面积】 建面约3020-3080㎡标杆企业独栋
【层数】:4F
【层高】:首层7.5m、二层6.0m、三层6.0m、四层4.0m
【柱距】:9.6m*8.7m
【电梯】:一台3T客梯,一台3T货梯
【承重】:首层3T/㎡或2T/㎡(带地下室),标准层800kg/㎡
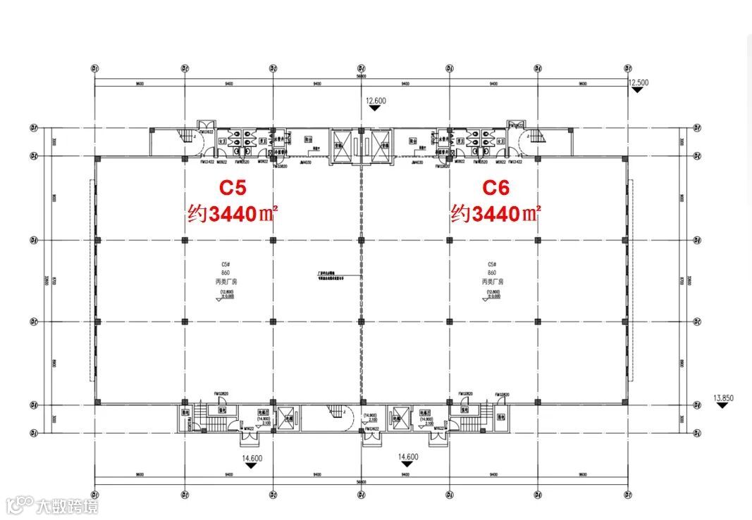
标杆企业独栋②
【面积】 建面约2520-3440㎡标杆企业独栋
【层数】:4F
【层高】:首层8.5m、 二层6.5m、 三层4.5m、 四层4.0m
【柱距】:9m*10m
【电梯】:一台3T客梯,一台3T货梯
【承重】:首层3T/㎡,标准层800kg/㎡
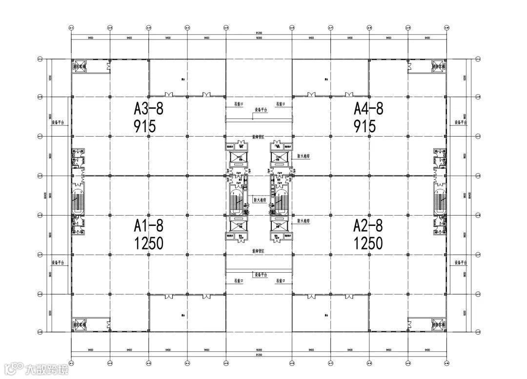
高标产办空间
【面积】 建面约915-1810㎡高层厂房
【层数】:8F
【层高】:首层8-10m、2-3层6m、标准层4.5m
【柱距】:9m*10m
【电梯】:一台3T客梯,一台3T货梯
【承重】:首层3T/㎡、2-3层1.2T/㎡、标准层800kg/㎡
周边配套
项目周边5公里内各类配套齐全,商场、学校、住宅、休闲景点环绕。
商业综合体:南岗万达广场、富力新城 、佳兆业未来城等;
学校:黄埔东区中学、东联学校、广州市第八十八中学等;
住宅小区:万科尚城、时代城、富力新城、海伦堡花园等适合企业高管居住;
城中村:沙步社区等适合企业普通工人居住;
景区:丹水坑风景区、蛤头山、龙头山森林公园等;
研发办公厂房出售招商
400-0123-021
欢迎关注、点赞、转发
欢迎关注、点赞、转发






