【山团睿谷(嘉兴)科创产业园】嘉兴南湖核心区稀缺厂房,长三角G60科创走廊枢纽,灵活空间约1000~13300㎡,首层层高7.9m,首付两成可按揭,独立产权50年。
【核心区位】位于长三角几何中心,G60科创走廊枢纽,1小时覆盖沪杭苏核心城市。
【灵活空间】1000-13300㎡可分割厂房,首层7.9米层高,适配总部、研发及智造需求。
【产业生态】省级工业园,聚焦人工智能、电子信息,享税收减免及最高400万研发补贴。
【产权保障】50年独立产权,首付灵活;自营物业提供智慧安防、绿色节能专业服务。
【产城融合】配套人才公寓、商业医疗,资本与政策赋能,打造长三角智能制造标杆园区。
山团睿谷(嘉兴)科创产业园坐落于长三角几何中心——嘉兴市南湖区城南街道,以“科技驱动、产城融合”为核心发展理念,打造集技术研发、产业孵化、规模生产、配套服务于一体的现代化科创产业高地。园区重点聚焦人工智能、精密控制、电子信息、智能制造等战略性新兴产业,致力于构建长三角创新资源集聚地和产业升级示范区,赋能企业全生命周期发展。
【项目区位】
嘉兴市地处长三角核心腹地,东接上海,西连杭州,北邻苏州,南融宁波,是G60科创走廊枢纽城市和环杭州湾大湾区核心节点,交通网络发达,区位优势显著:
【高铁】距嘉兴南站15分钟车程,27分钟直达上海虹桥,23分钟直达杭州东站;通苏嘉甬高铁(2027年通车)将实现与苏州、宁波“1小时经济圈”。
【高速】紧邻G60沪昆高速、G1522常台高速,10分钟直达高速入口,1小时贯通沪杭苏核心城市,快速连接长三角主要城市。
【机场】1小时可达上海虹桥机场、杭州萧山机场,1.5小时覆盖上海浦东机场,交通便捷。
【港口】40公里直达嘉兴港(浙北海河联运枢纽),120公里联通全球第一大集装箱港上海洋山港。
园区周边产业基础雄厚,配套完善,是长三角产业转移和科技创新的理想之地。
【项目规划】
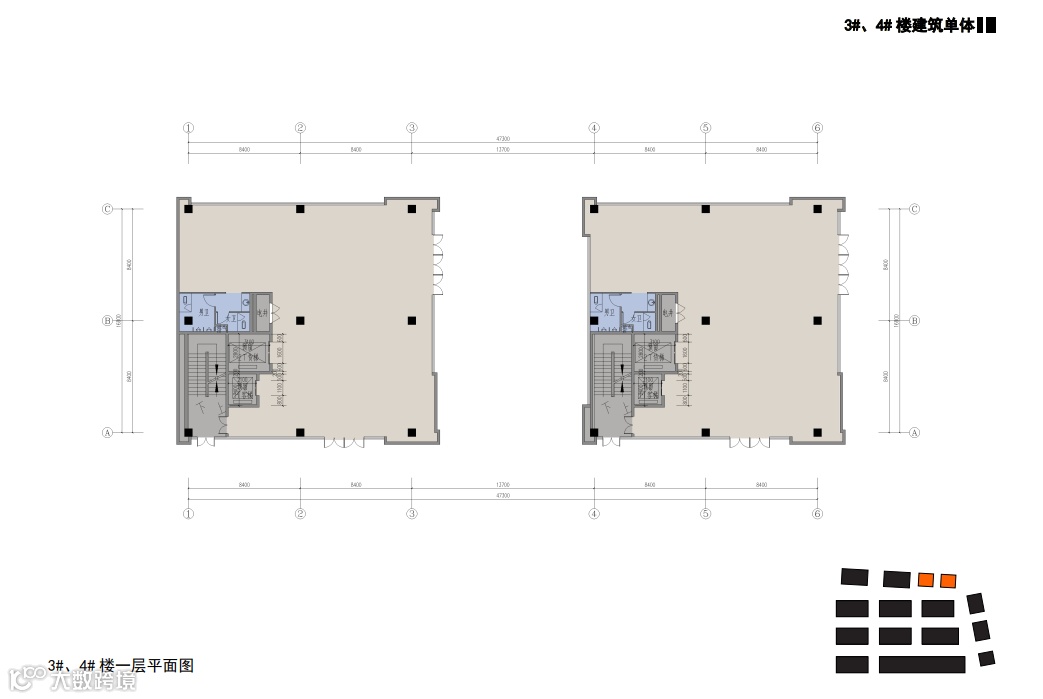
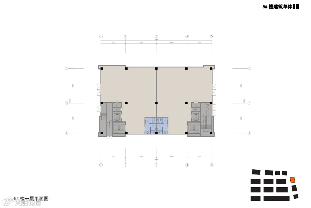
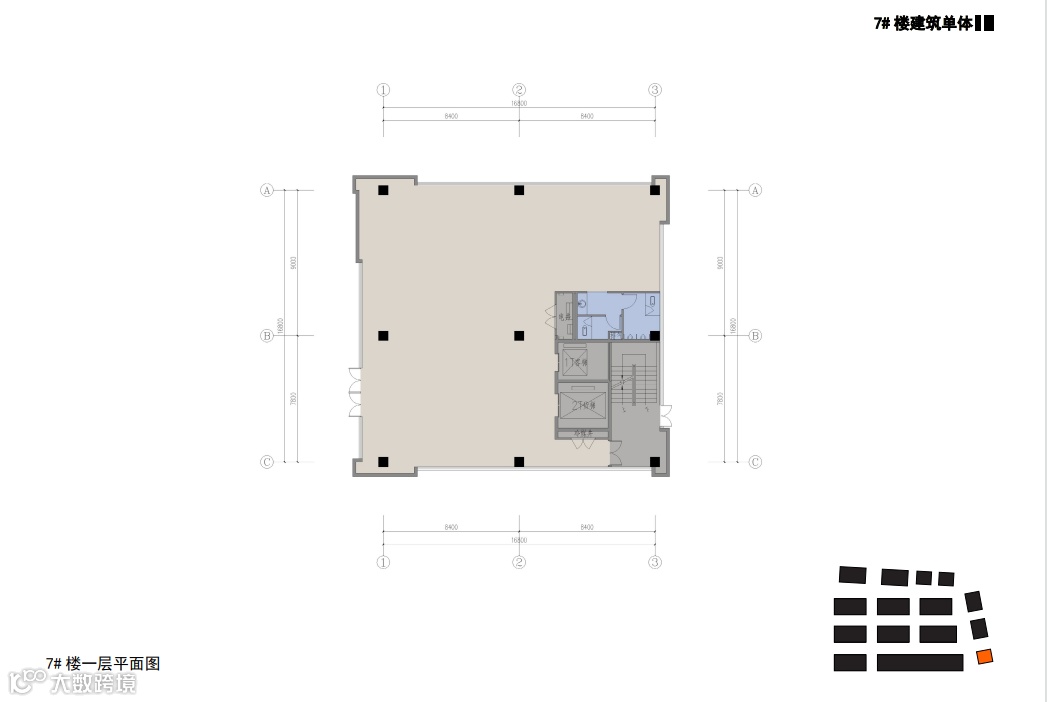
【厂房布局】:规划建设15栋多层厂房(5-6层)、2栋高层研发办公楼(9层),总建筑规模近10万平方米。
【占地面积】:总占地55亩。
【建筑面积】:总建筑面积9.33万平方米,地上建筑面积8.39万平方米,建筑占地1.4万平方米。
【车位配置】:地面机动车位60个 地下机动车停车位240个
【层高设计】:
9层研发办公楼:首层7.0米,2-9层4.2米。
6层标准厂房:首层7.9米,2层7.9米,3-6层4.8米。
5层厂房:首层6.0米,2-5层4.0米。
【电梯配置】:
- 每栋厂房配备5台3吨电梯。
【承重标准】
- 首层承重最高2T,标准层承重800KG。
【产权年限】:50年独立产权,首付两成可按揭。
【交付时间】:预计2027年6月30日竣工交付。
【交付标准】:钢混结构现代化厂房,外墙采用涂料与铝型材装饰(沿街高层),内部毛坯交付,配备250KVA基础配电。
【消防等级】:丙类厂房(高层研发楼)、丙类及丁类厂房(多层生产厂房)。
【产业配套】:独立装卸货区、环形道路设计(主干道宽13-15米),保障高效物流。
【绿色生态】:绿地率20.11%,融合江南水乡景观与现代工业美学。
【区域配套】
- 商业配套:10分钟车程覆盖万达广场、嘉兴八佰伴等大型商业综合体,满足商务洽谈与消费需求。
- 医疗教育:周边3公里内有嘉兴市第一医院南湖分院、嘉兴学院附属学校及多所幼儿园,形成全龄教育医疗保障。
- 文旅资源:40分钟车程可达乌镇、西塘等江南水乡古镇,尽享文旅融合的休闲体验。
- 生态景观:园区绿地率达20%,临近嘉兴湘家荡科创湖区(万亩水域、森林),打造“科创+风景”双轮驱动的生态办公环境。
【规划与设计】
总规模:占地面积55亩,总建筑面积近10万平方米,涵盖15栋现代化厂房及配套建筑。
建筑布局:
高层厂房:9层研发办公楼(层高7.0米-4.2米),适配企业总部与轻量化生产。
多层厂房:6层标准厂房(首层承重最高2T),满足高端制造需求。
物流配套:独立装卸货区、环形道路设计,保障高效物流动线。
绿色生态:绿地率超20%,融合现代工业美学与江南水乡景观。
【户型优势】
【发展愿景】
山团睿谷以“创新策源、智造未来”为目标,依托长三角一体化战略红利,通过资本赋能、政策支持与产业生态构建,打造集“研发-孵化-生产-服务”于一体的科创产业标杆,助力嘉兴成为长三角科技创新与智能制造的核心引擎。
注:文中政策及数据基于嘉兴市2025年规划文件(嘉政发〔2025〕6号),不构成要约内容,具体信息以合同约定和政府最终审批为准。
研发办公厂房土地招商咨询
400-0123-021
欢迎关注、点赞、转发

欢迎关注、点赞、转发
免责声明:
1.部分文字和图片来源于网络不对相关图片内容享有任何权利
2.我方重申:所有转载的文章、图片、音频视频文件等资料知识产权归该权利人所有,但因技术能力有限无法查得知识产权来源而无法直接与版权人联系授权事宜,若转载图片可能存在引用不当或版权争议因素,请相关权利方及时通知我们,以便我方迅速删除相关图文内容,避免给双方造成不必要的损失;
3.因文章中文字和图片之间亦无必然联系,仅供读者参考。
文章来源《网络》






