南昌OVU人工智能产业园
智创未来 崛起赣江之畔
——中部AI产业新高地·江西数字转型新标杆
一、项目速览
位置:南昌新建经开区玲岗湿地公园西北侧
概况:
•总投资约10亿元|总规划340亩(分两期)
•一期占地222亩|建筑面积约 17.3万㎡
•多元空间:1层钢构厂房(约2300-3300㎡/栋)、2-4层框架厂房(约1270-7000㎡/栋)、8-10层研发办公楼(约1100-1450㎡/层)
•车位:机动车位611个(含111充电桩)+ 非机动车位2748个
•产业布局:人工智能、低空经济、电子信息、汽车+新能源
•功能布置:生产/研发厂房,配有展示中心、会议中心、餐饮、公寓等配套
•类型:政府租赁产业园——轻资产启动,重利润回报!
① 面积灵活(600-7000㎡任切)
② 成本砍半(比购置厂房省60%)
③ 即租即用
二、产品基本信息
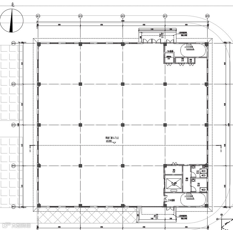
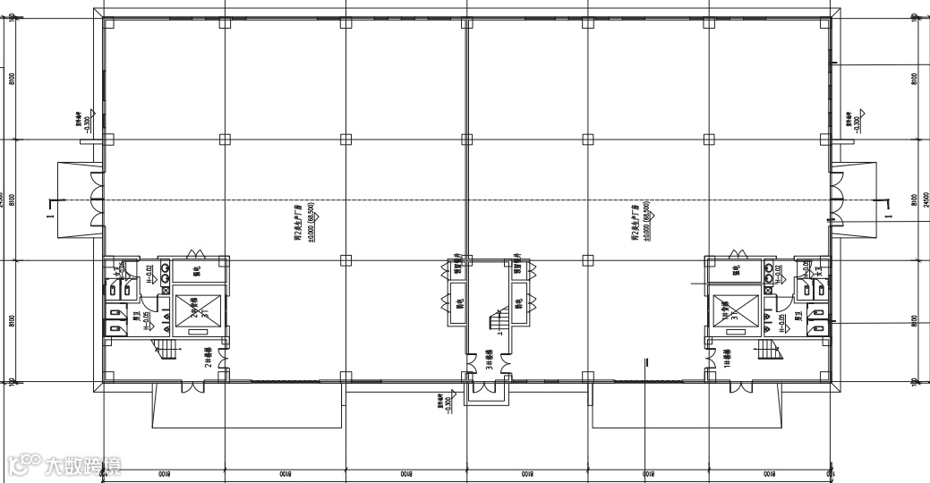
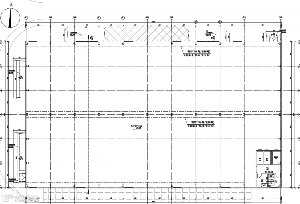
(一)1层钢结构厂房:无柱生产范本
•层高:10米
•荷载:2T/㎡
•面积:2300-3300㎡
•出入口:4个货运口,2个人行口
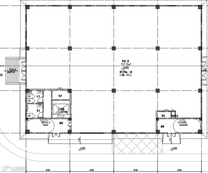
(二)2层双拼框架厂房:市场稀缺产品
•层高:首层8.2米,标准层4.5米
•荷载:首层2T/㎡,标准层0.8T/㎡
柱距:8.1-8.7米货梯:3T货梯1台面积:1270-1460㎡|单层面积段630-730㎡出入口:2个大门,2个人行出入口
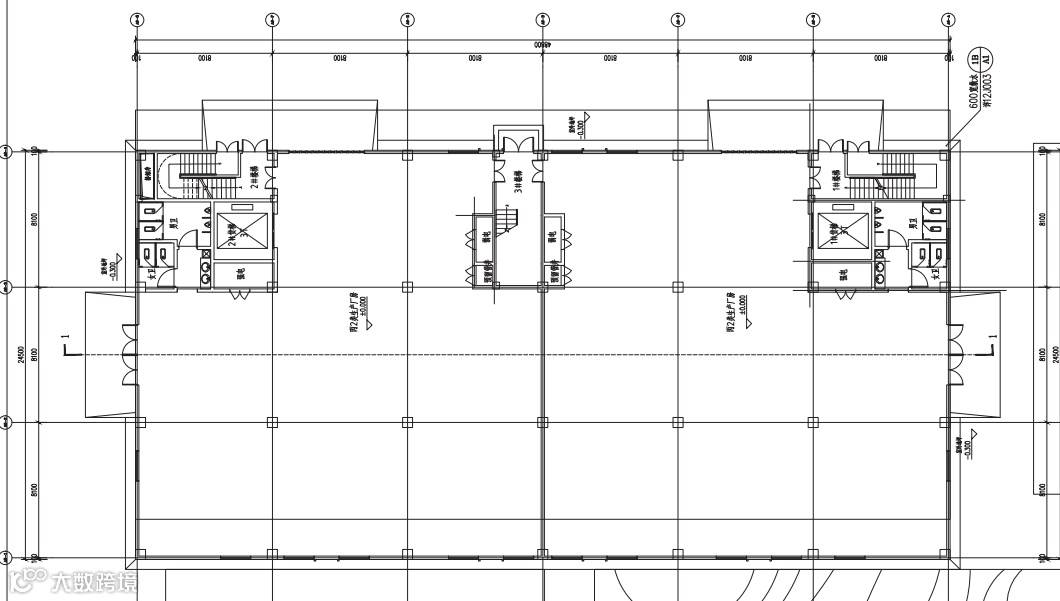
(三)2层独栋厂房:市场稀缺产品层高:首层8.2米,标准层4.5米荷载:首层2T/㎡,标准层0.8T/㎡柱距:横向8.7米,纵向8.4米货梯:3T货梯1台面积:1860-2300㎡|单层面积段930-1150㎡出入口:3个大门,2-4个人行出入口
(四)3层厂房(双拼):灵活智造工场层高:首层7.2米,标准层4.5米荷载:首层1-1.2T/㎡,标准层0.5T/㎡柱距:8.1-8.7米货梯:3T货梯1台面积:1730-3600㎡|单层面积段580-1200㎡出入口:2个大门,2-3个人行出入口
(五)3-4层厂房(独栋):高效生产舱层高:首层7.2米,标准层4.5米荷载:首层1-1.2T/㎡,标准层0.5T/㎡柱距:8.4-8.7米货梯:3T货梯1台面积:2760-6000㎡|单层面积段920-1500㎡出入口:2个大门,2个人行出入口
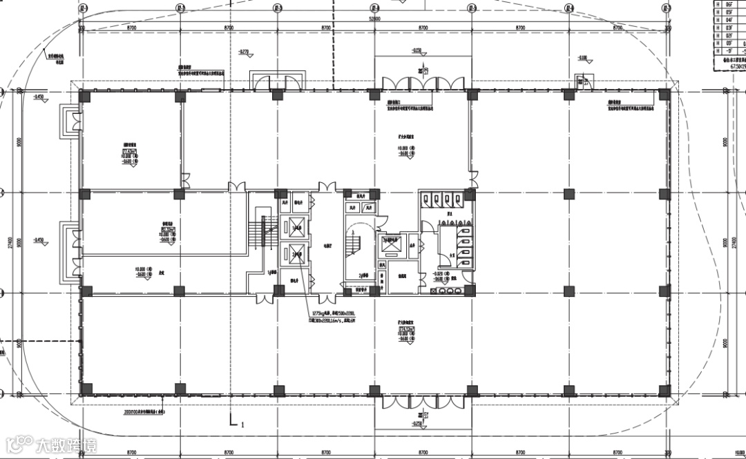
(六)研发办公楼:企业生长加速器层高:首层大堂7.2米,标准层4.5米荷载:首层1-1.2T/㎡,标准层0.5T/㎡柱距:7.2-9米电梯:3台单层面积段:870-1460㎡
三、八大核心优势:不止空间,更是生态
1. 黄金区位:1小时直达南昌都市圈|3小时贯通长三角/珠三角/海西
2. 人才高地:30+高校|10万技工院校人才|年输出毕业生20万人
3. 产业生态:
全链条服务:研发→中试→生产→应用(创新成本↓40%)
创新模式:跨界“产业群落”生态
集约化空间共享(告别单企拿地)政府+运营商+企业三方共赢
4. 成本竞争力(“四低一高”)
劳动力成本低:显著低于长三角地区30%,低于粤港澳大湾区20%
物流成本低:物流成本低廉,运输高效
运营费用低:水电气价格在中部四省处于下游水平
置业成本低:南昌中心区购房成本约为粤港澳地区均价1/4,长三角地区1/3,园区购房成本仅为南昌市1/2
幸福指数高:园区生活便利,交通畅达,商业、医院、行政、金融配套完善
5. 智慧空间设计厂房亮点:
1层钢构:无柱空间+4货运口(装卸效率↑90%)
2-4层框架:8.1米大柱距(兼容AGV/机械臂产线)
3层分层租赁:三流分离设计(原料/成品/人员0交叉)
研发办公楼:7.2米挑空大堂|模块化单元(200-300㎡自由分割)垂直产业链协作|得房率82%+
6.产业园自身配套及企服平台人才公寓、餐厅、会议中心等全链条商务配套玲岗企业家联盟,创新区域服务场景
7. 政策金融支持南昌“8810”计划 + 数字经济专项政策产业基金:5亿元新动能基金 + “链主+基金”联动
8. 品牌背书新建经开区(直属国资平台) × 中电光谷(央企生态)已投资100+科技企业|估值增长超36亿元
四、首批意向入驻企业:生态共赢
首批16家领军企业:人工智能:中科闻歌、南京奥看信息、青葵智造硬科技:翼辉信息低空经济:常州智能制造研究院生态伙伴:慧联无限、零度资本
典型案例:景泓智能:打造4条无人生产线,整合上下游产业链;慧联无限:设立研发中心,抢占低空经济制高点!
五、未来蓝图:中部AI增长极
三大战略行动:1.人才培育:联合高校共建AI人才基地2.技术转化:专业中试基地加速产业化3.场景落地:智慧交通/医疗覆盖60万居民
媒体评价:“OVU产业园正成为南昌数字化转型的核心引擎。” ——《南昌日报》“产业链生态优越,是布局江西AI的战略要地。” ——慧联无限CEO
立即行动,共启智造未来!
园区名称:OVU人工智能产业园(南昌市新建区新质产业园)
地址:江西省南昌市新建经济开发区🖥 产业方向:人工智能/电子信息/低空经济
央企运营·生态赋能·成本洼地——智造新未来,从南昌启航!
研发办公厂房土地招商咨询 以下微信


免责声明:
1.部分文字和图片来源于网络不对相关图片内容享有任何权利
2.我方重申:所有转载的文章、图片、音频视频文件等资料知识产权归该权利人所有,但因技术能力有限无法查得知识产权来源而无法直接与版权人联系授权事宜,若转载图片可能存在引用不当或版权争议因素,请相关权利方及时通知我们,以便我方迅速删除相关图文内容,避免给双方造成不必要的损失;
3.因文章中文字和图片之间亦无必然联系,仅供读者参考。
文章来源《网络》






