中南高科智汇谷·增城
广州东 | 科教城旁 | 高新技术产业示范区
项目规模:总占地168亩,总建面45万㎡
土地性质:50年产权红本厂房 一户一证
【 广州地铁口标杆厂房 一期已全面封顶 】
————— 4-5层独 栋 产 品 —————
面积:约3100-5200-6900㎡独栋[可定制]
层高:1楼6.5m,2-4楼4.2m,5楼3.9m
承重:1楼3T/㎡,2-3楼0.8T/㎡,4-5楼0.65T/㎡
————— 3层 独 栋 产 品 —————
面积:约2000㎡独栋(数量有限)
层高:1楼7.2m,2楼6.5m,3楼4.2m
承重:1楼3T/㎡,2楼0.8T/㎡,3楼0.8T/㎡
————— 高 层 产 品 —————
面积:约820-1086㎡高层[多面积段自由组合]
层高:1楼7.8/8m,2-7楼4.2/5.8m,8-9楼4.5m
承重:1楼3T/㎡,2-3楼0.8-1T/㎡,4-7楼0.8T/㎡,8-9楼0.65T/㎡
园区地址:广州市·增城国家级经济开发区·中新科技园(坑贝地铁站600米)
【实力品牌】
增城首个“五证联发”社会投资工业项目
两大品牌 | 中南高科产业集团&增城产投集团
【优质区位】
国家级开发区 中新科技园最大的产业园
项目地处广州增城中新科技园内,国家级经济开发高地,“三城两区”核心地段。中新科技园内最大的产业园项目,高端产业资源集聚地,科教城第一站,享优质产业基础及人才储备。(*三城:知识城、科学城、科教城;*两区:广州开发区、增城经济技术开发区)
【立体交通】
双地铁+双枢纽+3城际+5高速+1国道,快速接驳穗莞深惠经济发展带,用速度助推产业发展
2条地铁线路 :21号线坑贝地铁站、27号线(规划中)中新科技园站
🌐2个交通枢纽:约3.5km增城西站、约17km新塘南站
3条城际铁路:穗深城际、广石铁路、佛山-广州-东莞城际(规划中,预计2025年建成)
🛣5条高速公路:莞深高速,广河高速,广惠高速,北三环高速,增天高速
1条最美主干道:广汕公路黄埔段评为广东最美国道,双向8车道,平均时速80公里
【配套完善】
5公里内,满足企业和员工生活生产所需
医疗配套:项目4公里范围内有中新医院、科教城规划有1所三甲医院
🛍生活配套:项目西侧3.5公里有御溪life商业中心,餐饮、休闲、娱乐配套满足园区员工的娱乐需求。
居住配套:周边5公里范围内有凤秀家园、碧桂园城市花园、中航城花园等十余个楼盘,租房比较便宜,1300元/两房,房价1.5万左右,员工租房买房压力都不大,有利于企业人员稳定。
教育配套:项目附近5公里内拥有多所学校(乌石小学、凤秀小学、中新镇中心小学、中新中学)。项目东侧2公里广州科教城,规划25所职业学校,每年培养10万技工人才,企业招工方便。
产业配套:项目周边已形成多个成熟产业集群。中新镇内共有规上企业52家,希美克、达安医疗、华芯新能源都已经进驻项目旁边。
【企业服务】
因大产服致力于为入园企业提供全生命周期服务,为企业提供“2+4+6+N”多元化产业服务体系。聚集企业发展要素资源,构建产业发展服务生态;打通企业与企业、企业与政府、企业与市场的链接,与企业实现共生式发展。
【企业赋能】
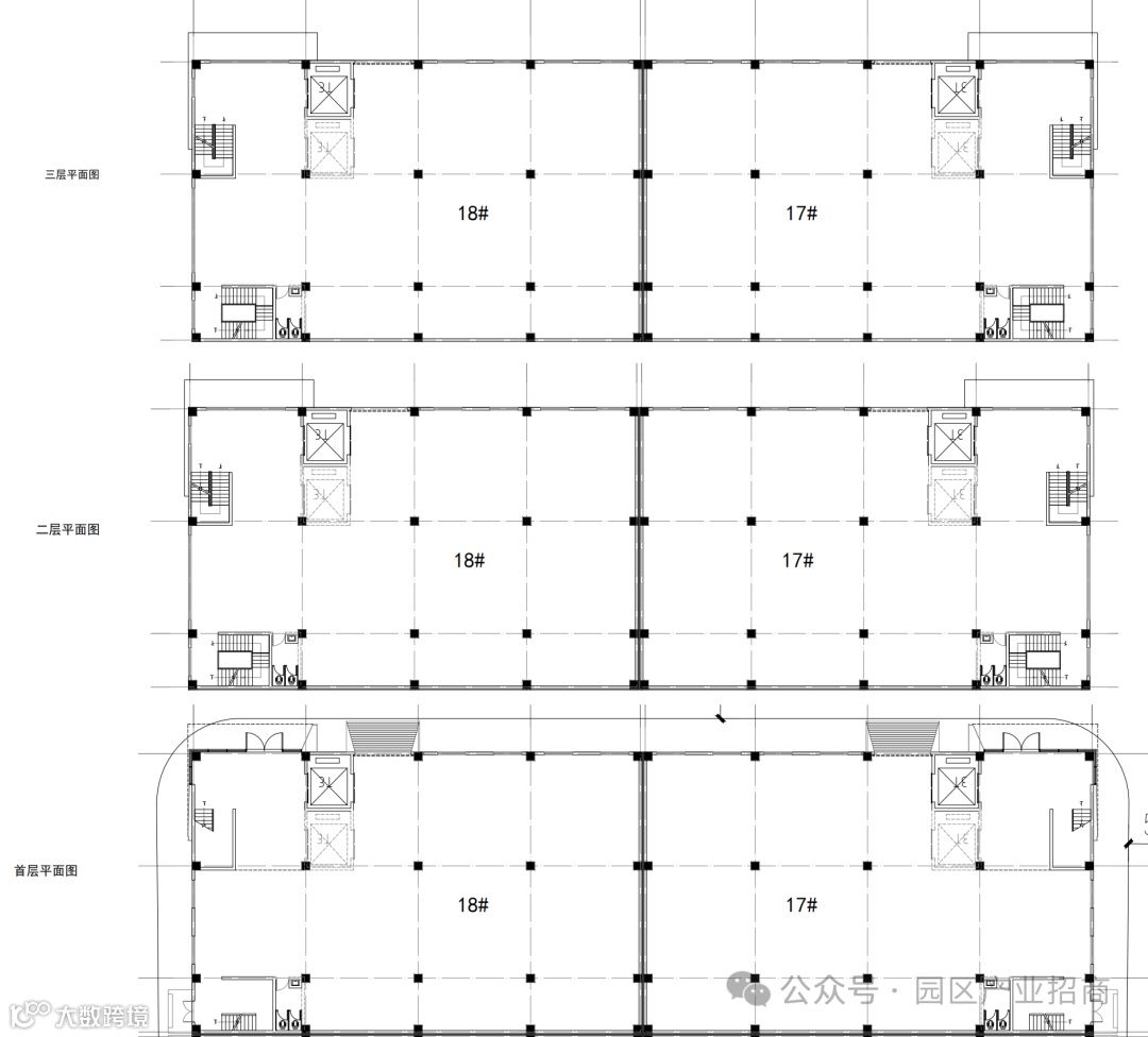
【3F独栋户型图】
【4F独栋户型图】
【5F独栋户型图】
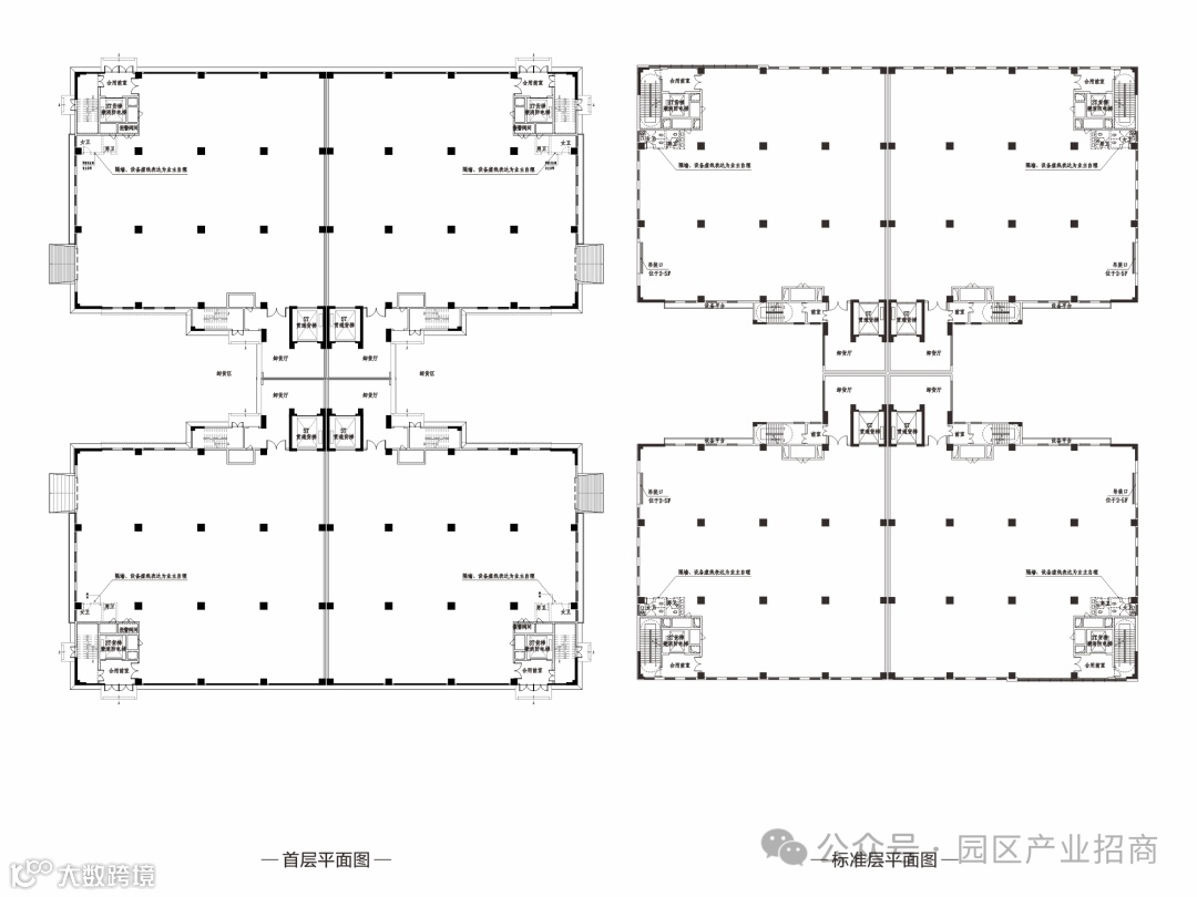
【一字型高层户型图】
【H型高层户型图】
13391219793 葛毅明
更多厂房土地 请点击【园区产业招商】
欢迎关注、点赞、转发
欢迎关注、点赞、转发





