岁金智谷·漳州智能装备产业园二期
项目地址:漳州市高新区靖圆片区 岁金智谷·漳州智能装备产业园
【区域概况】
漳州高新技术产业开发区位于漳州市中心城区跨江南扩区域,总规划面积245平方公里,规划建设用地76平方公里。2013年经国务院批准成为国家级高新技术产业开发区,是漳州打造“海丝重要节点和先行示范区”的重要组成部分,也是漳州四大经济增长极之一。

【区域规划】
项目所在区域规划建设“一药一智产业园”
“一智”产业园
总规划面积10平方公里,启动区面积2300亩。片区发挥龙溪轴承智能制造行业龙头的带动作用,围绕智能制造核心基础件,以智能服务、智能终端、智能装备等领域为重点,构建“一基三元”的智能制造产业体系,重点承接产业转移、着力升级本地产业、力争培育自主产业,构筑工业机器人及系统集成、智能应急装备、智能包装与物流装备、智能交互显示终端、智能可穿戴设备等五大产业链条,优化健全制造产业发展生态,推进新兴制造技术融合赋能,打造以精密制造与智能终端为核心的“智能科技应用示范基地”。
重点招商方向:工业机器人、数控机床、智能包装与物流装备、智能电子、增材制造、新一代信息技术等。
【区域优势】
漳州高新区地处闽南金三角核心区,居于长三角与珠三角中点,北邻龙岩、东接厦门、西靠广东,与台湾隔海相望。
【交通优势】
外部交通路网完善
园区位于国家级漳州高新区,与高新区靖圆办相望,毗邻园区主干道圆山大道新国道319及南江滨。外部交通四通八达,辖区内有漳州站、高铁货运站和两个告诉出入口,厦漳同城大道、规划中的厦漳城际轨道R1线能快速对接厦门,与厦门形成半小时经济圈;内部交通畅通无阻,3横7纵路网框架已经成形,南江滨、圆山大道、南环城路,从东向西横贯整个片区,12条跨江通道,与九龙江北岸老城区紧密联系。
项目交通四通八达
覆盖5大铁路/动车站(漳州站、漳州东站、角美站、厦门北站、厦门站)、3大机场(厦门高崎机场、翔安新机场、泉州晋江国际机场)。厦漳同城化加速融合,立体交通网络四通八达,物流优势凸显。
【项目介绍】
总占地面积:55亩
规划建筑面积:约5.5万方
岁金智谷·漳州智能装备产业园二期是省重点项目,项目于2022年4月7号摘牌,4月份开工建设,预计2023年10月竣工,2023年12月份交付。二期项目投产后,年产值可超3亿元,实现年纳税超1700万,新增就业人数约2000人。未来将与毗邻的一期项目相呼应,为区域经济发展、税收增量、就业和民生提升贡献力量。
【产业规划】
二期将延续一期的主导产业方向和发展定位,以医疗器械、高端食品、电子信息、装备制造高端产业体系为核心,同时引入新一代信息技术产业、智能制造产业、大健康产业上中下游企业及其相关配套的特色产业体系,打造漳州高新技术园区标杆项目。

【产品展示 】
项目坚持“高标准、高品质”的工业厂房建设理念为漳州高新区带来产业变革的精工产品。
【产品优势 】
稀缺高速口独栋厂房
●50年独立产权,企业经营安全稳健
●800-5500㎡灵动空间,可分可合可按揭可定制
●首层8.1米挑高,便于企业生产使用
●标准层4.2米、顶层3.9米,灵活调动
●首层2吨/㎡、二层800KG/㎡、三层及以上500KG/㎡荷载
●3-4层低密建筑形态,可独立设计,全方面满足生产、研发、办公需求
●入口双门设计,货物运输便捷
●产办分区,提升企业形象,降低互相干扰
●创新外观设计,引领高新工业园区新标准
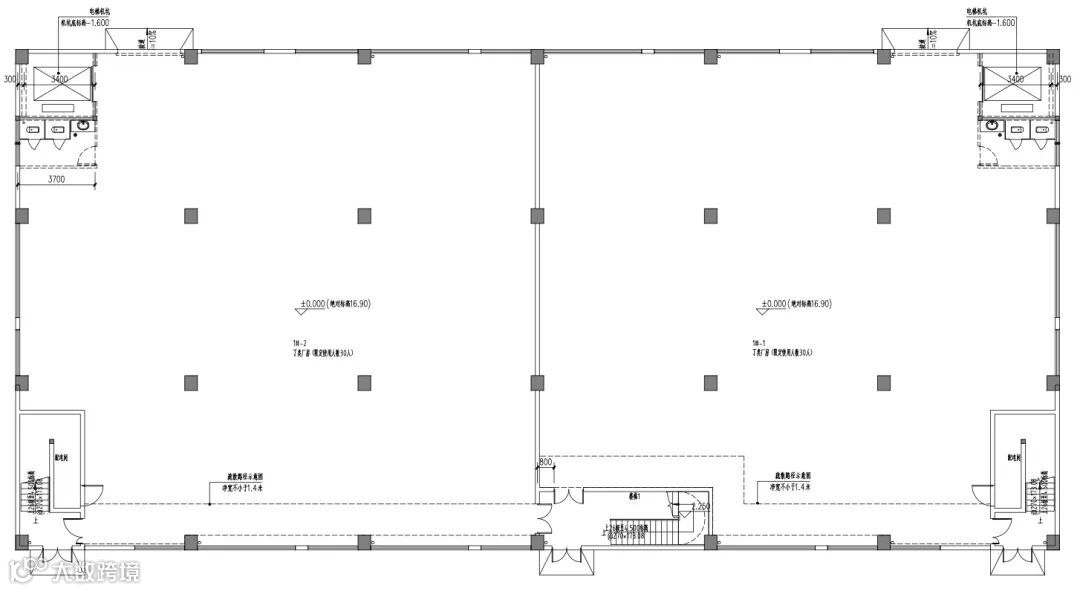
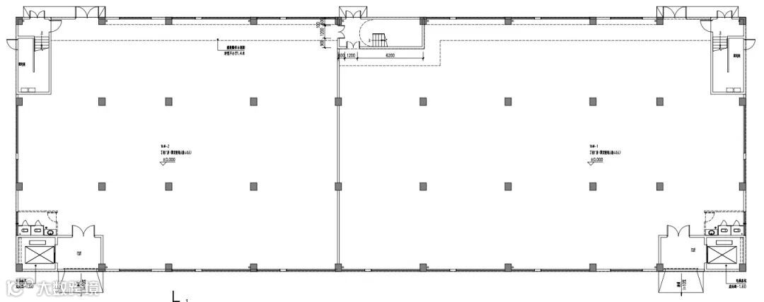
【部分户型展示】
「三层双拼」
(一层平面图)
「三层分层双拼」
(一层平面图)
「四层分层独栋」
(一层平面图)
泉州厂房出售招商 400-0123-021
或 13391219793
欢迎关注、点赞、转发
欢迎关注、点赞、转发





