【淄博高新智谷产业园项目】
一栋一企,沿链聚合
好企业进好园区
【品牌介绍】
卫康集团致力于为各级医疗机构提供领先的医学检验、病理诊断医教产研用一体化解决方案,是国内先进的“人工智能+医药”产业链构建者与新医药产业领跑者,获得国际级高新企业、山东省瞪羚企业、山东省专精特新企业等多项荣誉。
山东智康产城建设开发有限公司由卫康集团投资成立,打造专业的产城团队和管理体系,整合国际、国内领先“产学研金服用”合作资源,进军工业地产行业,拥有多个土地储备,准备在全国布局100-200个工业产业园区,创立卫康集团工业地产品牌。
【区位介绍】
园区位于淄博高新区柳泉路与裕民路交汇处,距离银泰城、奥特莱斯商圈不足3公里,助力企业高效链接圈内优质资源,提高员工的工作和生活效率,具有稀缺性。
【园区概况】
占地面积:270亩
物业类型:研发办公楼、生产厂房
产权类型:50年大产权
产品面积:约400-6000㎡
层高设计:研发办公楼首层层高约5.2米,生产厂房首层层高约8.1米
产品特色:一栋一企,一层带院子,顶层带露台;大开间、大柱距设计;双层保温设计,隔音降噪保温
工程进度:一期现房;二期工程在建中
园区配套:园区内部配置食堂、酒店、公共会议室,规划引进银行等配套服务
物业公司:卫康物业(自持)
物业费:生产厂房1.5元/平.月;电梯厂房1.8元/平.月
【园区定位】
园区由淄博国家高新区技术产业开发区管委会、山东第一医科大学(山东省医药科学院)牵头,深圳卫邦科技有限公司、山东卫康医学检测公司等政府、高校、企业共同建设。
依托“载体开发建设+园区运营+产业投资”三大核心能力,构建科技研发、创新孵化、生产制造、人才培养、总部办公、产业服务六大功能体系,打造9大基地、10大平台于一体的产业链融合创新发展平台,打造人工智能、高端产业聚集高地,助力企业高质量发展。
当前,成功招引优质企业近四十家,涉及生物科技类、智能制造类、新材料、无人机等多个战略新兴产业,包含省级专精特新企业、高新企业等。
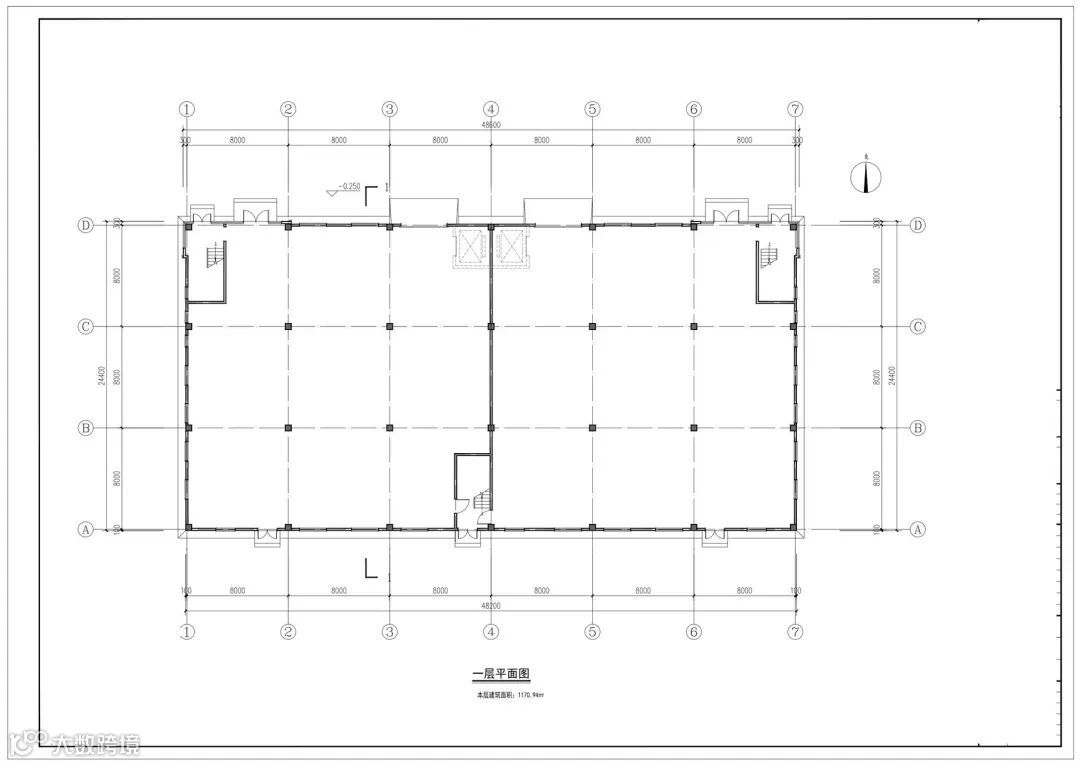
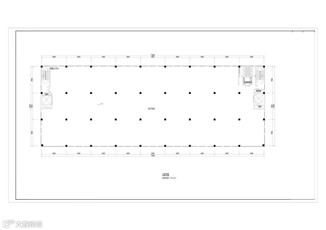
【产品介绍】
1、一期产品
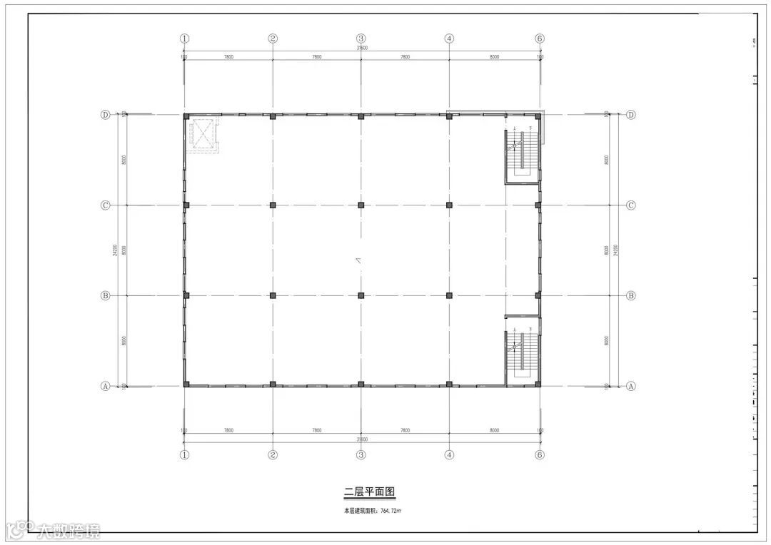
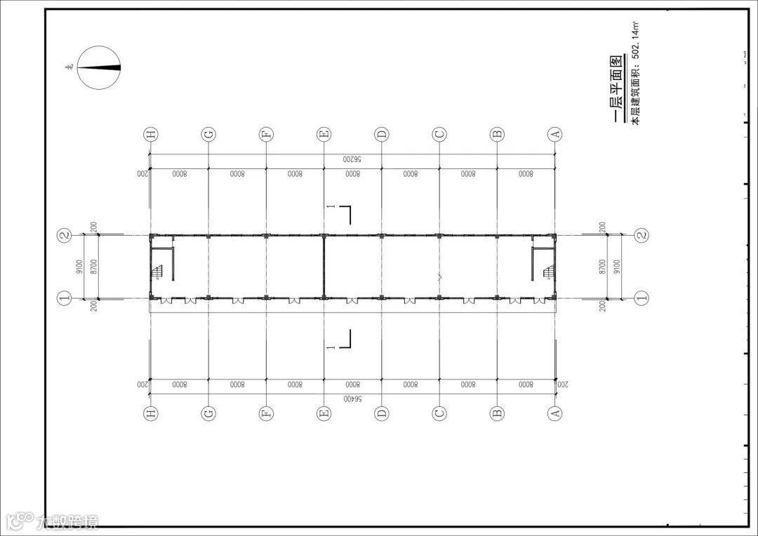
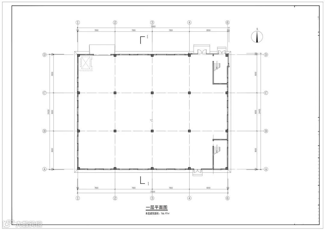
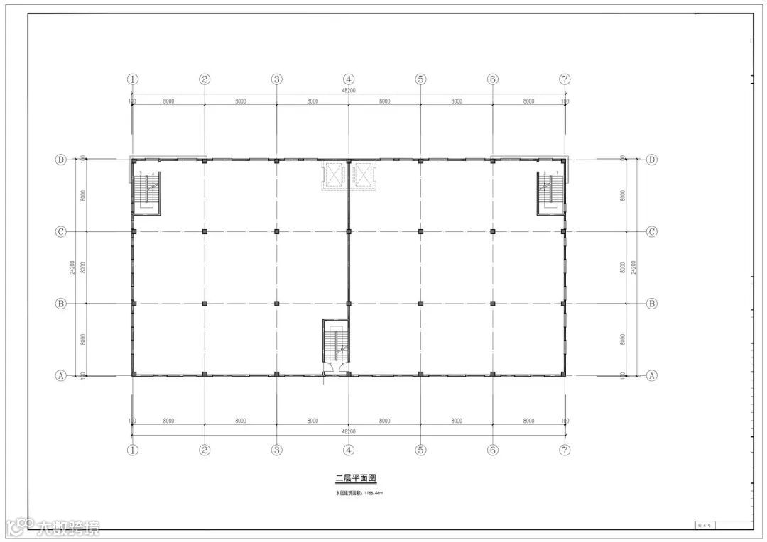
楼栋:16#3层/5层【5层生产厂房】
面积:16#3层建筑面积2183.21㎡、5层建筑面积1473.86㎡
交付:现房
户型:
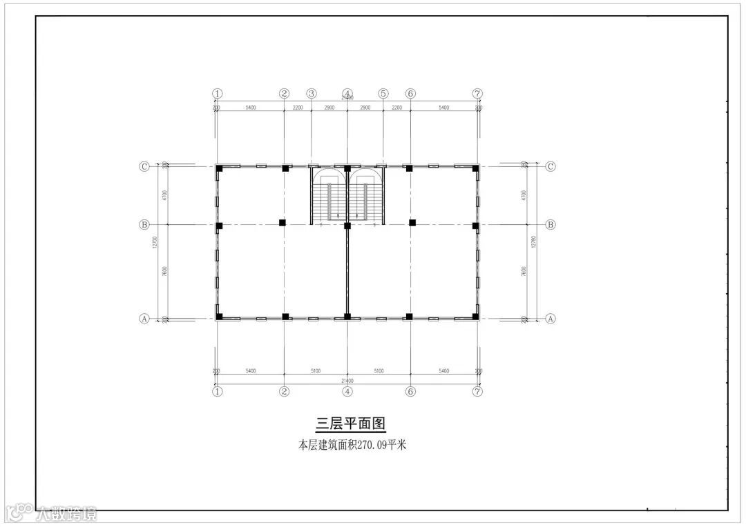
16#楼3层平面户型图
16#楼5层平面户型图
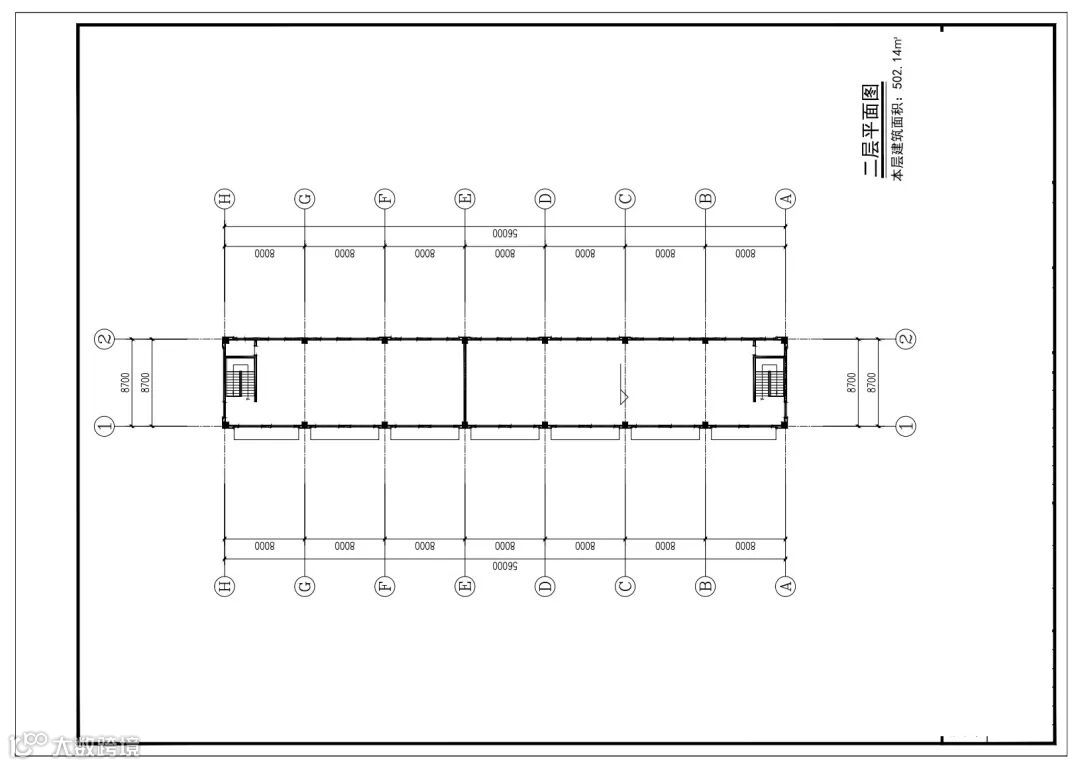
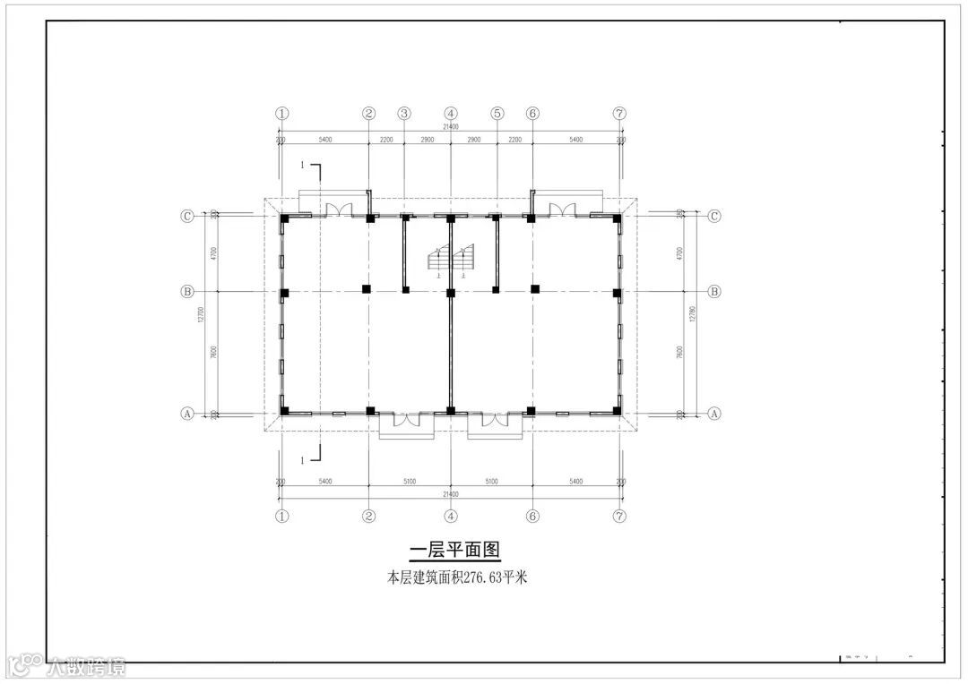
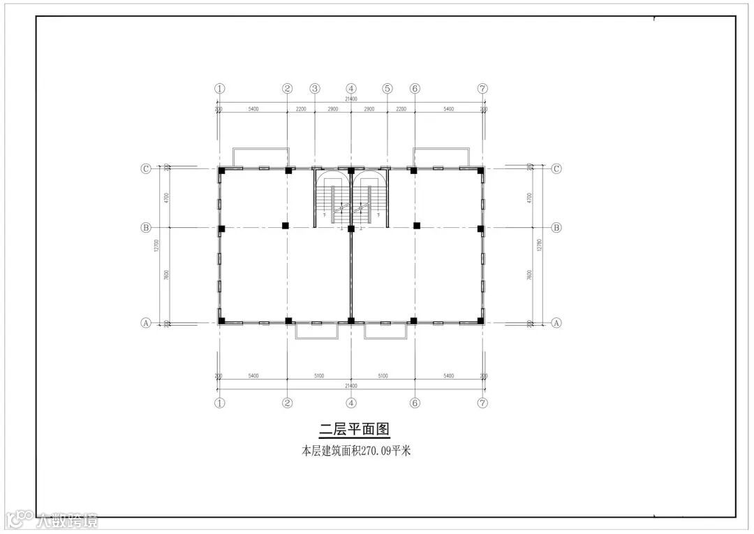
2、二期产品(A区)
楼栋:A1-A9研发办公楼(双拼、3.5层)
面积:建筑面积516.23㎡;
价格:4500-4800元/㎡
交付:预计2025年10月份
户型:
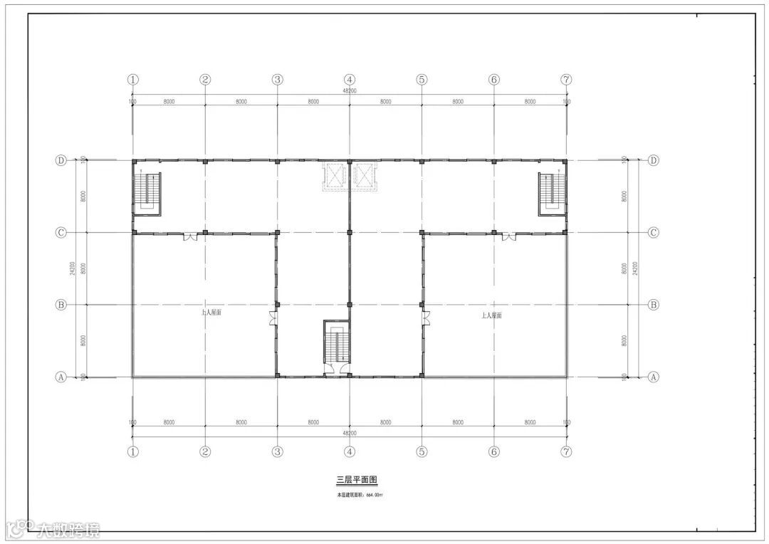
3、二期产品(B区)
楼栋:B4、B5(独栋厂房、2.5层);B7、B8、B10、B11生产厂房(双拼厂房、2.5层);B12(2层)
面积:B4、B5建筑面积2167㎡;B7、B8、B10、B11建筑面积1500㎡;B12建筑面积1000㎡
价格:3750-3950元/㎡
交付:预计2025年10月份
户型:
2167㎡户型图
1500㎡户型图
B12户型图
欢迎关注、点赞、转发
欢迎关注、点赞、转发





