西安厂房出售 长安高新特种装备研发生产基地 1300平起售
企业办公| 中试研发 |花园式工业厂房
地址:高新CID核芯产业集群片区
【南侧鸟瞰图】
【1#研发楼透视图】
【开发商】西安子竹智能科技有限公司
【规划】本项目共计地上建面34000方(25亩),一类工业用地,设计三座工业厂房和一座综合研发楼
【招商方向】智能制造,电子信息,生物医药,人工智能,新材料,检验检测等产业,将打造成聚合设计研发,中试成果转化,企业总部和高端服务等功能为一体的产业集聚地。
【产品参数】
【独栋首层平面图】
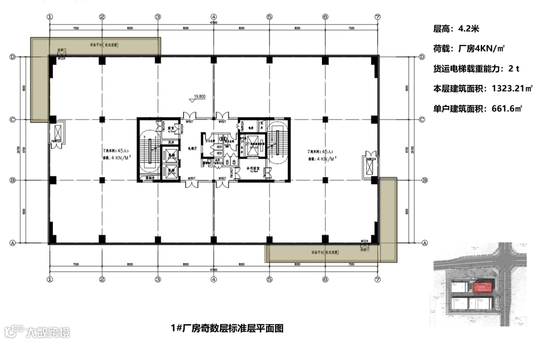
【1#楼奇数层平面图】
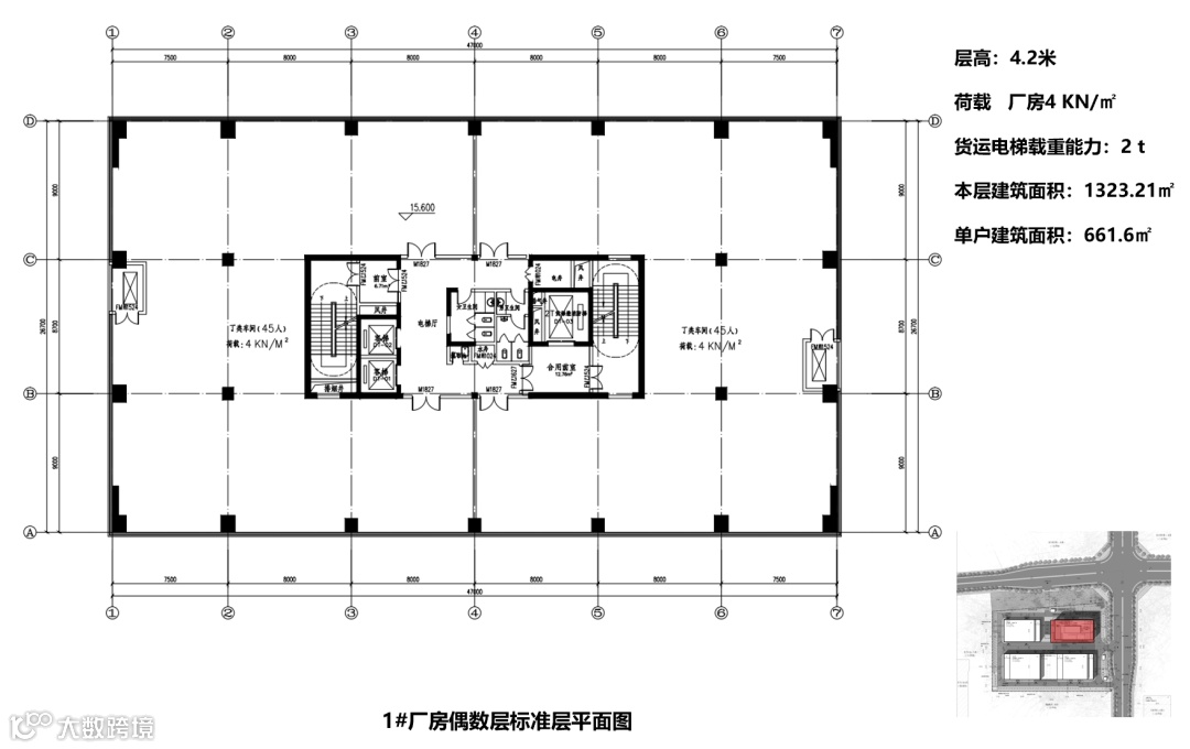
【1#楼偶数层平面图】
【付款方式】首付20%起,剩余按揭贷款
【区域优势】项目距离地铁15号线细柳站1.4公里,周边交通路网发达,大配套完善,便利性较高。周边产业园区众多,产业氛围浓厚,且龙头企业聚集度较高,例:比亚迪、巨子生物、铂力特、特变电工等。
研发办公厂房土地咨询

欢迎关注、点赞、转发

欢迎关注、点赞、转发





