中南高科智造园·珠海

项目位于珠海国家级农业科技园、广东省级智能智能经济开发区核心区——珠海斗门智能制造产业园,作为珠海市第三个省级开发区,旨在打造珠江西岸千亿级智能制造示范区
项目概况:总占地约83亩,总建筑面积约17万㎡,总投资约8亿元
优势1:珠海唯一可售M1工业用地、红本不动产权50年
优势2:稀缺4层独栋厂房(量身定制),面积约2100-8400㎡、独户货梯
优势3:高标准高层厂房、单边配备两部货梯及一部客梯,人货分流
优势4:首付2成/按揭10年,月供等于租金,十年租金买厂房
优势5:交通涵盖海陆空,距离一级港斗门港约500米,距离高速口约6公里,1小时畅达粤港澳大湾区,畅通国内外
珠海市·斗门·斗门智能制造产业园内(正川科技及百奥电气旁)
备注:导航搜索中南高科智造园(珠海)招商中心

【位置】省级经济开发区-珠海市斗门智能制造产业园内
【占地】约83亩
【总建面】约17万㎡
【土地性质】M1工业用地,产权50年
【面积段】
3-4层独栋:约2100㎡-8400㎡/栋
9/12层高层:约793㎡~2000㎡/户
【层高】
8#9层高层厂房:首层约7.8m+二层约6.2m+标准层及顶层约4.5m
10#12层高层厂房:首层约7.8m+二层约4.5m+标准层及顶层约4.5m
4层独栋厂房:首层约7.2m+二层至三层约4.5m+顶层约3.9m
3层独栋厂房:首层约约7.2m+二层约4.5m+顶层约3.9m
【承重】
8#高层厂房:首层约3T+二层约0.8T+标准层及顶层约0.5T
10#12层高层厂房:首层约3T+二层约0.5T+标准层及顶层约0.5T
4层独栋厂房:首层约2T+二层至三层约0.5T+顶层约0.4T(其中7#独栋:首层约3T+二层约1T+三层约0.8T+顶层0.65T)
3层独栋厂房:首层约约2T+二层约0.5T+顶层约0.4T
【电梯】
独栋:预留3T电梯井;
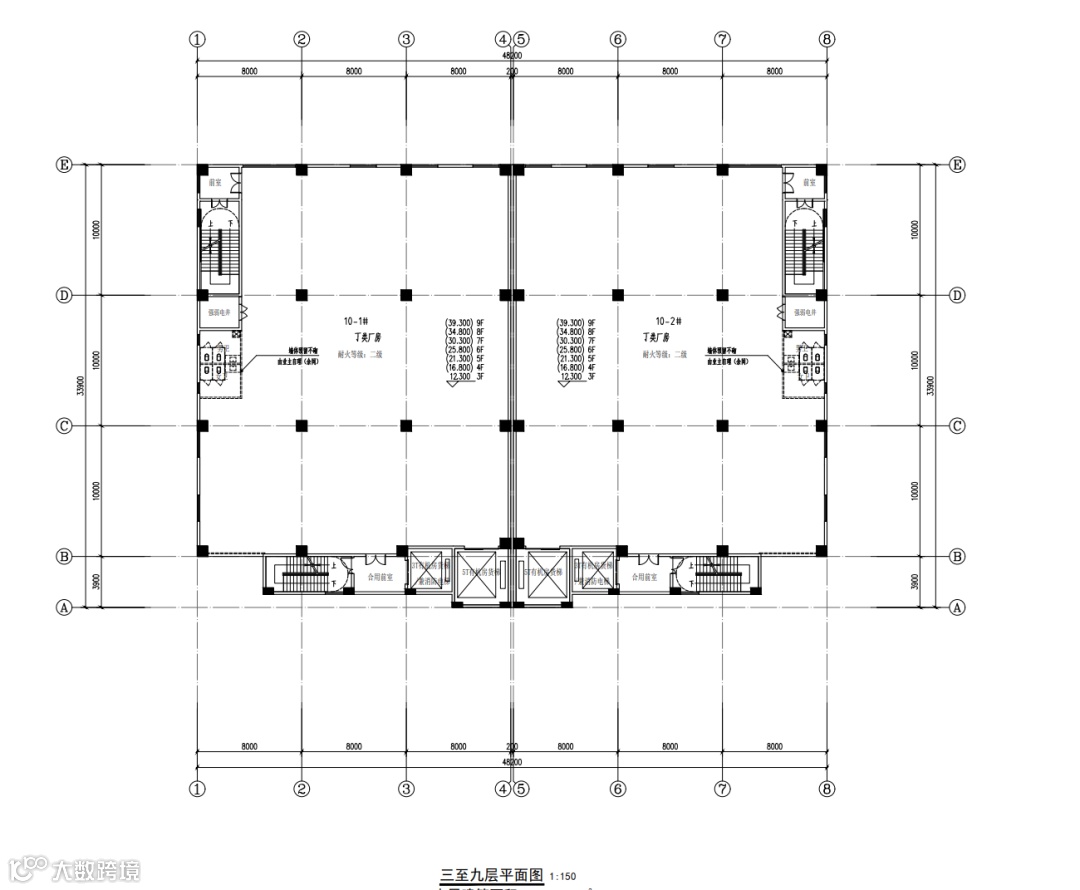
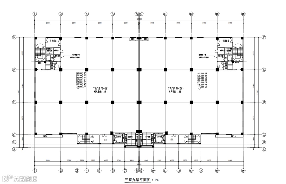
9F高层:共3部电梯(1部客梯,2部货梯)
【已进驻产业】
项目所属斗门智能智造产业园,截至目前已累计引进百奥电气、东升源、力强仪表、正川科技、精实测控、永臻等40 个制造项目,总投资约228亿元,达产后年产值将达 280 亿元。
【斗门智能制造产业园规划图、周边企业及本项目位置】
【交通优势】
项目位于斗门智能制造产业园内,位于珠三角核心腹地,毗邻港澳,是港珠澳大桥唯一的大陆落脚城市。
公路:距离中山西环高速神湾南收费站约6公里,距离西部沿海高速、广佛江珠高速斗门收费站约8公里
铁路:距城轨珠海站约30公里,距明珠轻轨站约25公里,距规划中的珠斗城际白蕉站约3.5公里
水路:距国家一级口岸斗门港仅500米,将打造成为港口、产业、城市互动发展的现代化港口
机场:距珠海金湾机场约38公里
【生活配套】
项目自带公寓、商业、食堂等配套;距离园区服务中心仅500米。作为产城融合标杆,斗门智能制造产业园致力打造为宜居宜业宜游的优质生活圈
【斗门智能制造产业园】
项目所在园区在2021年2月获批为#省级智能制造产业园内,同时属于广东省重大产业发展平台“珠海-江门大型产业园区”范围内。
距离横琴粤澳深度合作区仅20公里,是珠海经济特区的重要一极,可同时享受多层产业政策红利,以科技创新产业为引领,重点发展智能制造装备、电子信息、人工智能三大产业。
现有重点企业90多家,2021年实现规上工业总产值69.77亿元,固定资产投资10.27亿元,累计引进百奥电气、东升源、力强仪表、正川科技、精实测控、永臻等36个制造项目,总投资约232亿元,达产后年产值将达238亿元,其中落地在建的有13家。
效果图
整体图:
高层厂房:9层
多层独栋厂房:4层
【户型图】
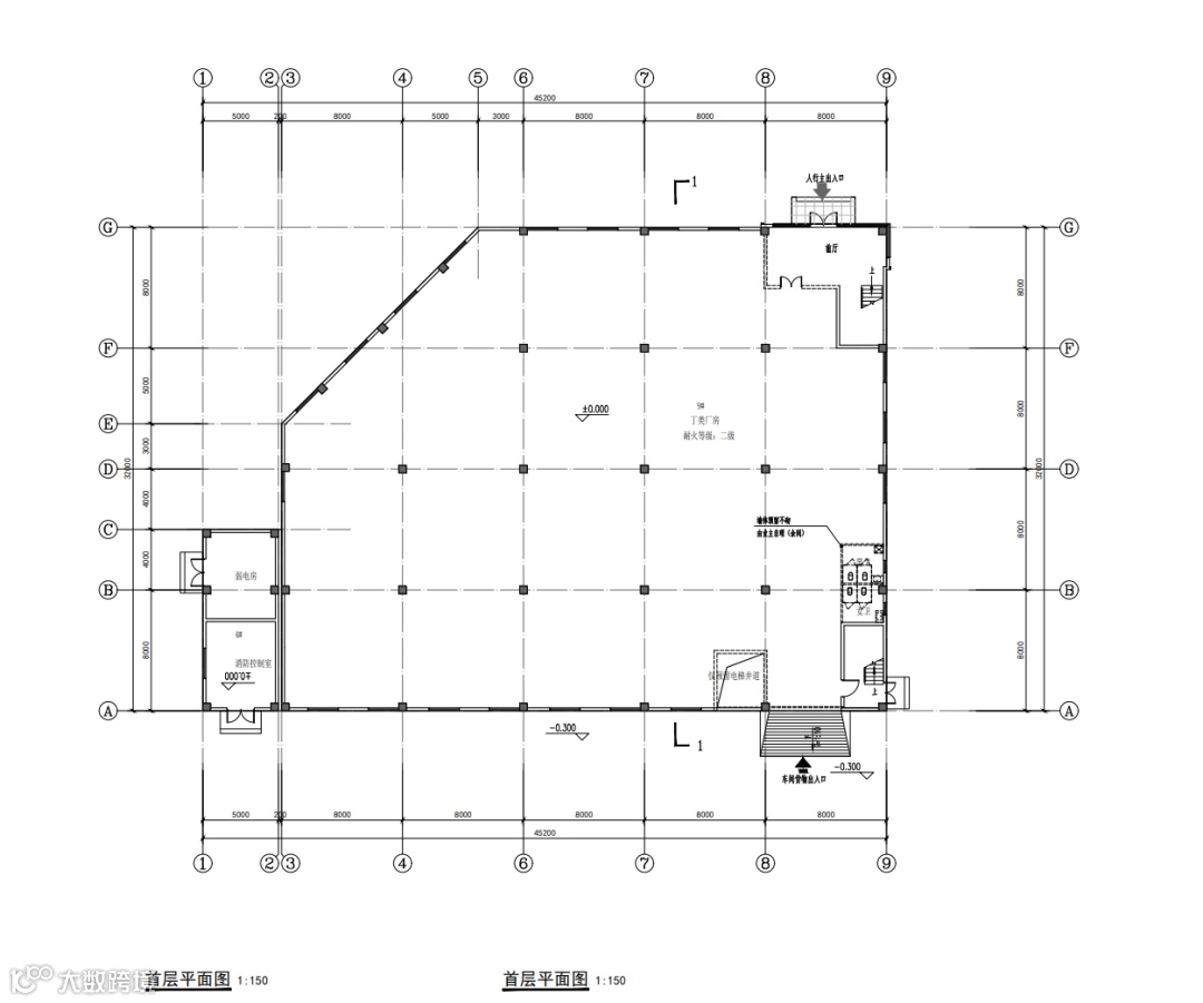
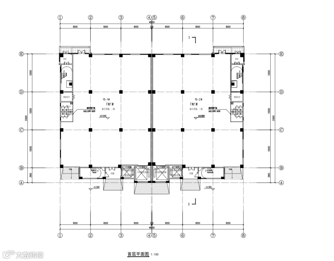
①独栋1#户型图约4151.88㎡/4151.88㎡(首层)
⑤独栋9#户型图约3588.76㎡
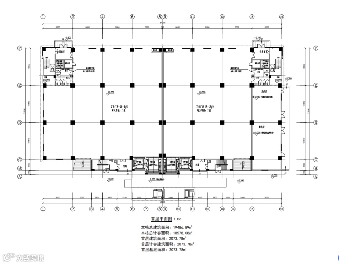
③高层8#户型图约871-1034㎡(首层及标准层)
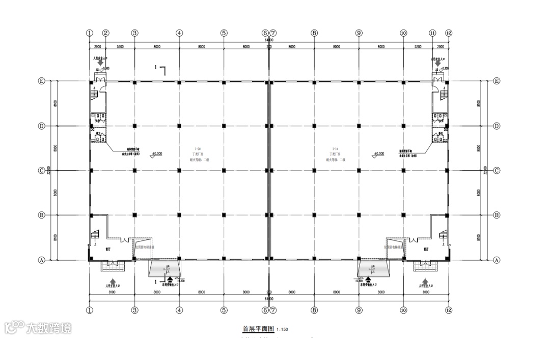
④高层10#户型图约793-795㎡(首层及标准层)
【开发商】
中南高科成立于2015年,紧跟“制造强国”战略和“一带一路”倡议,以新兴产业园区发展为基础,以产业资源导入与产业发展服务为核心竞争力,全力赋能优秀企业家,致力于打造集产业研究策划、园区开发、产业资源导入及产业园运营服务于一体的服务中国制造业的平台。截止2025年,中南高科已进驻超80个城市,布局产业园近200个,招引企业超10000家,高新技术企业等优质制造企业占比超38%。
中南高科智造园·珠海,是中南高科旗下承接粤港澳大湾区产业转移的高标准标杆园区。
欢迎关注、点赞、转发
欢迎关注、点赞、转发





