路德环境总部园区出租信息
路德生物环保科技股份有限公司,成立于 2006 年,注册资本 10071.4157万元,注册地址坐落于武汉市东湖新技术开发区未来科技城九龙湖街 51 号,于2020年9月22日在上交所科创板上市,股票简称“路德环境”,证券代码:688156。
路德总部园区有厂房、办公室资产出租,园区现有消防、环评已通过验收,提供写字楼、公寓、食堂、员工活动中心、地下停车库、充电桩、保安、保洁、绿化等服务。
具体地址:东湖新技术开发区未来科技城九龙湖街 51 号。
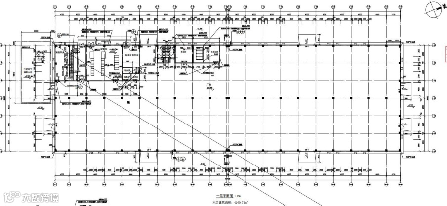
1、1 层信息:层高 4.6 米,面积 1000 平方,框架结构,设计
长 38 米,宽 25 米,横向柱间距 9.5 米,纵向柱间距 8-9 米;
2、2-5 层信息:层高 3.6 米
3、室内为毛坯,楼梯、卫生间为精装
4、 用电量 300-500KVA
1 层共有4 个入口
1 层内实景
二、4 号楼出租信息
1、独立厂房建筑,层高 17 米
2、面积 4266.9 平方,设计长 117.5 米,宽 36 米(两跨,每跨
18 米)
3、每跨有 1 台 32 吨天车,共两台
4、地面设计承重 3.5 吨/平方
5、用电量 1000KVA
6、带卫生间
7、厂房平面图
8、厂房外观
9、厂房内
三、1 号楼出租信息
1、7-8 层信息:单层面积 1400 平方,精装修
2、11 层信息:毛坯
配套:园区环境
配套:食堂
配套:地下车库
配套:公寓
配套:篮球场、台球、乒乓球、羽毛球、健身房等
研发办公厂房土地咨询

欢迎关注、点赞、转发

欢迎关注、点赞、转发





