合肥市庐江县 中昊港创合庐智造产业园 厂房出售 1000平方米起售
【项目规划】中昊港创·合庐智造产业园位于滨湖南部新城--合庐产业新城内,总占地约172亩,总建筑面积17万方。项目建成含钢结构厂房、标准化厂房、研发办公、产发大厦、园区配套为一体的综合性现代产业园区。
【产品类型】
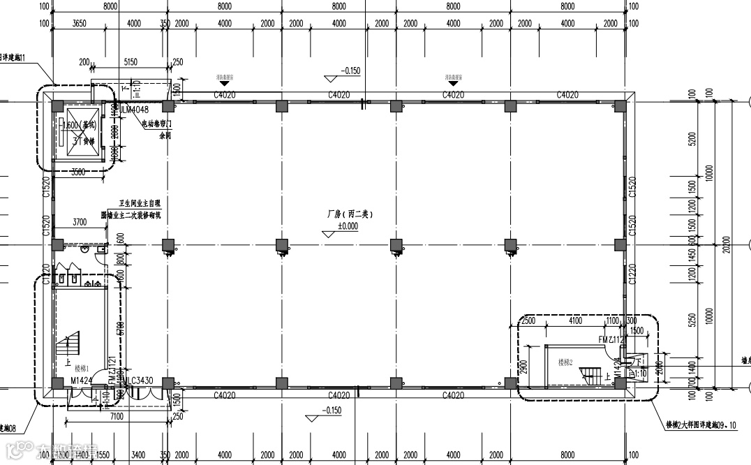
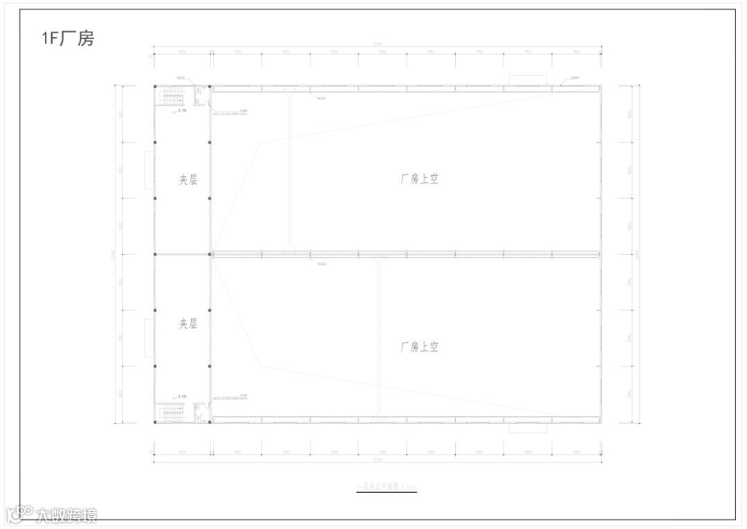
一层钢结构 10米和二框架首层8.1米、二层半框架、三层框架,双拼、独栋花园式标准化厂房。
赠送独户私家花园、超大露台。
面积:960-5300㎡
层高:12m/10m/8.1m/4.2m/4.2m
承重:一层3T/㎡;二层、三层:500kg/㎡
产权: 50年
柱距:10米
消防等级:丙类
合肥产证 距离安徽省政府35分钟车程。
拥有三横六纵公路网和一铁一轻轨
三横:盛同路、龙桥路、汤池大道,平均间距1.4km。
六纵:京台高速、徽州大道、新合铜路、经三路、老合铜路、已规划道路。
一铁、一轻轨:合九铁路、合庐轻轨线
项目地址:合肥市庐江县合庐产业新城
合肥厂房出售招商
400-0123-021
欢迎关注、点赞、转发
欢迎关注、点赞、转发






