武汉厂房出售 东湖高新·国际智造中心 单层钢构厂房出售 2000平起
国企开发 独栋/钢构厂房 分割办证 交通便捷 配套齐全
2-3 层独栋厂房 首层高 8.1m
单层钢构厂房 高 12m
【产业定位】
智能装备/智能网联汽车及关键零部件/光电子激光信息通信/新材料/智能家居
【位置】
项目处于常军大街和常欢大道交汇处,距离东风大道高架桥直线距离3公里,实现与三环、四环快速对接,距离沪渝高速入口约8分钟车程,紧邻地铁10号线(规划中)
【产业优势】
区域紧靠武汉经开区,与东风汽车主机厂、格力武汉工厂、冠捷显示器武汉工厂等为代表的一批行业龙头企业为邻,聚集有汽车零部件、智能制造、光电子信息等一众行业上下游企业,产业氛围极为浓厚。
【龙头企业】汽车产业及配套企业:东风汽车、东风研究院、康明斯、纳铁福二厂、福耀玻璃、红忠泽金属、牧野汽车、伟巴斯特、马勒滤清、八千代工业、博格华纳、阿卢米科技等; 高端制造业&智能家居企业:台湾冠捷科技、东进塑料、普旭真空设备、格力武汉、欧派家居、美的制冷、敏华家具华中总部基地等;新材料企业:沃尔核材、百思通新材料等。
【项目体量】
项目占地240亩 ,建设体量约14万方。
【项目产品】
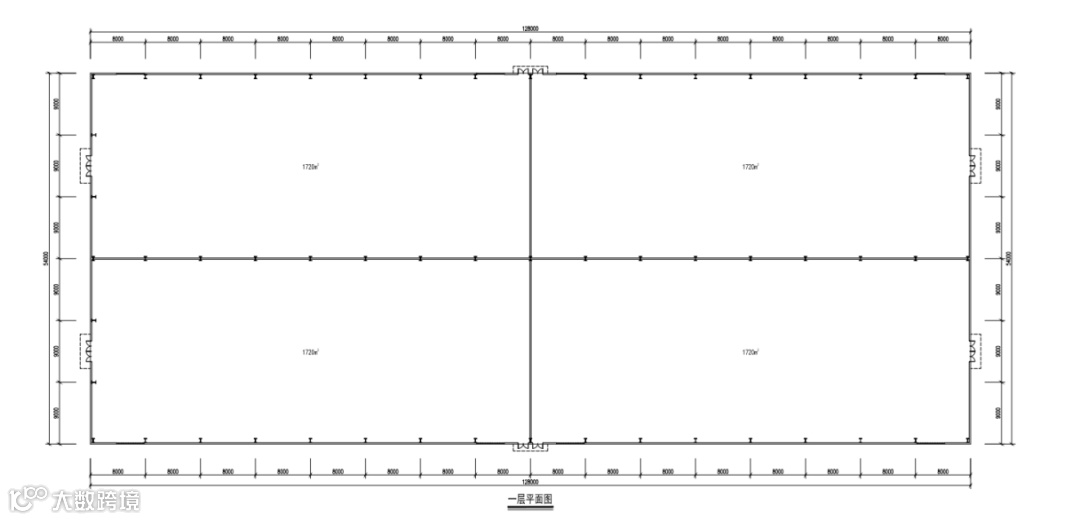
一、钢构厂房 层高 12m 面积段:2000/4000/8000m²;
层高:穹顶高12m,檐高11.25m;
区域内稀缺产品,供大型制造行业使用。
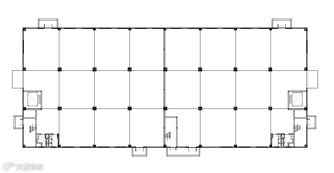
二、独栋厂房:1100-6000m²独栋户型+双拼户型 单户面积(分割办证独立产权):550/600/800/900/1000/1200/1500/1800m²;
独栋面积:1100-6000m²; 层数:2/2.5/3/3.5/5 层;
层高:一楼层高8.1m,标准层4.5m;
承重:一楼实心地,标准层800kg/㎡;
用电:首层100W/㎡,标准层80W/㎡(可增容);
停车位: 0.4/100㎡; 容积率:1.2;
分割办证,独立产权,首付2成起。
钢构厂房户型图:
框架厂房户型图(产品较多,部分示例):
项目实景图
【产业运营】东湖高新5星物业提供企业管家服务,运营对接政府政策,财税筹划,上下游产业嫁接,投融资平台等全方位运营服务体系。
【优惠政策】蔡甸区政府印发蔡甸区加快推动科技创新引领高质量发展实施办法的通知,针对不同企业,不同阶段都有相应政策扶持。
【开发商介绍】
东湖高新·国际智造中心的开发主体是武汉东湖高新集团股份有限公司(东湖高新-证券代码600133),东湖高新成立于1993年,1998年作为国家科技部推荐企业在上海证券交易所上市,2011年湖北省联合发展投资集团有限公司控股东湖高新(联投集团旗下唯一的上市公司),2021年东湖高新集团成立武汉智园科技运营有限公司,布局轻资产运营服务,并携手科大讯飞向智慧化园区运营转型。
东湖高新集团是一家以“科技园、环保科技、工程建设”为三大主营业务板块的高新技术产业投资控股公司,经过三十余年的探索创新,走出了“平台+运营+投资”的独特模式,现承担湖北联投"三全三商"定位中重要职能,全力打造科技园区、产业园区、功能区全生命周期运营商。
研发办公厂房土地招商咨询
400-0123-021或以下二维码


欢迎关注、点赞、转发
免责声明:
1.部分文字和图片来源于网络不对相关图片内容享有任何权利
2.我方重申:所有转载的文章、图片、音频视频文件等资料知识产权归该权利人所有,但因技术能力有限无法查得知识产权来源而无法直接与版权人联系授权事宜,若转载图片可能存在引用不当或版权争议因素,请相关权利方及时通知我们,以便我方迅速删除相关图文内容,避免给双方造成不必要的损失;
3.因文章中文字和图片之间亦无必然联系,仅供读者参考。
文章来源《网络》






