绵阳厂房出售 安州厂房出售 单层钢结构 2层厂房 1200平起售
中南高科绵阳安州擎动未来汽车产业园
中南高科绵阳安州擎动未来汽车产业园由中南高科开发建设,项目总规划用地约1020亩,总投资30亿元,共分三期开发。一期占地244亩,建筑面积12万㎡,已全部招商完毕;二期211亩、建筑面积9.3万㎡正火热招商中。园区聚焦新能源汽车、高端装备制造、新一代信息技术等产业,致力于打造西部汽车产业集群示范园区。
园区配套成熟、交通便捷,周边物流企业集聚,公路网络发达,产业支持力度强。
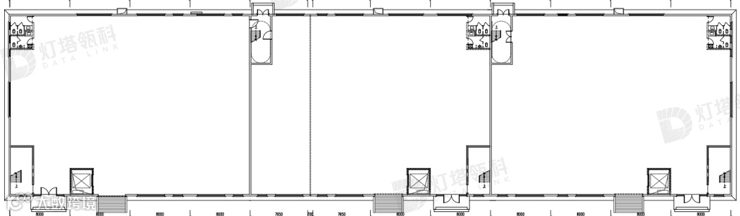
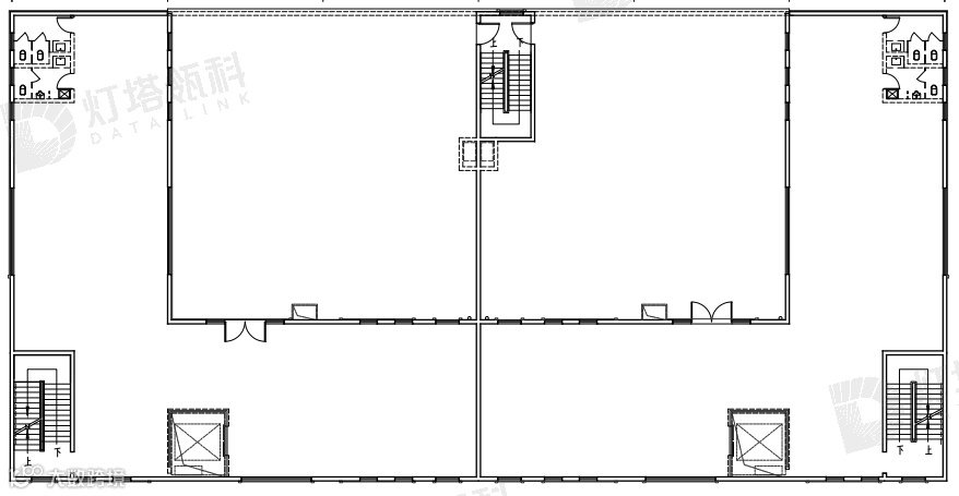
产品类型丰富,包括单层及多层框架、钢构厂房,户型灵活多样,面积可适配不同企业需求。
均价仅2800元/㎡,物业费1.5元/月/㎡,用水用电成本可控,投资入驻性价比高。
建筑标准优良,抗震等级7度,耐火二级,消防按丁类设计,为企业提供安全可靠的生产环境。
区位优势明显,地处绵阳市安州区界牌镇,毗邻主要交通干道,货运、物流配套完善,产业链资源整合能力强。
欢迎关注、点赞、转发
欢迎关注、点赞、转发
免责声明:
1.部分文字和图片来源于网络不对相关图片内容享有任何权利
2.我方重申:所有转载的文章、图片、音频视频文件等资料知识产权归该权利人所有,但因技术能力有限无法查得知识产权来源而无法直接与版权人联系授权事宜,若转载图片可能存在引用不当或版权争议因素,请相关权利方及时通知我们,以便我方迅速删除相关图文内容,避免给双方造成不必要的损失;
3.因文章中文字和图片之间亦无必然联系,仅供读者参考。
文章来源《网络》






