绍兴厂房出售 3层独栋2400平起 小面积大平层800平起售
绍兴国科生命健康创新园
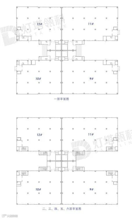
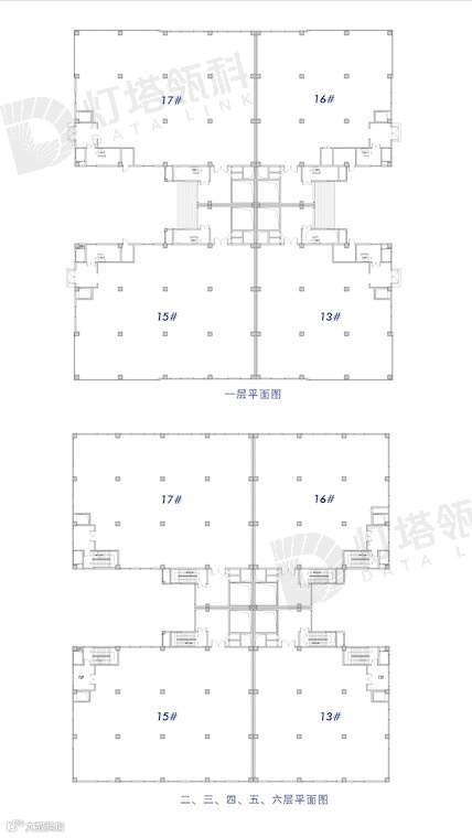
绍兴国科生命健康创新园位于绍兴市滨海新区,由绍兴康石置业有限公司开发,总占地面积约17万平方米,一期建筑面积约15万平方米。园区提供标准厂房、研发办公、员工宿舍及检测中心等多种产品类型,建筑形式包括三层独栋双拼及六层分层厂房,面积区间600-12000㎡,可满足企业多样化需求。园区重点聚焦生物技术药物、生命医学工程、高端医疗器械、医疗大数据及医疗服务平台,致力于构建全链条生物医药产业新高地。
优势及亮点:
配套成熟,园区内配备员工宿舍与食堂,解决企业后勤保障需求
交通便捷,邻近公路与顺丰速运大件转运中心,货运物流高效畅通
产业链完整,聚焦生命健康领域,形成产业集聚效应
电价优势显著,提供大工业用电阶梯电价,降低企业运营成本
物业费用合理,分层2.2元/㎡、独栋1.9元/㎡,性价比突出
户型设计灵活,提供三层双拼、六层四拼等多种组合,适应不同规模企业需求
欢迎关注、点赞、转发
欢迎关注、点赞、转发
免责声明:
1.部分文字和图片来源于网络不对相关图片内容享有任何权利
2.我方重申:所有转载的文章、图片、音频视频文件等资料知识产权归该权利人所有,但因技术能力有限无法查得知识产权来源而无法直接与版权人联系授权事宜,若转载图片可能存在引用不当或版权争议因素,请相关权利方及时通知我们,以便我方迅速删除相关图文内容,避免给双方造成不必要的损失;
3.因文章中文字和图片之间亦无必然联系,仅供读者参考。
文章来源《网络》






