上海闵行颛桥 研发办公园区厂房出租 地铁元江路站 1175平起租
项目地址:闵行区都会路/元江路
通勤:距15号线元江路地铁站直线700米,早晚高峰配备班车
漕河泾秉承本部科技绿洲理念,联手颛桥镇打造高绿化低容积、碧水环洲的产城融合新典范
一期房源推荐
【项目标的】独栋4层
【建筑面积】4700平 最小分割1175平(1层)
【推荐户型】整栋
【日租单价】2.2-2.3元
【物业费用】6.00 元/㎡/月
【停车费用】园区内部400元/月;光明路道路免费停车
楼内预留排烟管道井
预留燃气接口至楼栋旁
一期配套员工食堂、便利店、咖啡店、多功能会议接待中心
房屋税收达标2300元/平/年,可洽谈达产期
企业服务、科创服务、基金扶持
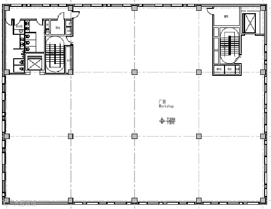
房屋平面图
1层平面图
⬆标准层平面图
楼宇技术参数

园区效果&实景
园区服务中心
研发办公厂房土地招商咨询 以下微信


免责声明:
1.部分文字和图片来源于网络不对相关图片内容享有任何权利
2.我方重申:所有转载的文章、图片、音频视频文件等资料知识产权归该权利人所有,但因技术能力有限无法查得知识产权来源而无法直接与版权人联系授权事宜,若转载图片可能存在引用不当或版权争议因素,请相关权利方及时通知我们,以便我方迅速删除相关图文内容,避免给双方造成不必要的损失;
3.因文章中文字和图片之间亦无必然联系,仅供读者参考。
文章来源《网络》






