创业初期怕空间浪费?发展壮大愁迁址麻烦?不同阶段企业有不同空间诉求,京津冀企业总部科创城直击选址痛点,以灵活产权分割、多元面积组合、全周期定制方案,让企业从初创到龙头,都能找到专属 “成长空间”,无需为场地辗转奔波。
打破传统产业园区 “大面积捆绑销售” 的枷锁,项目产权分割灵活度拉满,最小分割面积 300㎡起,彻底降低小微企业与初创企业的入驻门槛。
对刚起步的初创企业而言,无需承担冗余空间成本,300㎡的精致体量既能满足基础生产、办公需求,又能将更多资金投入核心业务研发与市场拓展,实现 “小投入、稳起步”。相较于行业内普遍的大面积置业要求,这种 “精准匹配” 的分割模式,让中小企业无需再为用不上的空间买单,每一分钱都花在刀刃上,大幅提升资金使用效率。
高得房率更添惊喜,项目得房率保证在90% 以上,力争达到 95%,远高于行业平均水平。企业支付相同房款,能获得更大实用空间,降低单位面积使用成本,让有限空间创造无限价值。
考虑到企业不同阶段的规模扩张需求,项目打造南北侧差异化产品矩阵,支持 “小面积单独使用、大面积组合拓展”,完美适配从初创到成熟的全周期空间诉求。
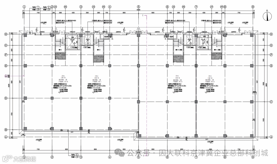
南侧 C 区为 4-5 层 4 拼独栋产品,支持分层销售,中大型企业可选择整层或多层组合,实现规模化生产与办公一体化;小型企业也能联合办公,共享园区资源,降低运营成本。
北侧 C 区为“回” 字形分层产品,可分割为 4 户。企业可根据发展规模灵活增减空间,初创时选择小面积起步,壮大后直接相邻拓展,无需迁址就能实现规模扩张,避免因搬场造成的生产停滞与资源损耗。
无论是电子信息、生物医药等轻资产行业,还是高端制造、精密机械等需较大生产空间的领域,都能在这儿找到契合的空间解决方案。
基于对 2000 + 京津冀企业的深度调研,项目针对不同发展阶段、不同产业类型的企业,量身打造 “初创三件套、瞪羚五件套、小巨人七件套” 定制化方案,让空间与企业成长同频共振。
“初创三件套” 聚焦核心功能与成本控制,包含基础办公区、生产空间、仓储空间,提供 “骨架清晰、五脏俱全” 的起步空间。空间分割完整,墙地面基层、工业门窗、管线桥架等均以高标准完成,企业只需简单加装个性化设施即可投产,大幅降低初期投入。
“瞪羚五件套” 专为高成长性企业设计,在基础功能之上,增加高端办公区、研发实验室、产品展示区,适配研发驱动、注重形象的企业需求。研发办公区、产品生产、彰显企业产品的形象展示区,让企业 “入驻即开工”,最快 1 个月就能实现研发投产闭环。
“小巨人七件套” 则满足中大型企业或特殊工艺需求,涵盖研发中心、品牌展示、商务接待等全维度功能。5.3-7.2米挑高、1吨 /㎡以上荷载地面、8.4 米大柱距,搭配重型设备独立基础,完美适配重型生产等个性化需求,让企业无需迁就空间,专注核心业务突破。
从 300㎡灵活置业到全周期定制方案,企业无需为场地妥协,既能以低门槛起步,又能随规模扩张灵活拓展,更有精准匹配的功能配置保驾护航。在这里,京津冀企业总部科创城真正读懂了企业发展的空间诉求!
因大联科京津冀企业总部科创城
项目地址
河北固安371省道与规划三路(新显路)南行300米路西
招商热线
400-0123-021



图片内容如有侵权请联系我,速删除