
广西北部湾国际港务集团有限公司是广西壮族自治区人民政府直属大型国有独资企业,自2012年起连续9年入围中国企业500强,在南宁市青秀区有三处“湖景+双地铁口+核心商圈”的办公物业欢迎企业入驻,让您驰骋商海,稳居“C位”!

北部湾国际港务大厦位于南宁青秀区金浦路33号,可提供办公、会客、商务、休闲 一站式商务解决方案,目前已成功引进方正证券、中国知网、中国南方电网等知名企业。
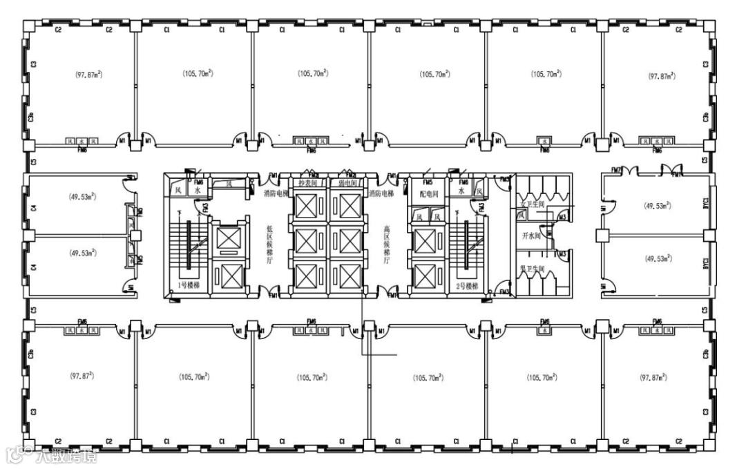
北部湾港务大厦建筑面积52427.69㎡,共有地下2层,地上32层;-2~5楼立体式停车位,共有380多个机动车停车位及新能源停车位,自动识别出入系统,让商务往来更从容。

(项目位置图)


(大堂)

(8楼会议室)

(顶楼健身、活动中心)
灵动办公。项目楼层标准层面积为1435.20㎡,精装修交付,50~1435㎡灵动商务办公空间,可整租,可分租。

(楼层平面图)

广西国际金融中心位于金浦路20号,集办公、展览会议、餐饮、曼尔顿星级酒店等多功能服务于一体,全优配套组合成的“商业综合体”。核心商圈+双地铁口+湖景写字楼!助力企业稳居市场“C”位!


“核心商圈+双地铁”。项目地处双地铁口,距离1号线、3号线金湖广场站仅2分钟步行距离,毗邻民族大道主干道,20多条公交线路,与各城区快速接驳,交通条件便利,商务配套完善,毗邻会展航洋城、万象城等商圈。

远眺民歌湖美景。项目与民歌湖仅一街之隔,民歌湖美景尽收眼底,外加天然氧吧,天然健康的办公生活,谁看了不羡慕!

(入户大堂)

(电梯间)
服务“三企入桂”示范楼宇。成功引进中国建筑、中国华能、农行个贷中心、中国进出口银行、中国石化多家优质企业。

(楼层平面图)

南湖名都广场位于南宁市青秀区双拥路30号,临近1号线地铁口,交通便捷,独有一线南湖一线公园景观资源,环境优美,配备五星级酒店、商业、公寓等。


(项目位置图)
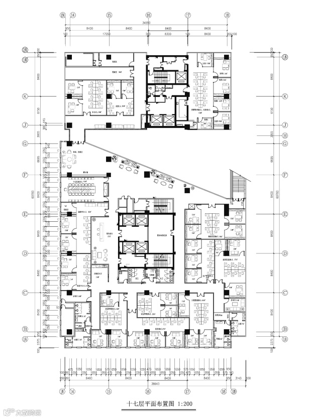
大空间,企业的优选。项目为南湖名都17层,建筑面积2194.52㎡,超大办公空间,精装配套,会议室、茶水间等一应俱全,一线的公园景观,更是彰显企业大气。
北港物业联系地址:南宁市良庆区体强路12号北部湾航运中心3楼305办公室
联系电话:阮小姐 17864269729


