年前小猪佩奇很忙,接下来我将使用Simulation模拟小猪佩奇在冬天来个踏板跳水。小猪佩奇站在跳板上,双脚对踏板一个瞬间力,让踏板向下变形。然后在踏板的恢复过程中,小猪佩奇会离开踏板飞起来。
分析过程要点:
1、首先需要确认是哪一种的分析类型。过程中有瞬间力,加上小猪佩奇要离开踏板。确定需要使用非线性动态分析。

2、小猪佩奇和踏板之间采用无穿透接触关系,需要设置摩擦系数。

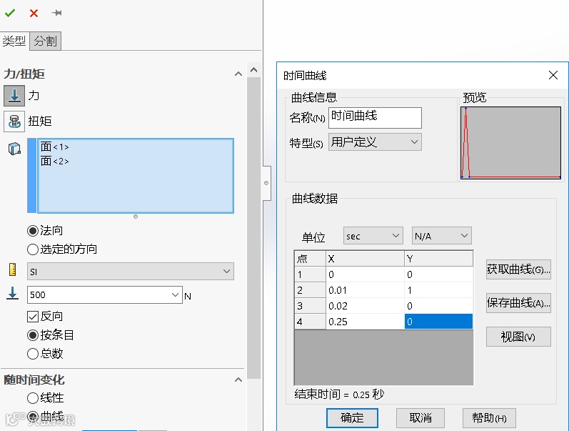
3、受力大小是一个时间曲线,0.01秒的时候达到最大值500N。0.02秒力消失。

4、分析设置

可以得出结果位置图解:

小猪佩奇的详细才艺展示过程,请点击下方视频文件查看。


