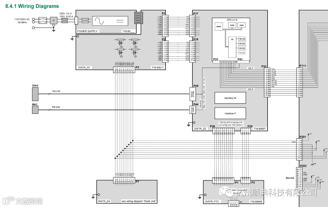
HC11对应的Subsystem Number和控制的模块


HC11的供电图



接头上各针脚电压


HC11的控制图

维修案例:
报警图

报错的HC11是subsystem10和subsystem11,也就是ROT和WSH都在M板上。
现场测量HC11上的5V电压,ARMP、ARMR、KRK上均为5.13V,M板上电压为4.74V。拔下M板后面背板上的P18,测量1号引脚电压为4.13V,拔下电源分配板上的P2测量1号引脚电压为5.242V,测量线路电阻正常。重新拔插P2后,P18端测量电压恢复为5.184V。线路接回测量M板电压5.16V,开机正常。





