
实例赏析预制电缆沟和预制电缆井拼装技术,并采用其他新技术新工艺,实现了工程创优。特分享给工程朋友们参考学习!
先来施工现场看一看实施情况
1.定点划线:电缆沟开挖前先进行定点划线,可有效控制电缆沟的顺直度。

2. 基层夯实,设置垫层控制桩:土方开挖后对基底进行夯实,防止电缆沟下沉;夯实后设置标高控制桩,可有效控制垫层标高。


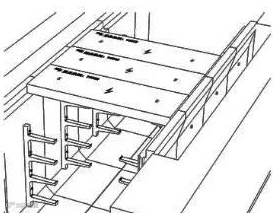
4. 电缆沟安装:电缆沟使用专用吊具吊装,安全稳固;安装后顺直美观,达到设计预期效果。


5. 电缆井拼装:电缆井采用分块拼装,施工效率高。

6. 电缆支架安装:电缆沟拼装同时安装电缆支架,可大大提高施工效率;支架与电缆沟同样采用高强度复合材料,安装方便、美观,采用预埋螺栓孔,安装无技术难度。

7. 拼缝填充:接缝处填充双硫密封胶,可提高电缆沟的侧面密封性和整体性。

8. 盖板安装:盖板安装采用专用盖板搬移工具安装,方便、安全。

预制电缆沟

· 重量轻,是传统混凝土产品的1/3左右,吊装方便。
· 构件承载能力高、抗震、抗冲击性能好。
· 生产标准化,精度高、内表面光滑美观,不需抹灰装饰。
· 开挖土方量少,施工安装简便。
· 不受施工地域空间、时间限制。
· 相比现浇钢筋砼电缆沟,施工工期短,综合成本节约。
预制电缆井

· 预制拼装,吊装方便。
· 构件承载力高、抗震、抗冲击性能好。
· 生产标准化,精度高、内表面光滑美观,不需抹灰装饰。
· 开挖土方量少,施工安装简便。
· 不受施工地域空间、时间限制。
· 相比现浇电缆井,缩短施工进度。
· 可作配网检查井、工作井、设备井、转角井。
预制电缆沟拼装流程
施工放线→沟槽开挖→夯实整平基础→垫层浇筑→吊装电缆沟槽→排水找坡及密封→回填压实土方→路面修复及盖板安装
① 沟槽起吊

② 贴遇水膨胀橡胶条(将遇水膨胀橡胶条贴于侧板榫槽位置)

③ 拼装(采用机械牵引和人工调整,电缆沟槽内侧接缝处涂双硫密封胶)

④ 支架安装

⑤ 回填土,夯实,路面修整,盖板安装

预制电缆井拼装流程
施工放线→沟槽开挖→夯实整平基础→垫层浇筑→吊装电缆井→排水找坡及密封→回填压实土方→路面修复及盖板安装
① 底板吊装,相应吨位的吊车用吊环起吊

② 侧板吊装

③ 螺栓固定(角铁应放置在井外侧;固定的螺栓螺母在内,螺帽在外;对于长井应采取必要的支护措施)

④ 井座吊装

⑤ 组装完成,同时用黑色玻璃胶密封侧板之间、侧板与井座之间的缝隙,待玻璃胶固化后按设计要求回填石粉

其他创新技术的应用
盖板搬移工具的应用:盖板搬移省工省力,有效提高施工效率和安全性。

电缆穿缆孔编号应用:规范放缆顺序,当发生故障时,能准确定位对应编号电缆,方便维修。

工程亮点赏析
电缆沟拼缝顺直均匀

电缆支架安装便捷,安装后顺直美观

预装式防火隔墙,与电缆沟一体化

预制电缆沟盖板,面层光滑,边角顺直,行走无响动

预制排水沟安装顺直,沟底采用U型设计,可有效减少垃圾积聚

电缆井过道铺设植草人行砖,美观实用

挡土墙周边设置安全围栏,整齐美观

预制转角沟,开模精准,安装平直

转角沟转弯过渡均匀顺直,支架安装规范美观

预制电缆沟整体美观,两侧恢复绿化,与周边环境相协调

深圳市为众云科技有限公司
公司以物联网技术为核心,专注于智慧物联解决方案及运营服务,致力于打造“互联网+”工程现场一站式管理的智慧工地云平台。平台针对建筑工地人员管理、设备管理、物料管理、现场管理、实时监测几大方面向工地提供各市工地实名制系统、电子围栏系统、车辆识别系统、环境监测系统等,全方位为工地提供实时化、数据化、自动化、智能化管理模式,为工地提高生产效益,降低安全事故概率,多方协同管理有效降低沟通成本。

