点击蓝字 关注我们
内容来源:通投
北京市通州区北泡轻钢项目为北投集团所属通投公司经营管理的国有资产。为充分发挥市场机制作用,保证国有资产经营交易公开透明和资产保值增值,特通过公开招商的方式广泛征集合作方,现将有关事项公告如下:
(一)招商主体
北京通州投资发展有限公司(产权方)
(二)项目名称
北泡轻钢项目
(三)项目简介
项目位于通州区张家湾设计小镇核心区域,张家湾镇光华路8号,地上总建面积约9.9万㎡,总车位数178个。项目整合会展、交易、创意办公、商业服务等功能于一体,建设一体化产城融合高地,打造设计小镇会客厅。一期为时尚展厅,二期为商业办公,目前部分楼宇已与北京服装学院通州校区设计文化共创基地达成明确意向,三期规划为定制式办公和研发中心。
一期
一期展厅作为副中心存量建筑更新改造的典范之作,由中国工程院院士、国家勘察设计大师崔恺亲自担任建筑设计,由原有老旧厂房改造而成,2022年荣获北京市首届“城市更新最佳实践奖”,是张家湾设计小镇的策展艺术交流和网红打卡地。总建面约1.77万㎡,地上三层(建面约1.1万㎡),地下一层(建面约0.67万㎡)。共划分为八大展厅,15米挑高极具视觉冲击力,采用模块化空间设计,可多空间联动,适配各种规模的展览展示、行业论坛、商业市集及沉浸式文娱活动等多元化场景。
二期
二期商办总建面约2.2万㎡,地上四层(建面约1.6万㎡),地下一层(建筑面积约0.6万㎡),由四栋低层连体建筑组合而成,采用退台式建筑设计,二、三层形成多个大尺度景观露台,首层具有燃气餐饮预留条件,打造集办公、商业相互交融的“小镇会客厅”。
三期
三期规划总建面积约4.3万㎡,规划为定制式办公和研发中心。可根据企业需求,进行空间、配置、承重等多维度定制,重点承接国内外优质的设计领域企业。
(四)周边交通
距地铁M101线张家湾西站700米,步行3分钟到公交站,驾车15分钟到城市副中心站综合交通枢纽,临近六环路、京塘路、京哈高速。
(五)周边配套
住宅
月亮河小镇、芳草园、御华园等170余个小区。
办公
北建院、北咨大厦、方和正园、北京铜牛等15余个园区。
酒店
格林豪泰、速8、喆啡酒店等50余家。
学校
中国人民大学、北京服装学院、张家湾中心小学、张家湾中学、北京学校、二实验小学等。
文化
京艺术中心、北京城市图书馆、北京大运河博物馆。
休闲
北京环球度假区、城市绿心森林公园、大运河森林公园等。
(六)合作招募
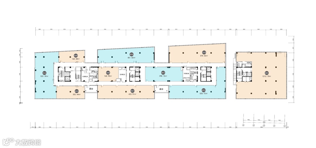
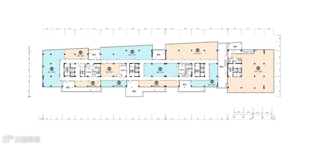
现进行市场公开招募(场地平面示意图见附件):
小型模块
50-300㎡,适配商务配套、创意零售、体验工坊等业态。
中型模块
300-500㎡,适配中小型企业办公、休闲餐饮、休闲娱乐、服务体验等业态。
大型模块
500-1000㎡,适配中大型企业办公、商务宴请等业态。
平层或独栋
约2000-4000㎡,适配企业总部基地、商务宴请等业态。
(七)合作条件
合作期限、模式及商务条件进一步商榷,现状交付。
(八)合作方资格要求
1.符合中国法律、法规规定的一切必要条件。
2.在中国境内注册,持有有效的营业执照。
3.具备运营项目的经验和能力。
4.潜在合作方不允许转租、分割转出租。
5.连锁、知名、优质的商业品牌优先。
6.需提供专业的符合该项目定位的项目设计方案及运营方案。
(九)报名文件
1.营业执照副本复印件加盖公章。
2.公司法定代表人本人身份证明加盖公章。
3.授权委托书(需法定代表人签字并加盖公章)。
4.具有项目经验的相关证明材料或者案例。
5.联系人的姓名、通讯地址、邮编、电子邮箱及电话号码。
(十)报名时间、地址及公告人联系方式
1.自公告发布后,签订合同前,凡符合条件的公司,按照公告要求提供报名文件。
2.报名公司应当以邮寄方式或现场递送方式向公告人送达报名文件。
3.邮寄地址及联系方式
地址:北京市通州区潞苑南大街3号院5幢
联系人:杨女士
电话:010-87336166
附件
一期展厅示意图
二期商办示意图
B1层
1层
2层
3层
4层
温馨提示
请点击左下角查看原文。
了解更多惠企资讯
请关注通企服
扫码添加好友即可咨询

