好消息!
好消息!
好消息!
今年无锡市将
新建多所高中
加大资源供给

3月3日,从全市教育系统工作会上获悉
我市教育部门正在编制
《无锡市“十四五”教育布局专项规划》
实施《无锡市优化完善基础教育资源布局
三年行动计划(2020-2022年)》
以进一步加大基础教育资源供给
不仅如此
今年我市会加快高中学校建设的步伐
加快已开工高中的建设进度
↓↓↓
梅村高级中学空港分校
梅村高级中学空港分校位于新吴区空港经开区(硕放街道)薛典路东侧、走马塘河北侧。可建设用地面积约100251平方米,总建筑面积约96300平方米,其中计容建筑面积约87320平方米。主要为新建一所总规模为16轨48班的公办高中。
具体建设内容包括:新建1栋地上建筑面积13156平方米的图文信息中心,1栋地上建筑面积4454.5平方米的学术圆环,3栋地上建筑面积分别为3771.2平方米、4470.6平方米、4430.2平方米的教学楼,2栋地上建筑面积分别为4598.3平方米、3432.4平方米的实验楼,1栋地上建筑面积3711.62平方米的综合楼,1栋地上建筑面积3392.3平方米、地下建筑面积180平方米的学生课程中心,2栋地上建筑面积分别为13035.2平方米、10860.05平方米的学生公寓,1栋地上建筑面积7870.2平方米的文体楼,1栋地上建筑面积1840.6平方米、地下建筑面积300平方米的游泳馆,1栋地上建筑面积6240.6平方米的食堂,1个地上建筑面积为1892.23平方米的体育看台,5个门岗164平方米和地下室建筑面积8500平方米(设置在教学楼和综合楼地下一层)及信息化建设等。
体育馆
综合楼
梅高空港分校预计今年年底建成,秉承“小馆建在学校”理念,学校同时担负起空港片区重要的公共服务功能。
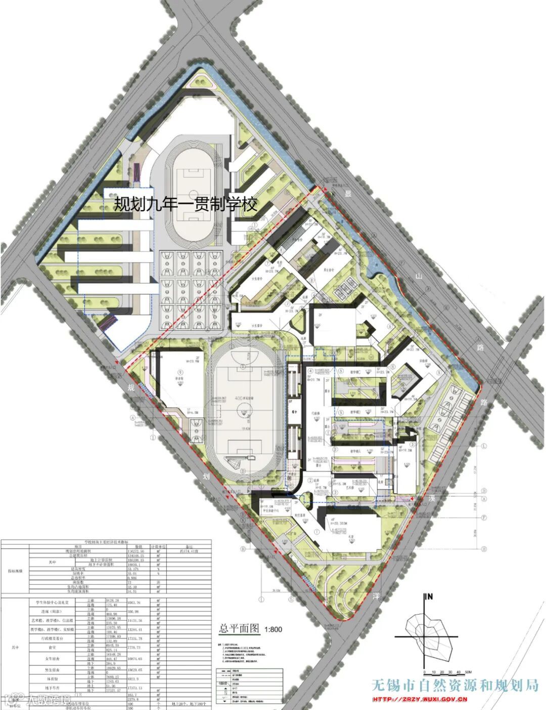
锡山高级中学锡西分校

该项目位于无锡(藕塘)职教园洋溪河北侧、显山路西侧,东至显山路、南至洋溪路、西至规划道路、北至现状空地。建设单位为无锡市省锡中教育投资发展集团有限公司,可建设用地面积约为116268.3平方米。拟建项目用地性质为教育用地,具体详见公示附图。拟建72班高中一所,主要设计内容为行政楼、教学楼、实验楼、艺术楼、体育馆、宿舍、食堂、运动场及相关配套设施等。



年内还将推进这些高中的建设
↓↓↓
江阴市澄西高级中学
江阴市澄西高级中学为争创四星级高中,完善学校相关配套设施,满足人民群众对优质教育的需求,初步选址在利港街道利港河东、规划路南、苍山路西、镇澄路北进行澄西高级中学新建项目。项目用地面积约为100亩,办学规模为12轨36班,总建筑面积约为45000平方米。

宜兴市第一中学周铁分校
项目位于周铁镇,地块具体范围:东至规划道路,西至屺分公路,南至规划道路,北至牛筋河。设计范围用地面积66634.2平方米,总建筑面积约68122平方米(包括地下建筑面积10600平方米)。


天一中学宛山湖分校
项目位于锡山区联福路与厚惠路交叉口东南侧。本项目规划为20轨60班高中,规划用地面积约13.5万平方米,总建筑面积约13.5万平方米。其中地上建筑面积约12万平方米,包括教学楼、科创中心(含报告厅)、体育中心、图书馆、食堂、男生宿舍、女生宿舍、教工宿舍以及各建筑平台间的平台连廊和看台;地下建筑面积约1.5万平方米,主要为停车库及各设备用房。室外运动场地主要有400米标准运动场、足球场、篮球场、排球场等;配套建设校区景观绿化、道路以及围墙等附属设施。

并将着手做好
滨湖区内新建高中
和经开区内新建高中
建设前的相关准备工作
我市高等教育资源今年也将
继续扩容和优化
除了办好
江南大学江阴校区和宜兴校区
推进东南大学
申报无锡校区独立招生代码
今年我市还将启动
无锡学院的校园三期工程建设
支持其申报硕士学位授予立项建设单位
还将通过支持办好在锡高校等举措
进一步扩大无锡本科及以上的高校资源
市教育局负责人表示
来源:综合无锡日报、无锡市人民政府官网、江阴市人民政府官网、宜兴市人民政府官网、无锡高新区在线、无锡市自然资源和规划局、无锡日报

