1
项目基本信息
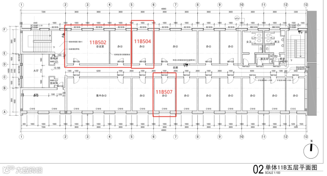
【房间】11B五层502(63㎡)、503-2(42㎡)、504(21㎡)、507(21㎡)
11B二层200(28㎡)、202(63㎡)、206(42㎡)、209(21㎡)
11C二层212(42㎡)、220(21㎡)
【面积】总364㎡
【位置】北京市西城区莲花池东路 16 号
【朝向】南北双向采光
【交付】基础装修交付
【层高】2.7 m
【付款】押三付六
【招商业态】仅限文化类、科技类、金融类办公业态
【租赁方式】整租/拆租,不可转租
2
项目照片
②42㎡
③28㎡
④21㎡
户型图:
①11B二层
②11B五层
③11C二层
3
联系方式
李经理 13699236048
4
租房流程
1、联系李经理线下踏勘房屋
2、填写《租赁意向确认表》(https://pan.baidu.com/s/1nOWknn2ihNrZ737BgjT3kA 提取码: 1234 )
3、将租赁意向表投递至 tnfwzl@chdoc.com.cn
END

