
中科云计算研究院是由中国科学院和东莞市人民政府共建的大型院地合作机构,占地面积39626平方米,汇聚了云计算,大数据相关领域的技术,人才,科研设备和网络等核心科技创新资源,形成了中国科学院云计算、大数据创新研发、技术转移、产业基金与孵化运营基地,打造数字经济创新发展新引擎。
目前,中科云计算研究院园区在孵企业100余家,累计毕业企业136家,其中上市(挂牌)企业3家,拥有资深创业导师30位,孵化基金规模21亿元,累计获得投资企业37家,累计投资总额2.3亿元,先后获“国家级科技企业孵化器”、“国家级众创空间”、“广东省大数据创新创业孵化园”、“广东省青年创新创业示范园”等多项荣誉资质。
● 中科云计算研究院大楼实景图

● 地处松山湖科学城-广深一小时生活圈

10米品质入户大堂
配置360度中空LOW-E全玻璃幕墙
高档大理石地面铺陈
彰显企业家非凡身份

低密度生态美学
推窗见湖景
坐拥水天一色
闹中取一方静谧

高效商务由此开始

500人员工饭堂
专业膳食团队
用心做好每一餐
保障员工餐饮体验

背靠1.2万平IDC机房
国家A级数据中心
7x24小时专业运维
为企业数据保驾护航

功能娱乐场所一应俱全
员工惬意休闲
高效办公同时
轻松平衡生活

私享贵宾会议室
百人报告室
千人宴会厅
满足不同商务接待、培训需求

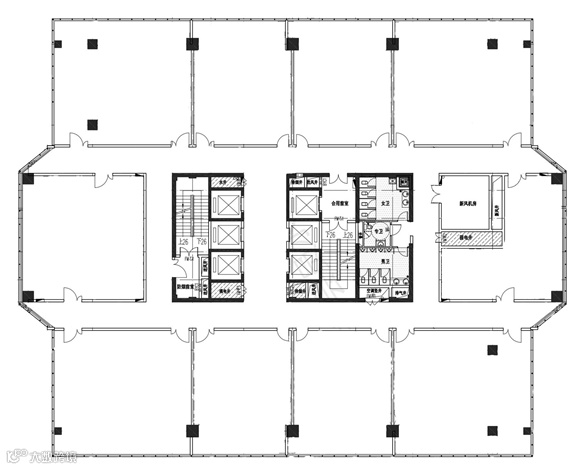
● 3-10层平面示意图
楼层:5层
办公室号:507-508
建面约: 230㎡
装修:简装,可配家具
空调:中央空调
层高:奢阔4米
荷载:400kg/m²
● 中科云计算办公室实景图
入驻该套房源
您将享受中科院云计算园区 完整配套服务

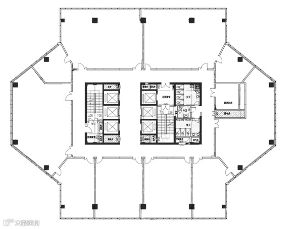
● 11-24层平面示意图
楼层:11层
办公室号:1105-1108
建面约: 278㎡
装修:简装,可配家具
空调:中央空调
层高:奢阔4米
荷载:400kg/m²
● 中科云计算办公室实景图
入驻该套房源
您将享受中科院云计算园区 完整配套服务
中科院背书,为您提供强品牌支撑,提升企业价值。免费参与中科院全系列院士培训、路演、高交会等展会活动、创业成本低,成长高速,为初创企业首选地。
交通便捷,商业配套齐全。离松山湖一站式市民服务中心仅3公里,离松山湖万象汇仅4公里,离石大路高速出入口仅500米。
管家式服务。规范管理,中央空调、网络、WIFI一应俱全;高低层电梯、人货梯分离,免拥挤。
提供专业的一站式免费注册服务,提供物超所值的专业财税代理、知识产权、高企培育、上市辅导等服务。
饭堂、大小会议室、茶室、头脑风暴室、健身房、羽毛球场、篮球场等,提供优质员工福利和“家”式办公环境。
提供专业的一站式免费注册服务,提供物超所值的专业财税代理、知识产权、高企培育、上市辅导等服务。

入驻热线:0769-22892015

