搜索
首页
大数快讯
大数活动
服务超市
文章专题
出海平台
流量密码
出海蓝图
产业赛道
物流仓储
跨境支付
选品策略
实操手册
报告
跨企查
百科
导航
知识体系
工具箱
更多
找货源
跨境招聘
DeepSeek
首页
>
FTServer安装上架指南
>
0
0
FTServer安装上架指南
Penguin Solutions
2015-10-27
0
导读:FTServer安装上架指南
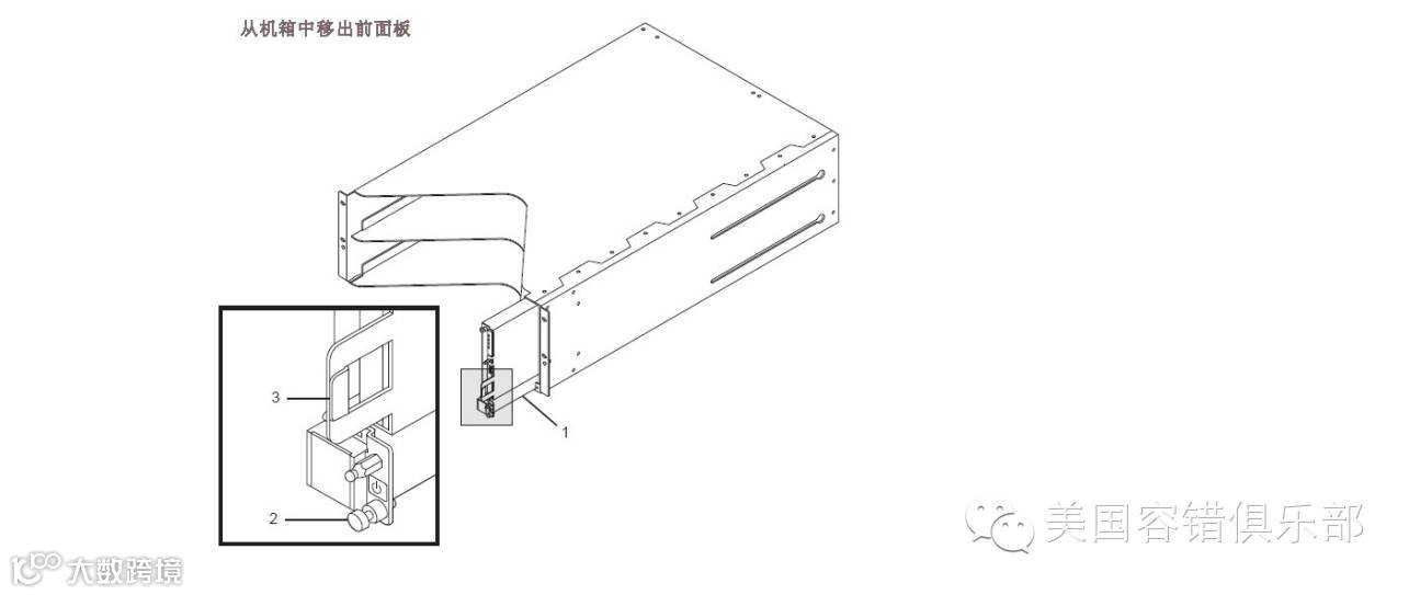
FTServer安装上架指南
【声明】内容源于网络
0
0
Penguin Solutions
Penguin Solutions致力于提供高性能和高可用性的计算基础设施解决方案和服务,以支持从边缘到核心再到云的关键工作负载的部署和运行——特别是在人工智能(AI)、高性能计算(HPC)、容错(FT)和边缘计算基础设施方面。
内容
363
粉丝
0
关注
在线咨询
Penguin Solutions
Penguin Solutions致力于提供高性能和高可用性的计算基础设施解决方案和服务,以支持从边缘到核心再到云的关键工作负载的部署和运行——特别是在人工智能(AI)、高性能计算(HPC)、容错(FT)和边缘计算基础设施方面。
总阅读
0
粉丝
0
内容
363
在线咨询
关注