
金隅集团所属北京昌平区南口采石场紧邻八达岭高速和京张高铁延庆线,是北京冬奥会重要交通连接线京张高铁的必经之路,为切实提升冬奥会沿线景观效果,南口采石场生态修复项目势在必行。

南口采石场矿山修复后

南口采石场矿山修复前
南口采石场于1956年开始开采,主要生产路基石、建筑石渣,曾供应人民大会堂、毛主席纪念堂等国家重点工程,为首都建设做出过巨大贡献,京张铁路建设所用的全部道砟也来源于南口采石厂。
金隅集团在市国资委、市园林局等相关委办局指导下,及时制定整体治理方案并迅速部署落实,全力提升冬奥会沿线景观效果。

京张高铁延庆线路线图
上世纪80年代前,南口采石场采用传统落后的“单臂式开采”方式开采,形成长约700米,最大相对高差约130米的山体,近50度的开采面,9.36万平方米的裸露山体,环境问题突出。加之坡体岩面经常年风化,存在高空滑落等不稳定风险,加大了施工难度和安全风险。
为高质高效完成采石场生态修复工作,项目部成立矿山修复党员突击队,深入分析工程重难点,合理设计施工图纸,采用倒排工期法制定施工计划,以流水作业方式有序组织施工,坚持每天早班会、每周一例会、月底分析会,及时分析施工过程中遇到的问题并在现场加以解决。

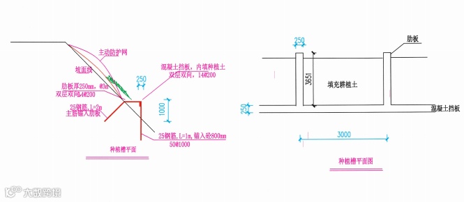
山体修复后种植槽设计图
历经近3年时间,南口采石场生态修复工程项目整体绿化用地81348.24㎡。为切实消除地质灾害隐患,强化水土保持,落实地形整治42497.57㎡,回填42165.22㎡,客土覆盖27475.34㎡。植树造林方面,共计植树13615棵。其中,灌木种植3012棵,乔木种植10603棵。成功“美颜”后的南口采石场,山清水秀绿意盎然。2021年6月,该项目顺利通过市国资委、园林局专项验收,并纳入北京市“百万亩植树造林”计划。

65年来,历经沧桑的南口采石场为首都的建设默默奉献了青春和热血,见证了新中国建设,也见证了改革开放,承载着几代人的记忆。经金隅集团生态修复工程的“妙手回春”,南口采石场以全新的姿态出现在世人面前,在新的征程中继续担负新使命、展现新作为。
下一步,金隅集团将以服务冬奥为契机,切实履行国企社会责任,践行“两山”理论,落实“四个发展”战略理念,服务首都“四个中心”建设,助力冬奥会圆满举办。

