如何规范化设置废水排放口
1.流量堰的选择
(1)薄壁堰。分成三种主要类型:三角形缺口堰、矩形缺口堰和等宽堰。三角形缺口薄壁堰测量流量范围: 0.2X 10-3~ 1.8 m3/s;矩形缺口薄壁堰测量流量范围:1.4x10-3~49 m2/s; 等宽薄壁堰测量流量范围: 0.8X10-3~77 m2/s。
(2) 宽顶堰。分为两种主要类型:矩形宽顶堰和圆缘宽顶堰。矩形宽顶堰测量流量范围为8x 10-3~65 m/s;圆缘宽顶堰测量流量范围为8x 10-3~820 m3/s。
(3)三角形剖面堰,测量流量范围为3X10-3~1 300 m/s。
(4)平坦V形堰,测量流量范围为14X 10-3~ 630 m3/s。
(5) 巴歇尔(Parshall) 槽,测量流量范围为0.1X 10-3~93 m3/s。
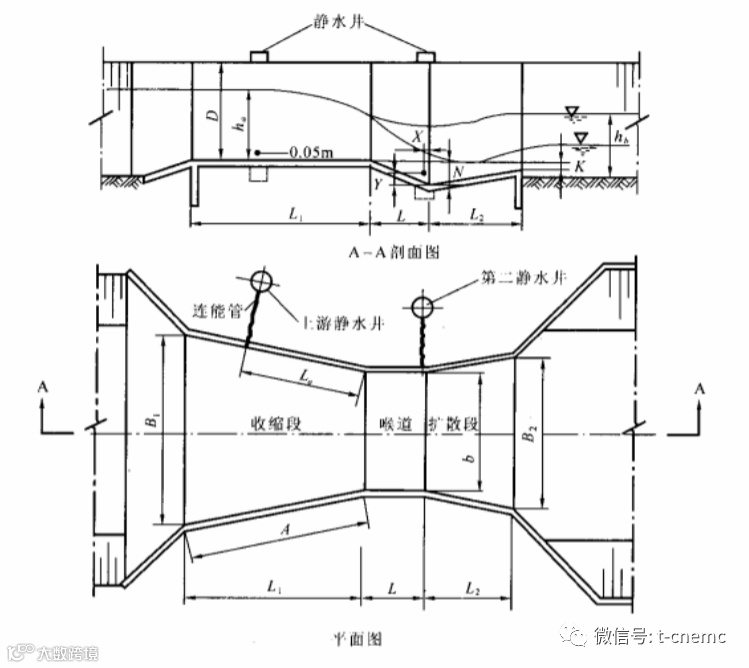
(6)无喉道(Cut- throat) 槽,测量流量范围为0.7>10-3~3.0 m3/s。
2. 水槽建设要求
(1)应保证明渠水流能平稳进入堰槽,堰槽的中心线应与渠道的中心线重合。
(2)堰槽内的水流态应为自由流。巴歇尔槽淹没度应小于临界淹没度;三角堰、矩形堰下游水位应低于堰坎。
(3)堰槽内表面应平滑,尺寸准确,安装牢固,不得出现漏水现象。宜在堰槽旁设置静水井。
(4)流量计传感器应安装牢固稳定,有必要的防震措施。仪器周围应留有足够空间,方便仪器维护。
(5)对于三角形、矩形薄壁堰堰槽上游宜大于10倍渠道宽;对于巴歇尔槽堰槽上游宜大于5倍渠道宽。
3.在排污口还要树立排污口标识牌。
来源:环境监测实战
END

