曾经「转身都困难」的开间户型,正在悄悄「增肥」,这是华南租赁产品从「生存」走向「生活」的关键一步。
图:近一年华南区域典型新开项目户型规模占比
表:近一年华南区域典型新开项目户型面积套数交叉分析
注:数据来源 CRIC 长租数据系统
图:泊寓梅林关旗舰店(左)与泊寓壹铭101公馆(右)一房主力户型模块面积变化
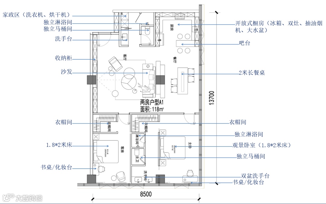
图: 城市家·横岗文体中心两房 118㎡ 户型图
图:深圳 泰格壹棠服务公寓 113㎡一房产品
小结
长租公寓的主要客群是20-35岁的都市年轻白领、新市民,当Z世代成为租赁主力,他们对居住空间的需求已从"有个住处"升级为"有种生活"。小小的开间多出的几平方米,可能意味着一个独立的办公角落、一个惬意的休闲区,或是一个能让宠物自在活动的空间。华南租赁企业正是洞察到这种需求变迁,将租赁户型面积的扩容2-5㎡,甚至5-10㎡,用空间品质重塑租赁住房的价值内涵。
注:本文图片除特别标注外,均来自企业官方披露,由住房租赁产品力测评整理。
2025全国住房租赁产品力测评
【中西部区域】线下路演暨专家评审会
将于10月31日落地成都!
👇路演时间👇
10月31日 9:00-18:00
👇路演城市👇
成都
👇路演地点👇
成都市武侯区天府国际金融中心
11号楼南塔44F交子厅会议室
住房租赁产品力100
期待您的参与!
测评工作咨询:
华东区域、华南区域联系人:
王女士 177 4972 3080(同微信)
华北区域、中西部区域联系人:
幸女士 185 2317 5062(同微信)
项目填报咨询:
小助手 180 1864 6414(同微信)
*添加微信请注明来意,谢谢。
住房租赁产品力100
华南区域线下路演
深圳
华北区域线下路演
北京
中西部区域线下路演
成都
华东区域线下路演
上海
住房租赁产品力100
★ 区域产品力奖项测评
针对重点区域开展线下路演环节,结合华北、华南、中西部和华东区域产品特点,测评并发布“区域特色产品力奖项",深度挖掘区域市场差异化需求,提升属地化营销精准度。
★ 全国百强奖项测评
通过线上测评模拟系统测算/线下项目路演专家评审首次评选并发布“全国住房租赁产品力TOP100"权威榜单。
★ 全国产品力奖项测评
项目类测评奖项:《十佳存量改造租赁项目》、《十佳新建大型租赁社区》、《十佳新建精品租赁项目》、《十佳高端租赁项目》
产品系测评奖项:《十佳高端公寓产品系》、《十佳青年公寓产品系》
*以上发布成果为暂定,最终成果根据参评项目有所调整,以最终发布为准。
↑扫码进微店↑
白皮书、月报购买
业务咨询
定制报告、系统试用等:
177-4972-3080(微信同)
185-2317-5062(微信同)
媒体/转载/进行业群
后台私信

