【易哥说】
入户玄关正对厨、卫;过道狭长,空间浪费;南北不够通透……当你邂逅这些并不完美的户型时,该怎么办?
其实,只要动动脑筋,或调整厨卫入口位置,避免与玄关空间冲突;或更多考虑“物尽其用”,学会削减或消灭走道,提升空间利用率;或增设墙镜,引入“透屏”概念,即可解决通透问题……7个户型改造案例,看专业设计师如何演绎化”鸡肋“为神奇。
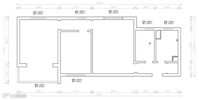
修改前
入门处较为狭小,一进门就看见一堵墙;
房间内部多用墙面隔断,曲曲折折。
▼
修改后
在玄关处增设一面墙镜,瞬间让空间在视觉上增大了一倍,豁然开朗;
引入“透屏”概念,将主卧室门旁的墙壁调整为透屏,既能起到区域划分的作用,又可以让视线通透,避免产生“曲曲折折”的不适感;
在电视后方巧设柜子,既不影响功能性与实用性,又增添了美观性。

▼
修改后
调整厨房与卫生间的门:将卫生间的门改为推拉门,避免与玄关空间冲突;将厨房的门转移至与客厅相对,让客厅、厨房、餐厅一眼看遍。
人从大门走入,经过一段短暂的走道,便可看见客餐厨三者通透的场景,会有一种柳暗花明又一村的感觉。
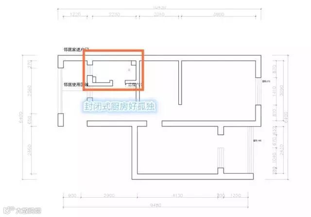
修改前
厨房不开放,阴暗的走道难见阳光;
厨房开放,面向两扇门,也没什么意思。

▼
修改后
既然“开放”与“不开放”是个问题,那就采取一个“折中”的办法吧。
设计师巧用“半开放式厨房”概念:在厨房开口处设置了一处精巧的吧台。
如果业主过着二人世界的生活,那么吧台也可以实现就餐功能;
如果今日就餐的人较多或菜品较丰盛,那么就请移步餐厅,尽情享用。
修改前
老公房的种种“别扭”不言而喻。

▼
修改后
想要物尽其用,就要学会消减或消灭走道。
入门处的走道用作厨房,这就是一种消灭的方法;
客厅的走道装上电视,增设餐厅,这也是一种消灭走道的办法。
卧室门外的走道虽然不能占据,但墙壁上可以挂上几幅画或做成照片墙,增加美感,让这一处空间成为一道风景。
修改前
不知道鞋架应该放在哪里,
不知道餐厅应该置于何地。

▼
修改后
这间房的客厅结构特殊,设计师将鞋柜内移,把入门左手边的位置留给餐厅。
由于空间有限,餐厅也不宜墨守成规,可以采用折叠餐桌,在闲置时收折到墙上,让这块空间既被赋予了功能,又不被占用。
客厅中的茶几也可以安装滚轮,就餐人数增多时,将茶几移至一旁,灵活多变。
修改前
厨房与客厅面积较小,整体感觉比较闷。

▼
修改后

这个家中住着一对老夫妻和一对年轻夫妻,两间卧室足够宽敞,但厨房和客厅显得有些局促。
设计师将厨房打开,别出心裁地用一张半圆形的餐桌连接了厨房与客厅,将这两块空间结合在一起。
设计师强调:开放式厨房是增进家庭成员关系的一剂调味品。
试想一下,无论是婆婆下厨还是儿媳下厨,她们的丈夫总能在旁与她们搭上两句话,日后如果有了小孩,孩子在客厅玩耍时,妈妈或者祖母也能在厨房监护。
修改前
入门处较为狭小,一进门就看见一堵墙;
房间内部多用墙面隔断,曲曲折折。

▼
修改后
设计师首先将厨房的一面墙延伸出来,这一点也是出于对风水禁忌的尊重,让厨房低调内敛、韬光养晦;
在餐厅与客厅之间设置楼梯与透屏,巧用这两种元素,隔而不断;
客厅的亮点在于沙发呈钝角展开,与房间形状完美贴合,真正做到了因地制宜,物尽其用,即使房间面积再大,也不舍得浪费任何一寸。
来源:设计客、易居中国

【克而瑞说】克而瑞长沙机构(CRIC0731)作为专业第三方楼市信息披露、数据发布平台,坚持定期独立、免费发布长沙及湖南楼市动态、楼盘表现、市场数据及销售榜单;如无特殊说明,所有楼市销售数据均来自长沙市、长沙县及望城区住建委(局)网签系统,本机构承诺不对任何销售数据作商业性加工与调整;因网签数据与实时市场情况相比具有一定滞后性,或因个别楼盘网签延迟,导致发布数据与现实数据存在误差,此与数据真实性无关;因人工统计失误所导致的数据或信息失误,请及时联系我们(0731)88579700,本机构将及时进行修正或补充说明;
本机构发布和披露的所有楼盘信息、行业数据与市场分析内容,仅为市场研究、房企营销、置业选择参考,本机构不承担任何营销策略导向与商品房买卖风险。本机构享有原创发布的所有信息与数据的知识产权,未经允许,严禁擅自转载或盗用,非商业化引用或应用,请务必注明来源克而瑞长沙机构或CRIC0731,如需商业化应用,必须征得本机构同意并授权,否则,本机构有权保留追究法律责任的权利,并不承担商业化应用所导致的任何风险与责任。


