

入围2020年产品力高端项目
将共分为三组进行路演报告的展示
项目排名不分先后
按照拼音首字母排序展示
项目概况:滨江府1913由梦想置业开发,项目由10栋建筑组成,其中1栋高层公寓,3栋超高层住宅,6栋高层住宅组成,位于滨江新城中央商务区和生态中心区的交界处,与湘江一路之隔(直线距离约150米),近距离地铁四号线、六号线(在建)换乘站六沟垅站,项目周边具有优质教育及医疗资源,汇集滨江优质资源。

滨江府1913位置图及效果图
社区空间:滨江府1913汲取经典现代主义建筑风格,打造滨江新城江景人文居所。项目采取完全人车分流,定制多重智能化系统,在景观空间规划上,打造1轴,2环,5园的格局,强化“轴线—庭院—宅间”的空间递进关系,打造全龄化悦享社区。

滨江府1913景观效果图
主力户型及样板间:滨江府1913主力户型为建面约118-228㎡,南向望江景观;通风采光佳,动静分离;阔绰客厅,明亮舒适,大广角景观阳台,视野开阔。

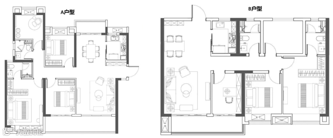
滨江府1913户型图
A户型143㎡,户型周正,小四房设计,四开间朝南,景观阳台较开阔,并且景观阳台连接一个次卧,通风采光都会更舒适。
B户型118㎡,带双阳台,南北通透,景观阳台同样也连接一个次卧,主卧为套房设计;整个户型动静分区明显。

滨江府1913样板间实拍图
项目概况:长房星昇公馆是长房集团进驻星沙的开篇之作。项目距松雅湖湿地公园368米,占据星沙核心生活区。总建面约26万方,承袭长房集团国匠精工品质,洞悉当代人居需求,打造绿化率高达35.55%高端项目。

长房星昇公馆位置图及效果图
社区空间:长房星昇公馆匠心打造约3万方中央五重立体园林景观,约400㎡礼仪入口、约1200米环氧跑道上慢跑、全龄儿童乐园、约200米四季花溪,一片园林;“城芯墅”在强化优质产品、缔造细节,以现代豪宅规则为基准,将四时园林景观纳入院内,提升产品品质。

长房星昇公馆景观效果图
主力户型:户型以大平层、叠墅等高端产品为主,140-230平米大平层享一梯一户私家电梯厅,延展生活空间尺度,“纯板式”设计,房子通透无遮挡。

长房星昇公馆大平层户型图
约8.6米央景大阳台,270°恢弘视野,俯瞰自建约3万方中央大园林,北向阳台远眺约7000亩松雅湖风光。约10米进深客餐大通厅,衔接约8.6米央景大阳台,及匠造奢华五房户型,从居住、会客、娱乐、休闲、独处各个角度,演绎现代都市奢华居家生活。

长房星昇公馆叠墅户型图
180-240㎡城芯叠墅,上叠自带露台占据顶层优势;中叠约7.9米横厅,拥有高度的私密性与舒适性;下叠近200㎡“前庭后院”墅式生活理念,前庭入户庭院,生活井然有序;负一层全赠送多功能室, 创造幸福的N种可能。

长房星昇公馆样板间图
项目概况:长沙院子位于长沙县浔龙河生态艺术小镇樱花谷斜对面,享约14700亩浔龙河生态大境之天时,更与北师大长沙附属学校近邻,整个小区均以合院和洋房为主,是目前全长沙少有的新中式高端低密社区。

长沙院子位置图及效果图
社区空间:项目融合南北方建筑特色,师法北京王府规制,同时不失江南园林轻巧与精致。采用新中式的表现手法,以中式为灵魂,加入现代工艺和取材。将宅门、坊巷、院落三大造院体系及三进制归家动线体现得淋漓尽致,力争做到“中而不古”、“新而不洋”。

长沙院子景观图
主力户型及样板间:长沙院子主推合院和洋房,合院户型为194-403平米,洋房户型为97-178平米。洋房为复式产品,分为上下两层,一层带院子,顶层带露台。合院户型共计5层,一层带有院子,负一层带有天井设计。

长沙院子合院户型图

长沙院子揽山院户型图
二期揽山院国风小高层,主推105-143㎡,所有空间布局,皆追求科学合理和人性化,在提高空间利用率的-同时,关注设计美感:如餐客一体厅,南向大面宽观景阳台,带独卫、衣帽间、飘窗的套间主卧等。

长沙院子揽山院样板间图
项目概况:城发恒伟星雅韵为千亿国企城发恒伟置业为高端人才打造的韵系高端产品,项目位于洋湖国际新城,总建筑面积约29万㎡,产品业态涵盖高尚住宅、高档写字楼、精品公寓、主题商业、人才房为主的品质城市综合体。距离地铁3号线洋湖湿地站仅约300米,为高端人才安居提供了更多实在性便利。

城发恒伟星雅韵位置图及效果图
社区空间:恒伟星雅韵于社区内部匠造“一轴一环三园两院”园林,考虑到长辈的生活习惯,善用园林,为老人创造颐养天年的好环境,社区内部的文化活动室打造素质拓展区/每周课堂等,让老人的退休生活丰富多彩;同时为孩子规划青丘乐园,聚焦孩子0-14岁快速成长期,打造专属儿童的成长、交流场所,家长与儿童互动的设施,多维度的全面监护。

城发恒伟星雅韵景观效果图
主力户型及样板间:城发恒伟星雅韵目前推出124㎡/142㎡/154㎡阳光四房,在方正、多采光全明的基础上,各个空间完美融合;大尺度观景阳台,客餐厅相连呈现更加大气宽敞的空间效果;舒适四房设计,满足二胎家庭和三代同堂等大家庭对幸福品质人居的诉求。

城发恒伟星雅韵户型图
项目整体打造简约而又有品味的装修风格,室内空间以高级灰为主色调,呼应国际化简约审美趋势。精心甄选一线知名品牌,带来舒适贴心的居住体验。无处不在的人性化细节,更彰显星雅韵的匠心品质:打造智能化家居,充分提升居住的舒适感;社区内部拥有智能安防系统,为居家安全保驾护航。

城发恒伟星雅韵样板间图
项目概况:东原麓印长江是东原于全国布局的第四座、华中第一座“印长江”系列产品。项目位于创新创意中心——中国V谷所在的金鹰月湖板块,坐拥长沙黄金十字中轴-双地铁三主干道,地铁3、5号线覆盖长沙主城区,坐拥城市级配套资源。

东原麓印长江位置图及效果图
社区空间:在建筑设计上,东原联袂三位国际大师——宋照青、凌子达、刘展,操刀进行项目规划设计,引入新加坡园林景观及新亚洲建筑美学,满足全生命周期的功能性需求,约1.83的超低容积率之上,布局瞰景高层和低密多层。现代中式典雅主义风格建筑,窗墙比可以达到约0.32,不仅可以优化室内的采光、通风与视野舒适度;园林景观借鉴长沙城市“山水洲城”规制与地脉形态,规划“两轴两园十三巷”,极具东方风度。

东原麓印长江景观图
主力户型及样板间:建筑面积约155-192㎡藏山叠墅,下叠户型,边户可实现地上前、后、侧三重庭院,附加约5.4m层高采光地下室,可拓展为双层,客厅约6.45m高挑空,同样可以于二层拓展一间南向卧室,可实现三代人全龄居住;上叠户型,创新在于同样拥有一间地下室,实现储藏室、工作间等生活功能。客厅也为高挑空,而且拥有一个大面积的观景露台,亲景视野非常好。此外,还附加屋面空中庭院,提升居住场景感。

东原麓印长江户型图
项目对于人居空间,基于生活享受、精神满足、环境舒适等多维度诉求,进行设计。样板房室内设计以天然纹理、简练界面为基础相辅相成,在陈设用材方面则较多采用了木材、麻质面料等体现天然质感的材质,色调倾于朴素。

东原麓印长江样板间图


