2022年湖南产品力测评,高端入围项目共21个,将分为4组进行路演报告的展示。
提示
项目展示顺序
本期湖南高端入围项目路演3/4,顺序如下:
(11)绿城招商桂语雲峯 (长沙)
(12)绿城美的明月江南(长沙)
(13)融冠云城 (衡阳)
(14)万科松湖天地 (长沙)
(15)五矿万境松雅(长沙)
项目排名不分先后
按照拼音首字母排序展示
11
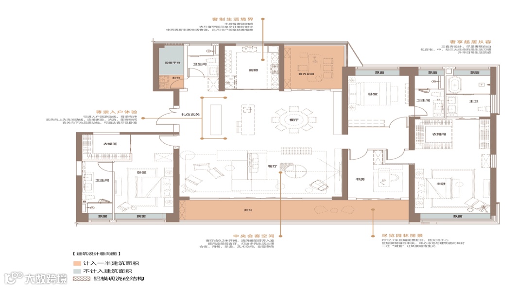
绿城招商桂语雲峯 (长沙)
项目概况:绿城招商桂语雲峯由绿城和招商蛇口联合打造,地处梅溪湖一期和二期之间,坐落在“超级中轴-长沙中心”之上,是地铁6号线和2号线西延线中塘站上盖项目。主打TOD+大平层,引入招商花园城标杆商业体。绿城招商桂语雲峯是梅溪湖片区首批接入集中供能的住宅项目。集中供能无需外机、冷暖双供、节省空间、避免干燥,能有效提高居住品质。
位置图及鸟瞰图

主力户型:绿城招商桂语雲峯目前主推建面约191㎡、约247㎡、约320㎡户型。建面约191㎡四房:创新的LDKBS复合公区,客餐厨阳台等公区全面一体化,无过道+双阳台+双飘窗+设备平台设计,实际使用率超高。 建面约247㎡五房:独立家政间+超大户内花园+约6米的大宽厅,带来不同空间格局和体验感,超豪华的套房式主卧,带超大飘窗,步入式衣帽间+独立卫浴+超大浴缸+双台盆设计,让人独享私密。建面约320㎡五房:两梯两户设计,户户拥有电梯私厅,配子母门,入户大玄关增强仪式感和隐私性,带来沉浸式归家体验。南向超大景观阳台直通次卧,享受IMAX级景观面,主卧套房带超大飘窗,卧室两面开窗设计,采光不错。
建面约191㎡

建面约247㎡

建面约320㎡

样板间实景


社区空间:绿城招商桂语雲峯在园林整体设计上,各类植被精心搭配,层层递进,让社区一年四季展现出不同风景。通过植物所构筑的生态环境,打造帮助孩子知识成长的自然课堂;科学的绿化组合更组成一道天然防护带,改善城市有害物质对居者的影响,营造出一个身心皆安的心灵栖息地。二期增添露天泳池,在绿城社区文化的粘连下,营造孩子们夏日嬉水玩闹,成人休闲消暑的邻里聚集地。
园林效果图

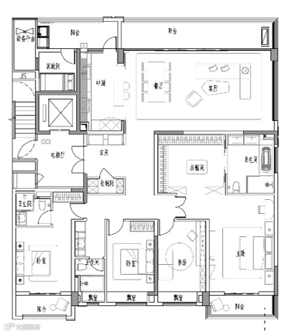
12
绿城美的明月江南 (长沙)
项目概况:绿城美的明月江南位于星沙广生片区,占位开元路北华宅区,以滨河公园景观、精工品质为标签。占据了整个星沙非常有潜力的政务板块,拥有方便的交通配套,拥有成熟的商业配套,拥有合适的医院距离,有十二年制学校陪同成长,拥有好的宜居环境,本项目以打造“滨水墅区,美学样本”的经典之作是改善首选。
以7.2万方建筑面积,再加上2.32的容积率,涵盖叠墅、小高层、高层、商业于一体的高品质住宅项目,设置全龄段架空层邻里空间等品质规划,打造了高品质大园林景观,打造出一个多功能城市休闲会客厅。
小区由连续多年荣膺“中国物业百强服务满意度领先企业”绿城物业进行服务,为业主园区舒适生活保驾护航。
位置图及鸟瞰图

主力户型:绿城美的明月江南目前主推刚改型3-4房,高层105平米和高层129平米户型。
高层约105㎡户型:【独立主卧套房】精设独立明卫浴和大飘窗;【入户玄关设计】兼具私密性和收纳实用性;【静谧北书房】一方心灵净土;【阔尺瞰景阳台】盛载惬意美好;
高层约129㎡户型:【独立主卧套房】提升主卧舒适度;【南向宽境阳台】连接轩敞客厅,将美景尽收眼底;【U型厨房设计】科学烹饪动线,连接温馨餐厅;【独立尊崇玄关】玄关为引,尊崇归家入户。
高层约 105 ㎡和125㎡

绿城美的明月江南目前主推改善型4房,高层143和小高层143平米户型。
高层约143㎡户型:【约13.9米面宽】三卧室朝南,全天候阳光沐浴;【一体化餐客厅】餐客厅与阳台一体化;【套房式主卧】主卧套房携阔绰卫浴和飘窗,阳光沛然;【南向奢阔阳台】两开间宽奢观景视野;
小高层约143㎡户型:【合理布局】三开间朝南,约11·7米大面宽;【一梯一户】私家电梯厅,构筑从容的私密空间;【宽境阳台】约6.9米南向双联阳台,揽景入室;【灵动空间】高拓展空间,较高得房率;【典雅主卧】套房设计,尊享独立式衣帽间;【墅境小高层】静谧独立,静享滨河风光。
高层 约143 ㎡ 和小高层143㎡

绿城美的明月江南目前主推叠墅,上叠约175平米和下叠156平米户型。
上叠约175㎡户型:朗阔餐客厅,长辈房连接大阳台,拥有独立书房空间及全功能主卧套房,享有全景视野大面积星空露台;
下叠约156㎡户型:南向大开间奢阔餐客厅,私享花园庭院,套房式主卧带独立衣帽间,次卧连接观景大阳台。
上叠约175㎡和下叠156㎡


社区空间:绿城美的明月江南项目作为滨河景观的住区,以“一水双园 明月八境”的规划布局,打造别具一格的滨水低密墅区。保留大面积中央景观,把更多的空间让渡给自然。
园林效果图

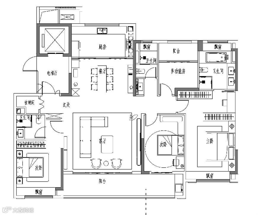
13
融冠云城(衡阳)
项目概况:融冠云城项目总建筑面积5万平米,位于衡阳华新开发区高端居住区柘里渡,街对面就是濂溪公园,临蒸水河一线江景,北向瞰江,南向揽景;项目划片柘里渡小学和船山实验中学,毗邻祝融小学和衡阳一中,周边配套资源丰富,天生高端居住区。
位置图及鸟瞰图

主力户型:融冠云城目前主推138至248平米户型。所有户型均为两梯两户设计,双开门电梯私厅设计,纯板房,南北通透,大赠送均达到0公摊设计。
218、248㎡户型,户型层高达3.1米,南北通透,四开间朝南,私梯入户、南北双阳台、三套间设计提升生活品质;138-180㎡户型,四开间朝南,采光和通风效果较好;高赠送0公摊,满足客户各种个性装修需求。
248㎡ ( 5房2厅4卫)
218㎡ (5房2厅4卫)
样板间展示

社区空间:融冠云城打造全小区架空设计,考究业主对于生活品质及圈层社交的需求,将个性生活与架空层完美融合,让生活更有温度,每一个成员都能找到属于自己的圈子。
园林架空层实景

14
万科松湖天地 (长沙)
项目概况:万科松湖天地为万科全国第八座“天地系”作品,位于总投资超2000亿元的松雅湖国际新城,临近约6000亩松雅湖国家湿地公园,由7个地块组成,集合三大国际大师设计团队构建滨水街区、产业集群、酒店集群、超高层地标、商业中心、精工美宅六大业态打造百万方城市综合体;项目配建一所小学,并签约长郡双语实验中学、麓山国际实验小学双名校品牌。距地铁3号线(松雅湖南站)约1km,距吾悦广场约200m,并将自建约45万方地标商业综合体。
位置图及鸟瞰图

主力户型:万科松湖天地户型以改善为主,首次推出的建面约112㎡、131㎡、148㎡、189㎡、240㎡户型,LDK+X一体化空间,尺度阔绰,临湖户型可最大尺度观景。正南朝向,整体户型南北通透,大面宽横厅,多套房设计,户型使用率高。
240㎡户型

189㎡户型

148㎡户型

样板间展示


社区空间:万科松湖天地项目由国际大师执笔,不是简单的滨水+建筑,而是以“织补缝合生态城市”为理念,整体规划为一核两廊三轴,小区内还有媲美西湖的“松雅湖十景”。
园林效果图

15
五矿万境松雅 (长沙)
项目概况:五矿万境松雅位于星沙望仙路与东九路交汇处,所处位置正是以松雅湖生态新城为核心的高端居住区,星沙未来的富人区。项目总用地面积约为13.7万方,总建面约为30.9万方,容积率为1.8,绿化率为35.71%;并且小区内部自带4万方河道公园,纯板楼设计,纯两梯两户,而且做到了4面朝南甚至是5面朝南,是片区容积率最低,居住舒适度最高的小区。
位置图及鸟瞰图

主力户型:五矿万境松雅目前主推125㎡和140㎡洋房户型,125㎡户型南北通透,户型周正,各功能间齐全,2T2的设计从产品逻辑上就优于市面上普遍存在的2T4楼型中间户或端户,楼层仅18层,居住舒适度高,是您提升家人居住品质度的优质户型;140㎡户型户型布局合理,南北通透,四开间朝南,私梯入户,居住舒适性高,朝南阳台开间7.4米,采光视野和通透性俱佳。
125㎡

140㎡

叠墅产品分5F/6F,建面均约150㎡,且均拥有全南向3开间,最高可达约10米面宽,户户带花园,最高实用率可达约230%,实现了真正意义上的宽境叠墅,空间尺度与生活秩序的相融相生,带来更高品质感与舒适度的生活;
林央墅下叠150㎡:下叠的首层南侧私属庭院使用面积有约167㎡,一层和二层的空间交付时是挑空的,可以选择高层高的挑空呈现,也可以搭板封层,在一楼南侧有超大会客厅,拥有270度超大景观视野,且地下室挑空5.25米,还可以选择做夹层,整体来说动线合理、功能布局完善,是叠墅产品中的不二之选。



社区空间:五矿万境松雅整个社区的设计脉络是“一河两院三境十八景”,一河是40000方的河道公园,命名为“松雅湖万明公园”;两院是以河道公园为界的,东院和西院(东西地块);三境是艺文之境、自然之境、生活之境;十八景是我们三境之下的各个主题景点和生活功能区(涵盖业主会客厅、小区配套娱乐空间、景观陈设)
社区空间效果图

/End.
来源/克而瑞湖南
以上仅为个人观点,不代表所在企业观点。
版权申明:本文版权归克而瑞湖南机构所有,未经许可与授权,严禁转载。
如需转载和合作,请致电19892894436(微信同号)。
免责声明:本文中的内容和意见仅供参考,并不构成对所述城市的出价或评估,我司对使用本文中内容所引发的任何直接或间接损失概不负责。
●产品力测评 | 2022年湖南高端项目入围 路演报告(2/4)
●产品力测评 | 2022年湖南高端项目入围 路演报告(1/4)
●产品力测评 | 克而瑞2022年度 · 评审专家 阵容公布



